New Homes » Kanto » Kanagawa Prefecture » Yokosuka
 
| | Yokosuka, Kanagawa Prefecture 神奈川県横須賀市 |
| JR Yokosuka Line "Kinugasa" walk 15 minutes JR横須賀線「衣笠」歩15分 |
| Immediate Available, System kitchen, All room storage, A quiet residential area, LDK15 tatami mats or more, Shaping land, Washbasin with shower, Face-to-face kitchen, Toilet 2 places, Bathroom 1 tsubo or more, 2-story, South balcony 即入居可、システムキッチン、全居室収納、閑静な住宅地、LDK15畳以上、整形地、シャワー付洗面台、対面式キッチン、トイレ2ヶ所、浴室1坪以上、2階建、南面バルコニー |
| Oyabe House for two-story located has been built in lined quiet environment to 1-chome of residential areas. Quiet and so located as not many car street, You can also live in peace for children. Affordable new construction is to come in the range, but it takes about 15 minutes' walk walk from the nearest station. The room is equipped with a state-of-the-art facilities, We believe that comfort you're willing to live. You can preview the room. In now campaign (see the comments section of the staff), so please do not contact us. 小矢部1丁目の住宅地に所在する2階建ての戸建てが建ち並ぶ閑静な環境に建築されました。車通りも多くない通りに位置しますので静かで、お子様にも安心して生活いただけます。最寄駅からは徒歩15分程かかりますが歩ける範囲でお手頃な新築が手に入ります。室内は最新の設備を装備しており、快適にお住まいいただけると考えております。室内内覧できます。只今キャンペーン中(スタッフのコメント欄参照下さい)なので是非お問い合わせ下さいませ。 |
Features pickup 特徴ピックアップ | | Immediate Available / System kitchen / All room storage / A quiet residential area / LDK15 tatami mats or more / Shaping land / Washbasin with shower / Face-to-face kitchen / Toilet 2 places / Bathroom 1 tsubo or more / 2-story / South balcony / Warm water washing toilet seat / Underfloor Storage / The window in the bathroom / TV monitor interphone / All living room flooring / Water filter / City gas / Located on a hill 即入居可 /システムキッチン /全居室収納 /閑静な住宅地 /LDK15畳以上 /整形地 /シャワー付洗面台 /対面式キッチン /トイレ2ヶ所 /浴室1坪以上 /2階建 /南面バルコニー /温水洗浄便座 /床下収納 /浴室に窓 /TVモニタ付インターホン /全居室フローリング /浄水器 /都市ガス /高台に立地 | Price 価格 | | 27,800,000 yen 2780万円 | Floor plan 間取り | | 3LDK 3LDK | Units sold 販売戸数 | | 1 units 1戸 | Land area 土地面積 | | 113.22 sq m (34.24 tsubo) (measured) 113.22m2(34.24坪)(実測) | Building area 建物面積 | | 85.29 sq m (25.80 tsubo) (Registration) 85.29m2(25.80坪)(登記) | Driveway burden-road 私道負担・道路 | | Nothing 無 | Completion date 完成時期(築年月) | | November 2013 2013年11月 | Address 住所 | | Yokosuka, Kanagawa Prefecture Oyabe 1 神奈川県横須賀市小矢部1 | Traffic 交通 | | JR Yokosuka Line "Kinugasa" walk 15 minutes Keikyū Kurihama Line "Kitakurihama" walk 30 minutes Keikyū Kurihama Line "Shin'otsu" walk 35 minutes JR横須賀線「衣笠」歩15分 京急久里浜線「北久里浜」歩30分 京急久里浜線「新大津」歩35分
| Related links 関連リンク | | [Related Sites of this company] 【この会社の関連サイト】 | Person in charge 担当者より | | Rep Yoshitani 担当者ヨシタニ | Contact お問い合せ先 | | TEL: 0800-603-2474 [Toll free] mobile phone ・ Also available from PHS Caller ID is not notified Please contact the "saw SUUMO (Sumo)" If it does not lead, If the real estate company TEL:0800-603-2474【通話料無料】携帯電話・PHSからもご利用いただけます 発信者番号は通知されません 「SUUMO(スーモ)を見た」と問い合わせください つながらない方、不動産会社の方は
| Building coverage, floor area ratio 建ぺい率・容積率 | | 40% ・ 80% 40%・80% | Time residents 入居時期 | | Immediate available 即入居可 | Land of the right form 土地の権利形態 | | Ownership 所有権 | Structure and method of construction 構造・工法 | | Wooden 2-story 木造2階建 | Use district 用途地域 | | One low-rise 1種低層 | Other limitations その他制限事項 | | Quasi-fire zones 準防火地域 | Overview and notices その他概要・特記事項 | | Contact: Yoshitani, Facilities: Public Water Supply, This sewage, City gas, Parking: car space 担当者:ヨシタニ、設備:公営水道、本下水、都市ガス、駐車場:カースペース | Company profile 会社概要 | | <Mediation> Governor of Kanagawa Prefecture (3) No. 022239 No. Heisei housing (Ltd.) Yubinbango238-0007 Yokosuka, Kanagawa Prefecture Wakamatsu-cho 1-18 <仲介>神奈川県知事(3)第022239号平成ハウジング(株)〒238-0007 神奈川県横須賀市若松町1-18 |
 Local appearance photo
現地外観写真
 Local appearance photo
現地外観写真
 Local appearance photo
現地外観写真
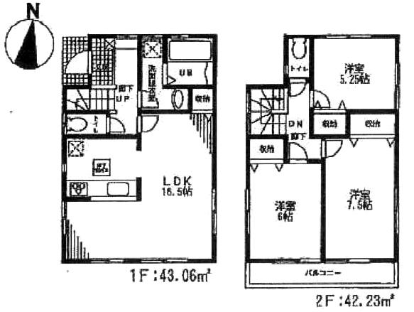
Floor plan間取り図  27,800,000 yen, 3LDK, Land area 113.22 sq m , Building area 85.29 sq m
2780万円、3LDK、土地面積113.22m2、建物面積85.29m2
 Local appearance photo
現地外観写真
 Garden
庭
Supermarketスーパー  Co-op Kanagawa Kinugasa 1018m to shop
コープかながわ衣笠店まで1018m
 Seiyu Kinugasa 1025m to shop
西友衣笠店まで1025m
Drug storeドラッグストア  To create Yokosuka Kinugasa shop 971m
クリエイト横須賀衣笠店まで971m
Junior high school中学校  1186m to Yokosuka Municipal Oyabe junior high school
横須賀市立大矢部中学校まで1186m
Primary school小学校  806m to Yokosuka Municipal Kinugasa Elementary School
横須賀市立衣笠小学校まで806m
Hospital病院  Kinugasa to the hospital 1108m
衣笠病院まで1108m
Location
|