New Homes » Kanto » Kanagawa Prefecture » Zushi
 
| | Kanagawa Prefecture Zushi 神奈川県逗子市 |
| JR Yokosuka Line "Zushi" 15-minute sunset table park walk 4 minutes by bus JR横須賀線「逗子」バス15分夕陽台公園歩4分 |
| Living environment is good per Zushi Highland in subdivision. 逗子ハイランド内分譲地につき住環境良好です。 |
Features pickup 特徴ピックアップ | | 2 along the line more accessible / Facing south / System kitchen / Bathroom Dryer / Japanese-style room / Washbasin with shower / Toilet 2 places / Bathroom 1 tsubo or more / 2-story / Underfloor Storage / TV monitor interphone / City gas / Located on a hill 2沿線以上利用可 /南向き /システムキッチン /浴室乾燥機 /和室 /シャワー付洗面台 /トイレ2ヶ所 /浴室1坪以上 /2階建 /床下収納 /TVモニタ付インターホン /都市ガス /高台に立地 | Price 価格 | | 26,800,000 yen 2680万円 | Floor plan 間取り | | 4LDK 4LDK | Units sold 販売戸数 | | 1 units 1戸 | Total units 総戸数 | | 1 units 1戸 | Land area 土地面積 | | 100.73 sq m (registration) 100.73m2(登記) | Building area 建物面積 | | 91.52 sq m (registration) 91.52m2(登記) | Driveway burden-road 私道負担・道路 | | Nothing, East 5m width 無、東5m幅 | Completion date 完成時期(築年月) | | June 2013 2013年6月 | Address 住所 | | Kanagawa Prefecture Zushi Hisaki 8 神奈川県逗子市久木8 | Traffic 交通 | | JR Yokosuka Line "Zushi" 15-minute sunset table park walk 4 minutes by bus Keikyū Zushi Line "Shin Zushi" walk 30 minutes JR Yokosuka Line "Kamakura" walk 45 minutes JR横須賀線「逗子」バス15分夕陽台公園歩4分 京急逗子線「新逗子」歩30分 JR横須賀線「鎌倉」歩45分
| Person in charge 担当者より | | [Regarding this property.] Good living environment per Highland subdivision residential areas within the. The building is already completed. 【この物件について】ハイランド分譲住宅地内につき住環境良好。建物完成済みです。 | Contact お問い合せ先 | | TEL: 0800-603-0007 [Toll free] mobile phone ・ Also available from PHS Caller ID is not notified Please contact the "saw SUUMO (Sumo)" If it does not lead, If the real estate company TEL:0800-603-0007【通話料無料】携帯電話・PHSからもご利用いただけます 発信者番号は通知されません 「SUUMO(スーモ)を見た」と問い合わせください つながらない方、不動産会社の方は
| Building coverage, floor area ratio 建ぺい率・容積率 | | Fifty percent ・ Hundred percent 50%・100% | Time residents 入居時期 | | Consultation 相談 | Land of the right form 土地の権利形態 | | Ownership 所有権 | Structure and method of construction 構造・工法 | | Wooden 2-story 木造2階建 | Use district 用途地域 | | One low-rise 1種低層 | Overview and notices その他概要・特記事項 | | Facilities: Public Water Supply, This sewage, City gas, Building confirmation number: No. HPA-13-00539-1 設備:公営水道、本下水、都市ガス、建築確認番号:第HPA-13-00539-1号 | Company profile 会社概要 | | <Mediation> Governor of Kanagawa Prefecture (10) Article 010799 No. Usui Home Co., Ltd. Zushi shop Yubinbango249-0006 Kanagawa Prefecture Zushi Zushi 4-1-2 <仲介>神奈川県知事(10)第010799号ウスイホーム(株)逗子店〒249-0006 神奈川県逗子市逗子4-1-2 |
Local appearance photo現地外観写真  Building completed. You can see the room
建物完成。室内ご覧いただけます
Otherその他  Famous subdivision in the cherry trees
桜並木で有名な分譲地
 500m to Seiyu
西友まで500m
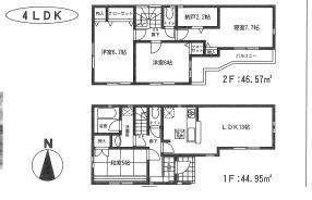
Floor plan間取り図  26,800,000 yen, 4LDK, Land area 100.73 sq m , Building area 91.52 sq m Zenshitsuminami facing bright dwelling.
2680万円、4LDK、土地面積100.73m2、建物面積91.52m2 全室南向きの明るい住まい。
Livingリビング  Living is a picture.
リビング写真です。
Bathroom浴室  Guests can relax in one tsubo type of bathroom
一坪タイプの浴室でくつろげます
Kitchenキッチン  Easy-to-use face-to-face kitchen.
使い勝手の良い対面式キッチン。
Wash basin, toilet洗面台・洗面所  Dressing room ・ Washstand is a picture.
脱衣所・洗面台写真です。
View photos from the dwelling unit住戸からの眺望写真  View is good from the balcony.
バルコニーからの眺望良好です。
Otherその他  Hisaki until elementary school 1800m
久木小学校まで1800m
 Hisaki 1400m until junior high school
久木中学校まで1400m
 Balcony is a picture.
バルコニー写真です。
Location
|