New Homes » Kyushu » Kumamoto Prefecture » Minami-ku
 
| | Kumamoto, Kumamoto Prefecture, Minami-ku, 熊本県熊本市南区 |
| San交 bus "Noguchi post office before the bus stop" walk 3 minutes 産交バス「野口郵便局前バス停」歩3分 |
| 12 / 14 (Sat) ~ Will be held for your tours to 23 (Mon)! Floor water around is together in one place, All room storage, Glad specifications, such as the second floor of the inner balcony is full. 12/14(土) ~ 23(月)までご見学会を開催いたします!水周りが1箇所にまとまった間取り、全居室収納、2階のインナーバルコニーなど嬉しい仕様がいっぱいです。 |
| Advance the development, Popular Noguchi area. In 2014 fiscal year, Chikarago Nishi Elementary School is newly opened! From the property is, School and walk about 10 minutes is safe. Nearby, There are Aqua dome and large-scale commercial facilities, Convenient access to the westbound bypass. further, New station of JR is also scheduled to open. 開発が進む、人気の野口エリア。平成26年度には、力合西小学校が新しく開校!物件からは、徒歩約10分と通学も安心です。近くには、アクアドームや大型商業施設があり、西回りバイパスへのアクセスも便利。さらに、JRの新駅も開設予定です。 |
Features pickup 特徴ピックアップ | | Pre-ground survey / Parking three or more possible / Land 50 square meters or more / Facing south / System kitchen / All room storage / A quiet residential area / LDK15 tatami mats or more / Japanese-style room / Face-to-face kitchen / Toilet 2 places / Bathroom 1 tsubo or more / 2-story / Double-glazing / Nantei / The window in the bathroom / TV monitor interphone / Walk-in closet / Living stairs / City gas / Development subdivision in 地盤調査済 /駐車3台以上可 /土地50坪以上 /南向き /システムキッチン /全居室収納 /閑静な住宅地 /LDK15畳以上 /和室 /対面式キッチン /トイレ2ヶ所 /浴室1坪以上 /2階建 /複層ガラス /南庭 /浴室に窓 /TVモニタ付インターホン /ウォークインクロゼット /リビング階段 /都市ガス /開発分譲地内 | Event information イベント情報 | | Because we do not have resident staff in local, Thank you in advance for your reservation sure. Hours: 9:00 ~ 18:00 weekday of your tour is also available. Please feel free to contact us to 096-388-1811! 現地にスタッフが常駐しておりませんので、必ず事前のご予約をお願いいたします。受付時間:9:00 ~ 18:00平日のご見学も可能です。096-388-1811までお気軽にお問い合わせください! | Property name 物件名 | | [Anessis] Noguchi 2-chome ~ Scheduled JR new station and the new elementary school! ! 【アネシス】野口2丁目 ~ JR新設駅や新設小学校が予定!! | Price 価格 | | 30,580,000 yen 3058万円 | Floor plan 間取り | | 4LDK 4LDK | Units sold 販売戸数 | | 1 units 1戸 | Total units 総戸数 | | 1 units 1戸 | Land area 土地面積 | | 201.97 sq m (61.09 tsubo) (Registration) 201.97m2(61.09坪)(登記) | Building area 建物面積 | | 118.82 sq m (35.94 tsubo) (Registration) 118.82m2(35.94坪)(登記) | Driveway burden-road 私道負担・道路 | | Nothing, East 5.3m width 無、東5.3m幅 | Completion date 完成時期(築年月) | | July 2013 2013年7月 | Address 住所 | | Kumamoto, Kumamoto Prefecture, Minami-ku, Noguchi 2 熊本県熊本市南区野口2 | Traffic 交通 | | San交 bus "Noguchi post office before the bus stop" walk 3 minutes 産交バス「野口郵便局前バス停」歩3分 | Related links 関連リンク | | [Related Sites of this company] 【この会社の関連サイト】 | Person in charge 担当者より | | Rep Shuto Nagi Age: 20s 担当者首藤 凪年齢:20代 | Contact お問い合せ先 | | TEL: 0800-603-3398 [Toll free] mobile phone ・ Also available from PHS Caller ID is not notified Please contact the "saw SUUMO (Sumo)" If it does not lead, If the real estate company TEL:0800-603-3398【通話料無料】携帯電話・PHSからもご利用いただけます 発信者番号は通知されません 「SUUMO(スーモ)を見た」と問い合わせください つながらない方、不動産会社の方は
| Building coverage, floor area ratio 建ぺい率・容積率 | | 40% ・ 80% 40%・80% | Time residents 入居時期 | | Consultation 相談 | Land of the right form 土地の権利形態 | | Ownership 所有権 | Structure and method of construction 構造・工法 | | Wooden 2-story (framing method) 木造2階建(軸組工法) | Construction 施工 | | (Ltd.) Anessis (株)アネシス | Use district 用途地域 | | Urbanization control area 市街化調整区域 | Overview and notices その他概要・特記事項 | | Contact: Shuto calm, Facilities: Public Water Supply, This sewage, City gas, Building Permits reason: land sale by the development permit, etc., Building confirmation number: No. ERI13017906 2013 April 25,, Parking: car space 担当者:首藤 凪、設備:公営水道、本下水、都市ガス、建築許可理由:開発許可等による分譲地、建築確認番号:第ERI13017906号 平成25年4月25日、駐車場:カースペース | Company profile 会社概要 | | <Seller> Kumamoto Governor (4) No. 003,707 (one company), Kumamoto Prefecture Building Lots and Buildings Transaction Business Association (One company) Kyushu Real Estate Fair Trade Council member (Ltd.) Anessis Yubinbango861-8039 Kumamoto, Kumamoto Prefecture, Higashi-ku, Nagamineminami 8-8-55 <売主>熊本県知事(4)第003707号(一社)熊本県宅地建物取引業協会会員 (一社)九州不動産公正取引協議会加盟(株)アネシス〒861-8039 熊本県熊本市東区長嶺南8-8-55 |
Livingリビング  It is the first floor of the state as seen from the dining. Is on the south side there is also a large window, We finished in the open space.
ダイニングから見た1階の様子です。南側には大きな窓もあり、開放的な空間に仕上がっています。
 There are large windows on the south side, Living room bathed in a lot of light. Together with Japanese-style room of Tsuzukiai, 22 Pledge clear some space.
南側に大きな窓があり、たくさんの光が差し込むリビング。続き間の和室を合わせると、22帖のゆとりある空間。
Local appearance is a picture. Parking is secured three! It is safe even when the customers come.現地外観写真です。駐車場は3台確保!お客様がいらっしゃるときでも安心です。  Local appearance is a picture.
現地外観写真です。
Bathroom浴室  Summarized in white, Clean bathroom ・ Washroom. kitchen ・ Washroom ・ Since the water around the relationship of the bathroom are together near, Is easy floor plan of housework.
白でまとめた、清潔な浴室・洗面所。キッチン・洗面所・浴室の水周り関係が近くにまとまっているため、家事のしやすい間取りです。
Kitchenキッチン  State overlooking the kitchen from the living room to the Japanese-style room. From the kitchen, Washroom ・ Back and forth to the bathroom has become also is likely to floor plan.
リビングから和室までの様子が見渡せるキッチン。キッチンから、洗面所・お風呂場への行き来がしやすい間取りにもなっています。
Other localその他現地  Entrance to welcome you. It is refreshing impression.
お客様をお出迎えする玄関。すっきりとした印象です。
Non-living roomリビング以外の居室  Japanese-style room has become a living and Tsuzukiai, Further sense of openness is felt.
和室はリビングと続き間になっており、さらに開放感が感じられます。
Other localその他現地  Inner balcony on the second floor. Your laundry on a rainy day is also safe!
2階にあるインナーバルコニー。雨の日のお洗濯も安心です!
Wash basin, toilet洗面台・洗面所  The washroom, Also provided storage space using the under stairs.
洗面所には、階段下を利用した収納スペースも設けられています。
Non-living roomリビング以外の居室  6 Pledge of Japanese-style room. Because it is taking a wide enough, It is also available as a bedroom for visitors.
6帖の和室。十分な広さをとっているため、来客用の寝室としても利用可能です。
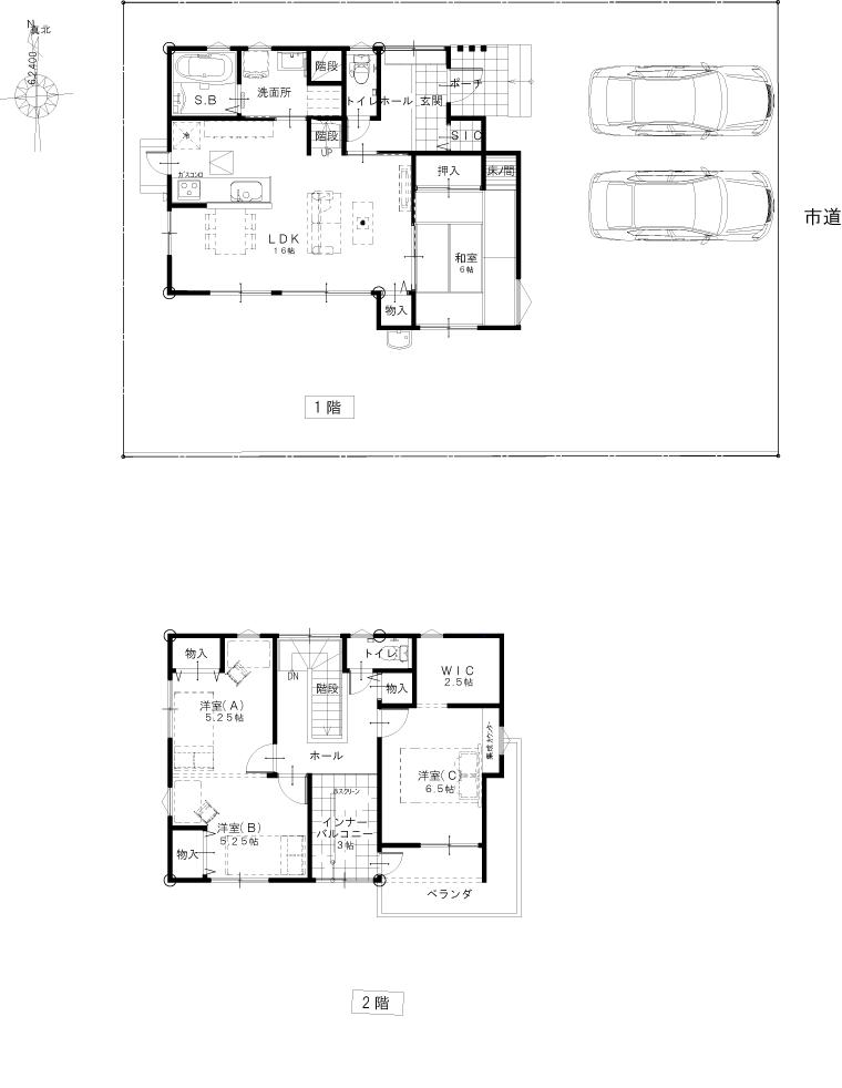
Floor plan間取り図  30,580,000 yen, 4LDK, Land area 201.97 sq m , Building area 118.82 sq m 18 No. land model house floor plan water around the unity in one place, Is easy floor plan of housework.
3058万円、4LDK、土地面積201.97m2、建物面積118.82m2 18号地モデルハウス間取り図水周りが1箇所にまとまり、家事のしやすい間取りです。
Primary school小学校  Chikarago until elementary school 1420m
力合小学校まで1420m
Junior high school中学校  Chikarago until junior high school 750m
力合中学校まで750m
Kindergarten ・ Nursery幼稚園・保育園  Until Renai OsanaIkuen 510m
仁愛幼育園まで510m
Supermarketスーパー  Marushoku Until Usuba shop 430m
マルショク 薄場店まで430m
Other Environmental Photoその他環境写真  510m until the Aqua Dome Kumamoto
アクアドームくまもとまで510m
Post office郵便局  220m until Noguchi simple post office
野口簡易郵便局まで220m
Location
|