New Homes » Kansai » Kyoto » Kameoka
 
| | Kyoto Prefecture Kameoka 京都府亀岡市 |
| JR San-in Main Line "Sendai River" walk 8 minutes JR山陰本線「千代川」歩8分 |
| ● newly built one detached ● leeway 4LDK ● south-facing sun those good (West park) ● 2 cars parking Allowed ● 交買 have convenient locations ●新築一戸建 ●ゆとりの4LDK ●南向き陽当良好 (西側公園) ●2台駐車可 ●交買い便利地 |
| Year Available, Parking two Allowed, Super close, Facing south, Bathroom Dryer, Yang per good, Flat to the station, Siemens south road, LDK15 tatami mats or more, Or more before road 6mese-style room, Face-to-face kitchen, Toilet 2 places, 2-story, Double-glazing, The window in the bathroom, Ventilation good, All room 6 tatami mats or more, Flat terrain, Readjustment land within 年内入居可、駐車2台可、スーパーが近い、南向き、浴室乾燥機、陽当り良好、駅まで平坦、南側道路面す、LDK15畳以上、前道6m以上、和室、対面式キッチン、トイレ2ヶ所、2階建、複層ガラス、浴室に窓、通風良好、全居室6畳以上、平坦地、区画整理地内 |
Features pickup 特徴ピックアップ | | Year Available / Parking two Allowed / Super close / Facing south / Bathroom Dryer / Yang per good / Flat to the station / Siemens south road / LDK15 tatami mats or more / Or more before road 6m / Japanese-style room / Face-to-face kitchen / Toilet 2 places / 2-story / Double-glazing / The window in the bathroom / Ventilation good / All room 6 tatami mats or more / Flat terrain / Readjustment land within 年内入居可 /駐車2台可 /スーパーが近い /南向き /浴室乾燥機 /陽当り良好 /駅まで平坦 /南側道路面す /LDK15畳以上 /前道6m以上 /和室 /対面式キッチン /トイレ2ヶ所 /2階建 /複層ガラス /浴室に窓 /通風良好 /全居室6畳以上 /平坦地 /区画整理地内 | Price 価格 | | 24,800,000 yen 2480万円 | Floor plan 間取り | | 4LDK 4LDK | Units sold 販売戸数 | | 1 units 1戸 | Total units 総戸数 | | 1 units 1戸 | Land area 土地面積 | | 103.86 sq m (registration) 103.86m2(登記) | Building area 建物面積 | | 95.17 sq m (registration) 95.17m2(登記) | Driveway burden-road 私道負担・道路 | | Nothing 無 | Completion date 完成時期(築年月) | | November 2013 2013年11月 | Address 住所 | | Kyoto Prefecture Kameoka Sendai River MachiTakanoRin Nishinohatake 京都府亀岡市千代川町高野林西ノ畑 | Traffic 交通 | | JR San-in Main Line "Sendai River" walk 8 minutes JR山陰本線「千代川」歩8分
| Related links 関連リンク | | [Related Sites of this company] 【この会社の関連サイト】 | Person in charge 担当者より | | Person in charge of real-estate and building Izuta HareTamotsu Age: 30s local born of experience, Taking advantage of the knowledge, To cherish the encounter with everyone, I will my best to help you in your position. 担当者宅建伊豆田 晴保年齢:30代地元出身の経験、知識を生かし、皆様との出会いを大切にし、お客様の立場で精一杯お手伝いさせて頂きます。 | Contact お問い合せ先 | | TEL: 0800-603-8791 [Toll free] mobile phone ・ Also available from PHS Caller ID is not notified Please contact the "saw SUUMO (Sumo)" If it does not lead, If the real estate company TEL:0800-603-8791【通話料無料】携帯電話・PHSからもご利用いただけます 発信者番号は通知されません 「SUUMO(スーモ)を見た」と問い合わせください つながらない方、不動産会社の方は
| Building coverage, floor area ratio 建ぺい率・容積率 | | 60% ・ 200% 60%・200% | Time residents 入居時期 | | Consultation 相談 | Land of the right form 土地の権利形態 | | Ownership 所有権 | Structure and method of construction 構造・工法 | | Wooden 2-story 木造2階建 | Use district 用途地域 | | One dwelling 1種住居 | Overview and notices その他概要・特記事項 | | Contact: Izuta HareTamotsu, Building confirmation number: No. Trust 13-2043, Parking: car space 担当者:伊豆田 晴保、建築確認番号:第トラスト13-2043号、駐車場:カースペース | Company profile 会社概要 | | <Mediation> Governor of Kyoto Prefecture (3) Article 011 708 issue (Ltd.) House port Yubinbango610-1101 Kyoto, Kyoto Prefecture Nishikyo Ku Oekitakutsukake cho 2-12-1 Sun City Katsurazaka 1 Ichibankan 5 <仲介>京都府知事(3)第011708号(株)ハウスポート〒610-1101 京都府京都市西京区大枝北沓掛町2-12-1 サンシティ桂坂1番館5 |
Local appearance photo現地外観写真  Local (10 May 2013) Shooting
現地(2013年10月)撮影
 Local (10 May 2013) Shooting
現地(2013年10月)撮影
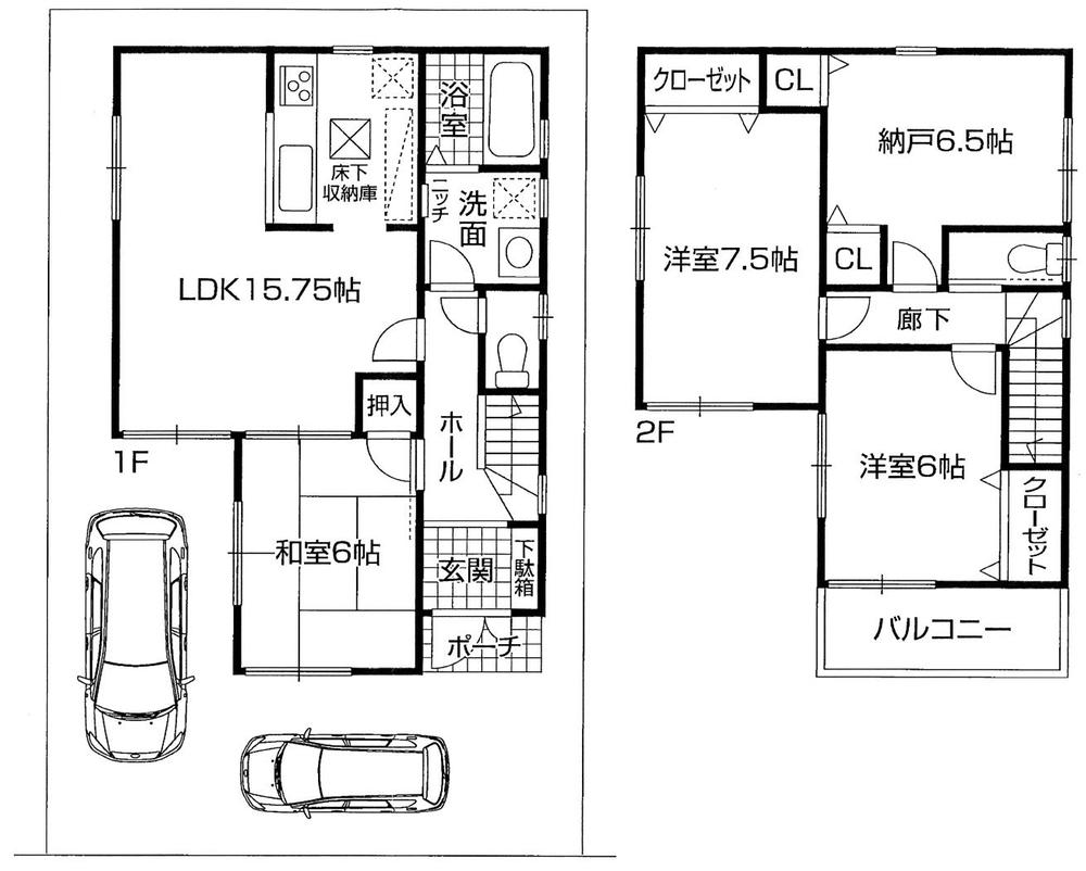
Floor plan間取り図  24,800,000 yen, 4LDK, Land area 103.86 sq m , Building area 95.17 sq m
2480万円、4LDK、土地面積103.86m2、建物面積95.17m2
Local photos, including front road前面道路含む現地写真  Local (10 May 2013) Shooting
現地(2013年10月)撮影
Supermarketスーパー  500m to Super Matsumoto Sendai River store
スーパーマツモト千代川店まで500m
Local photos, including front road前面道路含む現地写真  Local (10 May 2013) Shooting
現地(2013年10月)撮影
Drug storeドラッグストア  Drag Yutaka until the Sendai shop 480m
ドラッグユタカ千代川店まで480m
Primary school小学校  Kameoka Municipal Sendai River up to elementary school 720m
亀岡市立千代川小学校まで720m
Bank銀行  Bank of Kyoto Sendai River to the branch 480m
京都銀行千代川支店まで480m
Location
|