2014March
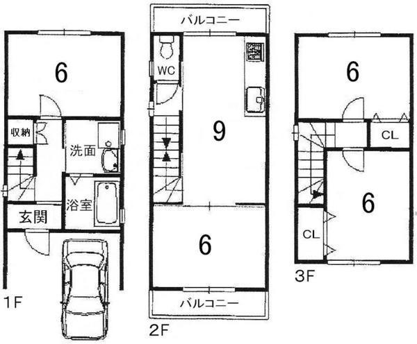
27,800,000 yen, 4LDK, 77.76 sq m
New Homes » Kansai » Kyoto » Kamigyo-ku

| | Kyoto, Kyoto Prefecture Tokyo District 京都府京都市上京区 |
| JR San-in Main Line "Enmachi" walk 12 minutes JR山陰本線「円町」歩12分 |
| ■ 1BOX Allowed ■ Shop 99 Kyoto Thousand Marutamachi shop walk about 8 minutes ■1BOX可■ショップ99京都千本丸太町店徒歩約8分 |
| Including west passage about 7.74 square meters 西側通路約7.74平米含む |
Features pickup 特徴ピックアップ | | Three-story or more / City gas 3階建以上 /都市ガス | Price 価格 | | 27,800,000 yen 2780万円 | Floor plan 間取り | | 4LDK 4LDK | Units sold 販売戸数 | | 1 units 1戸 | Land area 土地面積 | | 56.34 sq m (registration) 56.34m2(登記) | Building area 建物面積 | | 77.76 sq m 77.76m2 | Driveway burden-road 私道負担・道路 | | Nothing, East 4.1m width (contact the road width 4m) 無、東4.1m幅(接道幅4m) | Completion date 完成時期(築年月) | | March 2014 2014年3月 | Address 住所 | | Kyoto-shi, Kyoto Kamigyo-ku Nakano-cho 京都府京都市上京区仲之町 | Traffic 交通 | | JR San-in Main Line "Enmachi" walk 12 minutes JR山陰本線「円町」歩12分
| Related links 関連リンク | | [Related Sites of this company] 【この会社の関連サイト】 | Contact お問い合せ先 | | Century 21 (Ltd.) Meisei housing TEL: 0800-603-6407 [Toll free] mobile phone ・ Also available from PHS Caller ID is not notified Please contact the "saw SUUMO (Sumo)" If it does not lead, If the real estate company センチュリー21(株)明成ハウジングTEL:0800-603-6407【通話料無料】携帯電話・PHSからもご利用いただけます 発信者番号は通知されません 「SUUMO(スーモ)を見た」と問い合わせください つながらない方、不動産会社の方は
| Building coverage, floor area ratio 建ぺい率・容積率 | | 60% ・ 200% 60%・200% | Time residents 入居時期 | | Consultation 相談 | Land of the right form 土地の権利形態 | | Ownership 所有権 | Structure and method of construction 構造・工法 | | Wooden three-story 木造3階建 | Use district 用途地域 | | Semi-industrial 準工業 | Overview and notices その他概要・特記事項 | | Facilities: Public Water Supply, This sewage, City gas, Building confirmation number: 216360 設備:公営水道、本下水、都市ガス、建築確認番号:216360 | Company profile 会社概要 | | <Mediation> Governor of Kyoto Prefecture (2) the first 011,664 No. Century 21 (Ltd.) Meisei housing Yubinbango615-0901 Kyoto, Kyoto Prefecture Ukyo-ku, Umezuminamihiro-cho, 25 <仲介>京都府知事(2)第011664号センチュリー21(株)明成ハウジング〒615-0901 京都府京都市右京区梅津南広町25 |
Floor plan間取り図  27,800,000 yen, 4LDK, Land area 56.34 sq m , Building area 77.76 sq m
2780万円、4LDK、土地面積56.34m2、建物面積77.76m2
Location
|