New Homes » Kansai » Kyoto » Muko
 
| | Kyoto Prefecture Muko 京都府向日市 |
| JR Tokaido Line "Muko town" walk 5 minutes JR東海道本線「向日町」歩5分 |
| Let's realize the "design house" and "station near life"! "Station near" because traffic ・ shopping ・ Medical care ・ Financial and various facilities have been enhanced. Is the "station near" Yet very quiet with no less of a car and pedestrian traffic. 「駅近生活」を「デザイン住宅」で実現しましょう!「駅近」なので交通・買物・医療・金融など様々な施設が充実しています。「駅近」なのに車や人通りの少くなくとても静かです。 |
| Of Howes real estate "house-building" is, Design and function, of course, "floor plan" has an emphasis on originality to build thinking "line of sight" to read "light", "Wind" that fits in the land. Also, According to customer per person per person of personality will continue building a "nice My Home" only one of the world. By all means, please consult. ハウズ不動産の「家造り」は、デザインや機能はもちろん「間取り」はその土地に合った「光」「風」を読み「視線」を考えて造るオリジナル性を重視しています。また、お客様お一人お一人の個性に合わせて世界にたった一つの「素敵なマイホーム」を造って参ります。是非ご相談下さい。 |
Features pickup 特徴ピックアップ | | Eco-point target housing / Measures to conserve energy / Seismic fit / Year Available / Parking three or more possible / 2 along the line more accessible / LDK20 tatami mats or more / Energy-saving water heaters / Super close / It is close to the city / Bathroom Dryer / Yang per good / All room storage / Flat to the station / A quiet residential area / Shaping land / Washbasin with shower / Wide balcony / Barrier-free / Bathroom 1 tsubo or more / 2-story / Double-glazing / Warm water washing toilet seat / The window in the bathroom / TV monitor interphone / High-function toilet / Urban neighborhood / Ventilation good / All living room flooring / Walk-in closet / Living stairs / Flat terrain / Floor heating エコポイント対象住宅 /省エネルギー対策 /耐震適合 /年内入居可 /駐車3台以上可 /2沿線以上利用可 /LDK20畳以上 /省エネ給湯器 /スーパーが近い /市街地が近い /浴室乾燥機 /陽当り良好 /全居室収納 /駅まで平坦 /閑静な住宅地 /整形地 /シャワー付洗面台 /ワイドバルコニー /バリアフリー /浴室1坪以上 /2階建 /複層ガラス /温水洗浄便座 /浴室に窓 /TVモニタ付インターホン /高機能トイレ /都市近郊 /通風良好 /全居室フローリング /ウォークインクロゼット /リビング階段 /平坦地 /床暖房 | Price 価格 | | 42,800,000 yen 4280万円 | Floor plan 間取り | | 3LDK + S (storeroom) 3LDK+S(納戸) | Units sold 販売戸数 | | 1 units 1戸 | Total units 総戸数 | | 2 units 2戸 | Land area 土地面積 | | 124.28 sq m (37.59 tsubo) (measured) 124.28m2(37.59坪)(実測) | Building area 建物面積 | | 102.46 sq m (30.99 tsubo) (measured) 102.46m2(30.99坪)(実測) | Driveway burden-road 私道負担・道路 | | 11.15 sq m , East 4m width (contact the road width 8.2m) 11.15m2、東4m幅(接道幅8.2m) | Completion date 完成時期(築年月) | | 4 months after the contract 契約後4ヶ月 | Address 住所 | | Morimoto above Kyoto Muko Morimoto-cho, 16-10 京都府向日市森本町上森本16-10 | Traffic 交通 | | JR Tokaido Line "Muko town" walk 5 minutes Hankyu Kyoto Line "Higashimuko" walk 8 minutes JR東海道本線「向日町」歩5分 阪急京都線「東向日」歩8分
| Person in charge 担当者より | | Person in charge of forest 將延 担当者林 將延 | Contact お問い合せ先 | | Howes Real Estate TEL: 0800-603-3445 [Toll free] mobile phone ・ Also available from PHS Caller ID is not notified Please contact the "saw SUUMO (Sumo)" If it does not lead, If the real estate company ハウズ不動産TEL:0800-603-3445【通話料無料】携帯電話・PHSからもご利用いただけます 発信者番号は通知されません 「SUUMO(スーモ)を見た」と問い合わせください つながらない方、不動産会社の方は
| Expenses 諸費用 | | Building construction cost: 500,000 yen / Bulk, Water admission fee: 300,000 yen / Bulk 建築確認費用:50万円/一括、水道加入金:30万円/一括 | Building coverage, floor area ratio 建ぺい率・容積率 | | 60% ・ 160% 60%・160% | Time residents 入居時期 | | Consultation 相談 | Land of the right form 土地の権利形態 | | Ownership 所有権 | Structure and method of construction 構造・工法 | | Wooden 2-story (framing method) 木造2階建(軸組工法) | Construction 施工 | | Howes real estate ハウズ不動産 | Use district 用途地域 | | One dwelling 1種住居 | Other limitations その他制限事項 | | Setback: upon 5.33 sq m セットバック:要5.33m2 | Overview and notices その他概要・特記事項 | | Contact: Lin 將延, Facilities: Public Water Supply, This sewage, City gas, Building confirmation number: H24 building certification No. 000884, Parking: car space 担当者:林 將延、設備:公営水道、本下水、都市ガス、建築確認番号:H24確認建築000884号、駐車場:カースペース | Company profile 会社概要 | | <Seller> Governor of Shiga Prefecture (2) No. 002919 Howes real estate Yubinbango520-0066 Otsu, Shiga Prefecture Chad-cho 5-10 <売主>滋賀県知事(2)第002919号ハウズ不動産〒520-0066 滋賀県大津市茶戸町5-10 |
Rendering (appearance)完成予想図(外観)  No. 2 place / Rendering. And fulfilling the "design" of the "CUBE house" unique "equipment" to please have a look.
2号地/完成予想図。「CUBE house」ならではの「デザイン」と充実した「設備」を是非ご覧下さい。
Otherその他  Pin on this logo! Please contact us when it comes. Meet surely "a good home".
このロゴにピン!ときたら是非お問い合わせ下さい。きっと「いい家」に出会えます。
Compartment figure区画図  42,800,000 yen, 3LDK + S (storeroom), Land area 124.28 sq m , It is a building area of 102.46 sq m new section view. It is a rectangular section of which was refreshing. No. 1 destination is completed your tenants already.
4280万円、3LDK+S(納戸)、土地面積124.28m2、建物面積102.46m2 新区画図です。スッキリとした長方形の区画です。1号地は完成しご入居済みです。
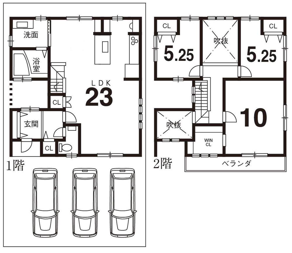
Floor plan間取り図  42,800,000 yen, 3LDK + S (storeroom), Land area 124.28 sq m , 3LDK with an emphasis on building area 102.46 sq m spacious as the "space" and "functional". From anywhere in the "light" leads to a "wind", Was also friendly "line of sight" from the outside is the "original design house.".
4280万円、3LDK+S(納戸)、土地面積124.28m2、建物面積102.46m2 広々とした「空間」と「機能性」を重視した3LDK。どこからでも「光」と「風」を招き、外部からの「視線」にも配慮した「オリジナルデザイン住宅」です。
Rendering (appearance)完成予想図(外観)  Howes "builders" of the real estate will aim to "only one of the house in the world" which realized the overwhelming presence and full of personality design.
ハウズ不動産の「家造り」は圧倒的な存在感と個性あふれるデザインを実現した「世界にたった一つの家」を目指します。
Livingリビング  Joinery and building materials, Such as flooring all have stuck to the design and functionality. Gas hot water floor heating "nook" is also equipped.
建具や建材、フローリングなどすべてデザインと機能にこだわっています。ガス温水床暖房「ヌック」も完備。
Bathroom浴室  Familiar is made "LIXIL" even TVCM. Also substantial clean your can function in the care Ease.
TVCMでもおなじみの「LIXIL」製です。お手入れがラクラクで清潔にお使い頂け機能も充実しています。
Kitchenキッチン  Familiar is made "LIXIL" even TVCM. Built-in dish washing dryer, A commitment to ease of use and design, such as water purification function shower faucet.
TVCMでもおなじみの「LIXIL」製です。ビルトイン食器洗乾燥機、浄水機能付シャワー水栓など使い易さとデザインにもこだわりを。
Entrance玄関  Also consideration to the "security" face not only the design and functionality you can choose also stuck to the specification, such as "key card".
デザインや機能性だけでなく「セキュリティ」面にも配慮して「カードキー」など仕様にもこだわってお選び頂けます。
Wash basin, toilet洗面台・洗面所  Familiar is made "LIXIL" even TVCM. It features easy shower faucet use a major wash ball. Easy to clean. Storage also can be a lot in the three-sided mirror type. Please enter the image caption. (100 characters)
TVCMでもおなじみの「LIXIL」製です。大きな洗面ボールと使い易いシャワー水栓が特徴です。お手入れもラクラク。三面鏡タイプで収納もたくさん出来ます。画像キャプションを入力してください。(100文字)
Toiletトイレ  Familiar is made "LIXIL" even TVCM. Shower toilet with a toilet bowl ・ Toilet seat is a design and refreshing of the tank and the integrated. Ease-of-use with the remote control function also up.
TVCMでもおなじみの「LIXIL」製です。シャワートイレ付きの便器・便座はタンクと一体のスッキリとしたデザインです。リモコン機能で使い易さもアップしています。
Shopping centreショッピングセンター  ion ・ "Ion" is yet within walking distance of the front of the station 650m anything aligned nationwide to Higashimuko shop. Multi-storey car park is also located very convenient.
イオン・東向日店まで650m 何でもそろう全国展開の「イオン」が駅前でしかも徒歩圏内。立体駐車場もあり大変に便利です。
Other introspectionその他内観  Peasasshi is a good thing that has been friendly heating and cooling efficiency. Difficult to heat insulation effect out "condensation", Also it has excellent sound insulation effect.
ペアサッシは冷暖房効率に配慮された優れモノです。「結露」が出にくく断熱効果、遮音効果にも優れています。
Local guide map現地案内図  Local and JR "Muko-cho" station, This house map showing the arrangement of the Hankyu "Higashimuko" station. It has become like "Triangle".
現地とJR「向日町」駅、阪急「東向日」駅との配置を示す住宅地図です。「トライアングル」状になっています。
Station駅  JR "Muko town" to the station from 400m Kyoto Station to the whole country in the use of "bullet train". Access to the world from the Kansai International Airport. It is the "new fast" convenient and boarding time of about 30 minutes in the use to Osaka.
JR「向日町」駅まで400m 京都駅から「新幹線」利用で全国へ。関西国際空港から世界へアクセス。「新快速」利用で大阪へも乗車時間約30分と便利です。
 Hankyu "Higashimuko" straight to 600m Kyoto city's downtown to the station! Osaka, "Umeda" and access to popular cities such as Kobe "Sannomiya" is very convenient.
阪急「東向日」駅まで600m 京都市内の繁華街へ直行!大阪「梅田」や神戸「三宮」など人気都市へのアクセスが大変に便利です。
Local photos, including front road前面道路含む現地写真  Compartment is and refreshing. The back of the land will have views of the mountains from the upstairs window in a plastic house. Local (12 May 2013) Shooting
スッキリとした区画です。土地の裏はビニールハウスで2階の窓からは山の景色が望めます。現地(2013年12月)撮影
 Car and it is less crowded very quiet environment. Local (12 May 2013) Shooting
車や人通りの少ないとても静かな環境です。現地(2013年12月)撮影
 No. 1 destination is already completed. Compartment now also, as can be seen clearly. Local (12 May 2013) Shooting
1号地は完成済み。区画もハッキリわかるようになりました。現地(2013年12月)撮影
Local appearance photo現地外観写真  No. 1 destination is already completed. Customer is a modern design house that has been the order. Is your move has been tenants. Local (12 May 2013) Shooting
1号地は完成済み。お客様がオーダーされたモダンなデザイン住宅です。お引っ越しされ入居されました。現地(2013年12月)撮影
 No. 1 destination is already completed. Also match the design of the customer is the order house outside 構工 that. . Is your move has been tenants. Local (12 May 2013) Shooting
1号地は完成済み。外構工事もお客様がオーダーされお家のデザインにマッチしています。。お引っ越しされ入居されました。現地(2013年12月)撮影
Location
|