New Homes » Tokai » Mie Prefecture » Mie District
 
| | Mie Prefecture Mie-gun, Komono-cho 三重県三重郡菰野町 |
| Kintetsu Yunoyama Line "Komono medium" walk 3 minutes 近鉄湯の山線「中菰野」歩3分 |
| [Daiwa House] Adopted the way of light, Of wind path, Precisely calculated up to the line of sight of the destination of the time relaxing in the living room, We have a little bit different urban development. 【ダイワハウス】光の採り入れ方、風の通りみち、リビングでくつろぐ時の視線の行き先まで緻密に計算し、一味違った街づくりをしております。 |
| This urban development stuck to the 5-minute sense of openness walk to the station near elementary school 駅近小学校まで徒歩5分開放感にこだわった街づくりです |
Features pickup 特徴ピックアップ | | Long-term high-quality housing / Vibration Control ・ Seismic isolation ・ Earthquake resistant / Land 50 square meters or more / System kitchen / Japanese-style room / 2-story / The window in the bathroom / Walk-in closet / All-electric 長期優良住宅 /制震・免震・耐震 /土地50坪以上 /システムキッチン /和室 /2階建 /浴室に窓 /ウォークインクロゼット /オール電化 | Price 価格 | | 35,900,000 yen ~ 36,900,000 yen 3590万円 ~ 3690万円 | Floor plan 間取り | | 4LDK 4LDK | Units sold 販売戸数 | | 2 units 2戸 | Total units 総戸数 | | 6 units 6戸 | Land area 土地面積 | | 198.35 sq m ~ 229.32 sq m 198.35m2 ~ 229.32m2 | Building area 建物面積 | | 123.26 sq m ~ 123.69 sq m 123.26m2 ~ 123.69m2 | Completion date 完成時期(築年月) | | November 2013 2013年11月 | Address 住所 | | Mie Prefecture Mie-gun, Komono-cho Oaza Komono 2601-1 safety of medical electrical equipment, 2601-3 三重県三重郡菰野町大字菰野2601-1、2601-3他 | Traffic 交通 | | Kintetsu Yunoyama Line "Komono medium" walk 3 minutes 近鉄湯の山線「中菰野」歩3分
| Related links 関連リンク | | [Related Sites of this company] 【この会社の関連サイト】 | Person in charge 担当者より | | Rep Yosuke Yamamoto 担当者山本陽介 | Contact お問い合せ先 | | Daiwa House Industry Yokkaichi branch condominium sales office TEL: 059-351-1366 Please inquire as "saw SUUMO (Sumo)" 大和ハウス工業 四日市支店 分譲住宅営業所TEL:059-351-1366「SUUMO(スーモ)を見た」と問い合わせください | Expenses 諸費用 | | Other expenses: - その他諸費用:- | Building coverage, floor area ratio 建ぺい率・容積率 | | 60% ・ 200% 60%・200% | Time residents 入居時期 | | Immediate available 即入居可 | Land of the right form 土地の権利形態 | | Ownership 所有権 | Structure and method of construction 構造・工法 | | Light-gauge steel 2-story (2 units) 軽量鉄骨2階建(2戸) | Use district 用途地域 | | Two dwellings 2種住居 | Land category 地目 | | Residential land 宅地 | Overview and notices その他概要・特記事項 | | Contact: Yosuke YAMAMOTO, Building confirmation number: H25 confirmation Ken'nishi Review three 00161 No. other 担当者:山本陽介、建築確認番号:H25確認建西評三00161号他 | Company profile 会社概要 | | [Advertiser] <Seller> Minister of Land, Infrastructure and Transport (14) No. 245 (company) Osaka realty business Association (Company) Real Estate Association Daiwa House Industry Co., Ltd. Yubinbango530-8241 Osaka Umeda 3-chome No. 3 No. 5 [Seller] Daiwa House Industry Co., Ltd. [Sale] Seller 【広告主】<売主>国土交通大臣(14)第245号(社)大阪府宅地建物取引業協会会員(社)不動産協会会員大和ハウス工業株式会社〒530-8241 大阪府大阪市梅田3丁目3番5号【売主】大和ハウス工業株式会社【販売】売主 |
Local appearance photo現地外観写真 ![Local appearance photo. [No. 1 destination] Appearance Photo] 2013 November shooting](/images/mie/miegun/09292c0005.jpg) [No. 1 destination] Appearance Photo] 2013 November shooting
【1号地】[外観写真]平成25年11月撮影
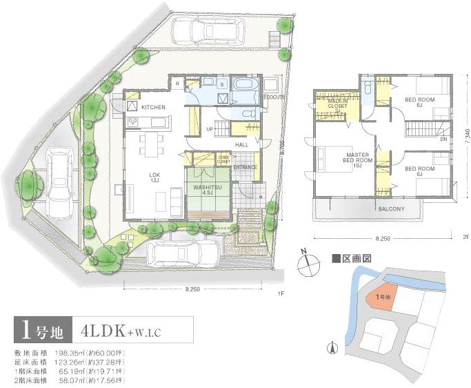
Floor plan間取り図 ![Floor plan. [No. 1 destination] So we have drawn on the basis of the Plan view] drawings, Plan and the outer structure ・ Planting, such as might actually differ slightly from. Also, furniture ・ Car, etc. are not included in the price.](/images/mie/miegun/09292c0006.jpg) [No. 1 destination] So we have drawn on the basis of the Plan view] drawings, Plan and the outer structure ・ Planting, such as might actually differ slightly from. Also, furniture ・ Car, etc. are not included in the price.
【1号地】[プラン図]図面を基に描いておりますので、プラン及び外構・植栽などは実際と多少異なる場合があります。 また、家具・車などは価格に含まれません。
Local appearance photo現地外観写真 ![Local appearance photo. [No. 3 place] Appearance Photo] 2013 November shooting](/images/mie/miegun/09292c0007.jpg) [No. 3 place] Appearance Photo] 2013 November shooting
【3号地】[外観写真]平成25年11月撮影
Floor plan間取り図 ![Floor plan. [No. 3 place] So we have drawn on the basis of the Plan view] drawings, Plan and the outer structure ・ Planting, such as might actually differ slightly from. Also, furniture ・ Car, etc. are not included in the price.](/images/mie/miegun/09292c0008.jpg) [No. 3 place] So we have drawn on the basis of the Plan view] drawings, Plan and the outer structure ・ Planting, such as might actually differ slightly from. Also, furniture ・ Car, etc. are not included in the price.
【3号地】[プラン図]図面を基に描いておりますので、プラン及び外構・植栽などは実際と多少異なる場合があります。 また、家具・車などは価格に含まれません。
Livingリビング ![Living. [No. 3 place] [Introspection Photo] 2013 November shooting ※ Photos furniture ・ Such as furniture are not included in the price.](/images/mie/miegun/09292c0010.jpg) [No. 3 place] [Introspection Photo] 2013 November shooting ※ Photos furniture ・ Such as furniture are not included in the price.
【3号地】[内観写真]平成25年11月撮影 ※写真の家具・調度品などは価格に含まれません。
Kitchenキッチン ![Kitchen. [No. 3 place] [Introspection Photo] 2013 November shooting ※ Photos furniture ・ Such as furniture are not included in the price.](/images/mie/miegun/09292c0012.jpg) [No. 3 place] [Introspection Photo] 2013 November shooting ※ Photos furniture ・ Such as furniture are not included in the price.
【3号地】[内観写真]平成25年11月撮影 ※写真の家具・調度品などは価格に含まれません。
Non-living roomリビング以外の居室 ![Non-living room. [No. 3 place] [Introspection Photo] 2013 November shooting ※ Photos furniture ・ Such as furniture are not included in the price.](/images/mie/miegun/09292c0011.jpg) [No. 3 place] [Introspection Photo] 2013 November shooting ※ Photos furniture ・ Such as furniture are not included in the price.
【3号地】[内観写真]平成25年11月撮影 ※写真の家具・調度品などは価格に含まれません。
Local guide map現地案内図  ※ Near the guide map
※付近案内図
Otherその他 ![Other. [No. 3 place] Appearance Photo] 2013 November shooting](/images/mie/miegun/09292c0009.jpg) [No. 3 place] Appearance Photo] 2013 November shooting
【3号地】[外観写真]平成25年11月撮影
Location
|