|
|
Sendai, Miyagi Prefecture Izumi-ku,
宮城県仙台市泉区
|
|
Subway Namboku "Izumi Chuo" walk 28 minutes
地下鉄南北線「泉中央」歩28分
|
Features pickup 特徴ピックアップ | | Airtight high insulated houses / Pre-ground survey / Parking two Allowed / All room storage / Japanese-style room / Washbasin with shower / Barrier-free / Toilet 2 places / Bathroom 1 tsubo or more / 2-story / Warm water washing toilet seat / IH cooking heater / All-electric / Flat terrain 高気密高断熱住宅 /地盤調査済 /駐車2台可 /全居室収納 /和室 /シャワー付洗面台 /バリアフリー /トイレ2ヶ所 /浴室1坪以上 /2階建 /温水洗浄便座 /IHクッキングヒーター /オール電化 /平坦地 |
Price 価格 | | 22.5 million yen 2250万円 |
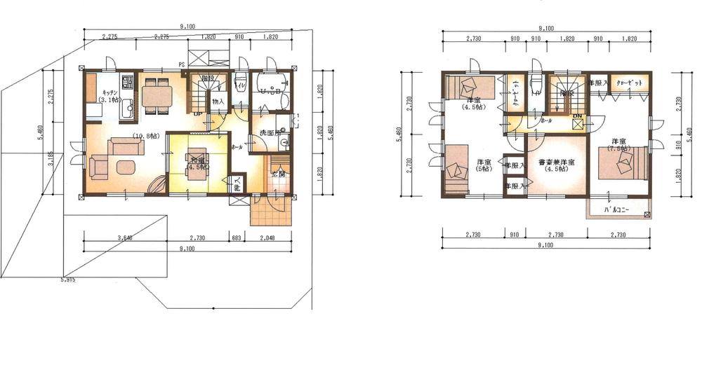
Floor plan 間取り | | 5LDK 5LDK |
Units sold 販売戸数 | | 1 units 1戸 |
Total units 総戸数 | | 1 units 1戸 |
Land area 土地面積 | | 179.52 sq m (54.30 tsubo) (Registration) 179.52m2(54.30坪)(登記) |
Building area 建物面積 | | 99.36 sq m (30.05 tsubo) (Registration) 99.36m2(30.05坪)(登記) |
Driveway burden-road 私道負担・道路 | | Nothing, South 4m width (contact the road width 2m) 無、南4m幅(接道幅2m) |
Completion date 完成時期(築年月) | | March 2014 2014年3月 |
Address 住所 | | Sendai, Miyagi Prefecture Izumi-ku, Tenjinzawa 1 宮城県仙台市泉区天神沢1 |
Traffic 交通 | | Subway Namboku "Izumi Chuo" walk 28 minutes Subway Namboku "Yaotome" walk 31 minutes Subway Namboku "black pine" walk 47 minutes 地下鉄南北線「泉中央」歩28分 地下鉄南北線「八乙女」歩31分 地下鉄南北線「黒松」歩47分
|
Contact お問い合せ先 | | Koper Estate (Ltd.) TEL: 0800-602-6039 [Toll free] mobile phone ・ Also available from PHS Caller ID is not notified Please contact the "saw SUUMO (Sumo)" If it does not lead, If the real estate company コペルエステート(株)TEL:0800-602-6039【通話料無料】携帯電話・PHSからもご利用いただけます 発信者番号は通知されません 「SUUMO(スーモ)を見た」と問い合わせください つながらない方、不動産会社の方は
|
Building coverage, floor area ratio 建ぺい率・容積率 | | 60% ・ 160% 60%・160% |
Time residents 入居時期 | | Consultation 相談 |
Land of the right form 土地の権利形態 | | Ownership 所有権 |
Structure and method of construction 構造・工法 | | Wooden 2-story (2 × 4 construction method) 木造2階建(2×4工法) |
Construction 施工 | | Koper House Co., Ltd. コペルハウス(株) |
Use district 用途地域 | | Two mid-high 2種中高 |
Other limitations その他制限事項 | | Height district 高度地区 |
Overview and notices その他概要・特記事項 | | Facilities: Public Water Supply, This sewage, All-electric, Building confirmation number: the East No. -13-07-1772, Parking: car space 設備:公営水道、本下水、オール電化、建築確認番号:第東日本-13-07-1772号、駐車場:カースペース |
Company profile 会社概要 | | <Employer ・ Marketing alliance (mediated)> Miyagi Governor (1) the first 005,823 No. Koper Estate Co., Ltd. Yubinbango981-3133 Sendai, Miyagi Prefecture Izumi-ku, Izumi Chuo 1-7-1 Izumi Chuo Station Building swing fourth floor <事業主・販売提携(媒介)>宮城県知事(1)第005823号コペルエステート(株)〒981-3133 宮城県仙台市泉区泉中央1-7-1泉中央駅ビル スウィング4階 |