2014June
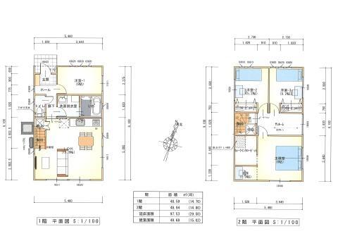
30.5 million yen, 4LDK, 97.53 sq m
New Homes » Tohoku » Miyagi Prefecture » Sendai Izumi-ku
 
| | Sendai, Miyagi Prefecture Izumi-ku, 宮城県仙台市泉区 |
| Subway Namboku "Yaotome" walk 32 minutes 地下鉄南北線「八乙女」歩32分 |
Features pickup 特徴ピックアップ | | Parking two Allowed / Land 50 square meters or more / Siemens south road / LDK15 tatami mats or more / Or more before road 6m / 2-story / Flat terrain 駐車2台可 /土地50坪以上 /南側道路面す /LDK15畳以上 /前道6m以上 /2階建 /平坦地 | Price 価格 | | 30.5 million yen 3050万円 | Floor plan 間取り | | 4LDK 4LDK | Units sold 販売戸数 | | 1 units 1戸 | Land area 土地面積 | | 165.57 sq m (measured) 165.57m2(実測) | Building area 建物面積 | | 97.53 sq m 97.53m2 | Driveway burden-road 私道負担・道路 | | Nothing, Northeast 16m width (contact the road width 8.2m), South 6m width (contact the road width 8.2m) 無、北東16m幅(接道幅8.2m)、南6m幅(接道幅8.2m) | Completion date 完成時期(築年月) | | June 2014 2014年6月 | Address 住所 | | Sendai, Miyagi Prefecture Izumi Ward Kamo 1 宮城県仙台市泉区加茂1 | Traffic 交通 | | Subway Namboku "Yaotome" walk 32 minutes 地下鉄南北線「八乙女」歩32分
| Related links 関連リンク | | [Related Sites of this company] 【この会社の関連サイト】 | Contact お問い合せ先 | | TEL: 0800-603-9528 [Toll free] mobile phone ・ Also available from PHS Caller ID is not notified Please contact the "saw SUUMO (Sumo)" If it does not lead, If the real estate company TEL:0800-603-9528【通話料無料】携帯電話・PHSからもご利用いただけます 発信者番号は通知されません 「SUUMO(スーモ)を見た」と問い合わせください つながらない方、不動産会社の方は
| Building coverage, floor area ratio 建ぺい率・容積率 | | 40% ・ 60% 40%・60% | Time residents 入居時期 | | Consultation 相談 | Land of the right form 土地の権利形態 | | Ownership 所有権 | Structure and method of construction 構造・工法 | | Wooden 2-story 木造2階建 | Use district 用途地域 | | One low-rise 1種低層 | Overview and notices その他概要・特記事項 | | Facilities: Public Water Supply, This sewage, Building confirmation number: No. H25 confirmation architecture AzumaKense No. -0805 設備:公営水道、本下水、建築確認番号:第H25確認建築東建セ-0805号 | Company profile 会社概要 | | <Mediation> Minister of Land, Infrastructure and Transport (1) the first 008,271 No. Century 21 (Ltd.) Create Rebun Yubinbango990-2413 Yamagata, Yamagata Prefecture Namwon-cho 2-7-39 <仲介>国土交通大臣(1)第008271号センチュリー21(株)クリエイト礼文〒990-2413 山形県山形市南原町2-7-39 |
 Local appearance photo
現地外観写真
Floor plan間取り図  30.5 million yen, 4LDK, Land area 165.57 sq m , Building area 97.53 sq m
3050万円、4LDK、土地面積165.57m2、建物面積97.53m2
Location
|