New Homes » Tohoku » Miyagi Prefecture » Sendai Wakabayashi-ku

| | Sendai, Miyagi Prefecture Wakabayashi-ku, 宮城県仙台市若林区 |
| Municipal bus "Ministry of Justice apartment before" walk 3 minutes 市営バス「法務省アパート前」歩3分 |
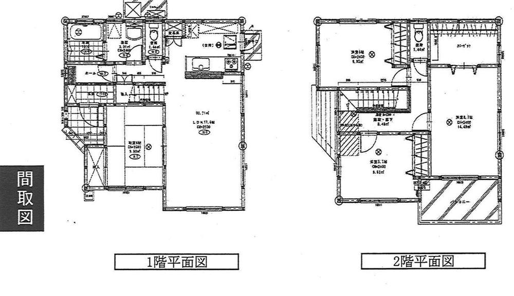
Features pickup 特徴ピックアップ | | Yang per good / Corner lot / Flat terrain 陽当り良好 /角地 /平坦地 | Price 価格 | | 33,800,000 yen 3380万円 | Floor plan 間取り | | 4LDK 4LDK | Units sold 販売戸数 | | 1 units 1戸 | Land area 土地面積 | | 137.35 sq m (measured) 137.35m2(実測) | Building area 建物面積 | | 110.13 sq m (registration) 110.13m2(登記) | Driveway burden-road 私道負担・道路 | | Nothing, South 4m width, West 4m width 無、南4m幅、西4m幅 | Completion date 完成時期(築年月) | | April 2014 2014年4月 | Address 住所 | | Sendai, Miyagi Wakabayashi-ku Wakabayashi 3 宮城県仙台市若林区若林3 | Traffic 交通 | | Municipal bus "Ministry of Justice apartment before" walk 3 minutes 市営バス「法務省アパート前」歩3分 | Contact お問い合せ先 | | TEL: 0800-805-6427 [Toll free] mobile phone ・ Also available from PHS Caller ID is not notified Please contact the "saw SUUMO (Sumo)" If it does not lead, If the real estate company TEL:0800-805-6427【通話料無料】携帯電話・PHSからもご利用いただけます 発信者番号は通知されません 「SUUMO(スーモ)を見た」と問い合わせください つながらない方、不動産会社の方は
| Building coverage, floor area ratio 建ぺい率・容積率 | | 60% ・ 200% 60%・200% | Time residents 入居時期 | | May 2014 plans 2014年5月予定 | Land of the right form 土地の権利形態 | | Ownership 所有権 | Structure and method of construction 構造・工法 | | Wooden 2-story 木造2階建 | Use district 用途地域 | | Two dwellings 2種住居 | Overview and notices その他概要・特記事項 | | Facilities: Public Water Supply, This sewage, City gas, Building confirmation number: No. H25 confirmation architecture Sendai city No. 0644, Parking: car space 設備:公営水道、本下水、都市ガス、建築確認番号:第H25確認建築仙台都市0644号、駐車場:カースペース | Company profile 会社概要 | | <Mediation> Minister of Land, Infrastructure and Transport (6) No. 004219 (the Company), Miyagi Prefecture Building Lots and Buildings Transaction Business Association Northeast Real Estate Fair Trade Council member Co., Ltd. Keihin real estate Sendai branch Yubinbango981-0954 Sendai, Miyagi Prefecture, Aoba-ku, Kabira 5-1-3 <仲介>国土交通大臣(6)第004219号(社)宮城県宅地建物取引業協会会員 東北地区不動産公正取引協議会加盟(株)京浜不動産仙台支店〒981-0954 宮城県仙台市青葉区川平5-1-3 |
Floor plan間取り図  33,800,000 yen, 4LDK, Land area 137.35 sq m , Building area 110.13 sq m
3380万円、4LDK、土地面積137.35m2、建物面積110.13m2
 Other
その他
Location
|