New Homes » Koshinetsu » Nagano Prefecture » Kitasaku-gun
 
| | Nagano Prefecture Kitasaku-gun Karuizawa 長野県北佐久郡軽井沢町 |
| Nagano Shinkansen "Karuizawa" car 8.5km 長野新幹線「軽井沢」車8.5km |
| [New construction] We price cut! The entire central heating equipment, Built-in garage, A wood-burning fireplace, Furniture Interiakodineito already listing. 【新築】値下げ致しました!全館集中暖房装備、ビルトインガレージ、薪の暖炉、家具インテリアコーディネイト済み物件。 |
Features pickup 特徴ピックアップ | | Measures to conserve energy / Airtight high insulated houses / Pre-ground survey / Seismic fit / Immediate Available / 2 along the line more accessible / LDK20 tatami mats or more / Land more than 100 square meters / It is close to ski resorts / It is close to golf course / It is close to Tennis Court / Summer resort / Facing south / System kitchen / Bathroom Dryer / Yang per good / All room storage / Around traffic fewer / Or more before road 6m / Garden more than 10 square meters / Barrier-free / Toilet 2 places / Bathroom 1 tsubo or more / 2-story / South balcony / Double-glazing / Warm water washing toilet seat / Nantei / The window in the bathroom / Atrium / TV monitor interphone / All living room flooring / Wood deck / Built garage / Dish washing dryer / Or more ceiling height 2.5m / All room 6 tatami mats or more 省エネルギー対策 /高気密高断熱住宅 /地盤調査済 /耐震適合 /即入居可 /2沿線以上利用可 /LDK20畳以上 /土地100坪以上 /スキー場が近い /ゴルフ場が近い /テニスコートが近い /避暑地 /南向き /システムキッチン /浴室乾燥機 /陽当り良好 /全居室収納 /周辺交通量少なめ /前道6m以上 /庭10坪以上 /バリアフリー /トイレ2ヶ所 /浴室1坪以上 /2階建 /南面バルコニー /複層ガラス /温水洗浄便座 /南庭 /浴室に窓 /吹抜け /TVモニタ付インターホン /全居室フローリング /ウッドデッキ /ビルトガレージ /食器洗乾燥機 /天井高2.5m以上 /全居室6畳以上 | Price 価格 | | 56 million yen 5600万円 | Floor plan 間取り | | 3LDK 3LDK | Units sold 販売戸数 | | 1 units 1戸 | Total units 総戸数 | | 1 units 1戸 | Land area 土地面積 | | 1003.23 sq m (303.47 tsubo) (Registration) 1003.23m2(303.47坪)(登記) | Building area 建物面積 | | 182.71 sq m (55.26 tsubo) (measured), Among the first floor garage 21.06 sq m 182.71m2(55.26坪)(実測)、うち1階車庫21.06m2 | Driveway burden-road 私道負担・道路 | | Nothing 無 | Completion date 完成時期(築年月) | | July 2011 2011年7月 | Address 住所 | | Nagano Prefecture Kitasaku-gun Karuizawa Oaza departure area 長野県北佐久郡軽井沢町大字発地 | Traffic 交通 | | Nagano Shinkansen "Karuizawa" car 8.5km Shinano Railway "Nakakaruizawa" car 7.5km 長野新幹線「軽井沢」車8.5km しなの鉄道「中軽井沢」車7.5km
| Related links 関連リンク | | [Related Sites of this company] 【この会社の関連サイト】 | Person in charge 担当者より | | [Regarding this property.] By all means, please feel the resort life in the American House of the same day use is possible luxury plan if to have a tableware and linen. 【この物件について】食器とリネンをお持ちになれば即日ご利用が可能な高級プランのアメリカンハウスでリゾートライフを是非ご体感下さい。 | Contact お問い合せ先 | | (Ltd.) log Resort TEL: 0120-922994 [Toll free] Please contact the "saw SUUMO (Sumo)" (株)ログリゾートTEL:0120-922994【通話料無料】「SUUMO(スーモ)を見た」と問い合わせください | Time residents 入居時期 | | Immediate available 即入居可 | Land of the right form 土地の権利形態 | | Ownership 所有権 | Structure and method of construction 構造・工法 | | Wooden 2-story (2 × 6 method) 木造2階建(2×6工法) | Other limitations その他制限事項 | | Nature protection guidelines Karuizawa, Nagano Prefecture landscape ordinance 軽井沢町自然保護対策要綱、長野県景観条例 | Overview and notices その他概要・特記事項 | | Facilities: Public Water Supply, Individual LPG, Parking: Garage 設備:公営水道、個別LPG、駐車場:車庫 | Company profile 会社概要 | | <Marketing alliance (agency)> Governor of Kanagawa Prefecture (5) No. 019889 (the company), Kanagawa Prefecture Building Lots and Buildings Transaction Business Association (Corporation) metropolitan area real estate Fair Trade Council member (Ltd.) log Resort Yubinbango223-0053 Yokohama-shi, Kanagawa-ku, Kohoku Tsunashimanishi 4-8-29 <販売提携(代理)>神奈川県知事(5)第019889号(社)神奈川県宅地建物取引業協会会員 (公社)首都圏不動産公正取引協議会加盟(株)ログリゾート〒223-0053 神奈川県横浜市港北区綱島西4-8-29 |
Local appearance photo現地外観写真  Local (July 2011) shooting
現地(2011年7月)撮影
Livingリビング  Bright and airy living room: Photos furniture, All equipment such as is standard equipment.
明るく開放的なリビングルーム:写真の家具、備品等全て標準装備です。
Non-living roomリビング以外の居室  Second floor of the main bedroom with balcony roof has been attached. All in the photos standard equipment
屋根付バルコニーが付設された2階の主寝室。写真内全て標準装備
Kitchenキッチン  Built-in cabinet storage enhancement, Gas oven range, Built-in the dishwasher, The top plate granite luxury specification
作り付けキャビネットは収納が充実、ガスオーブンレンジ、食洗器をビルトイン、天板は御影石の高級仕様
Non-living roomリビング以外の居室  Table set, Rial American House of sticking to all was coordinated purchased by the US coordinator until the tableware
テーブルセット、食器にいたるまで全て米国コーディネーターにより買い付けコーディネートされたこだわりのリアルアメリカンハウス
 Bathroom
浴室
 Living
リビング
 Non-living room
リビング以外の居室
 Wash basin, toilet
洗面台・洗面所
Balconyバルコニー  Terrace scenery because facing the slope is the best!
テラスは傾斜地に面しているので景色は最高です!
 Living
リビング
 Kitchen
キッチン
Non-living roomリビング以外の居室  bed, Table set, Mirrored closet.
ベッド、テーブルセット、鏡張りのクローゼット。
 Balcony
バルコニー
 Non-living room
リビング以外の居室
 Non-living room
リビング以外の居室
 Non-living room
リビング以外の居室
 Non-living room
リビング以外の居室
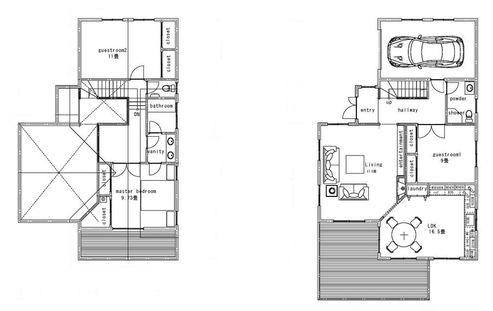
Floor plan間取り図  56 million yen, 3LDK, Land area 1,003.23 sq m , Building area 182.71 sq m
5600万円、3LDK、土地面積1,003.23m2、建物面積182.71m2
Location
|