New Homes » Koshinetsu » Nagano Prefecture » Kitasaku-gun
 
| | Nagano Prefecture Kitasaku-gun Karuizawa 長野県北佐久郡軽井沢町 |
| Nagano Shinkansen "Karuizawa" car 5.7km 長野新幹線「軽井沢」車5.7km |
| [New plan! ! ] It will begin collaborative project of all-electric eco-American House and the electric car with a brand new solar power system! ! 【新企画!!】新築太陽光発電システム付きオール電化エコアメリカンハウスと電気自動車のコラボレーション企画が始まります!! |
| Established the Nissan Leaf in the built-in garage in eco American house ready-built properties the Nissan Leaf as a service product. We will be traveling on the town without carbon dioxide emissions, Also, when the disaster is expected to adopt a system that can supply the power of the building from the car! ! (Please contact us for more details) 日産自動車のリーフをサービス品としてエコアメリカンハウス建売物件に日産自動車のリーフをビルトインガレージ内に設置。炭酸ガス排出なく町中を走行して頂き、また災害等の時は建物の電力を車から供給できるシステムを取り入れる予定です!!(詳細についてはお問い合わせください) |
Features pickup 特徴ピックアップ | | Measures to conserve energy / Solar power system / Airtight high insulated houses / Pre-ground survey / Parking two Allowed / 2 along the line more accessible / LDK20 tatami mats or more / Land more than 100 square meters / Energy-saving water heaters / See the mountain / It is close to ski resorts / It is close to golf course / It is close to Tennis Court / Summer resort / Facing south / System kitchen / Bathroom Dryer / Yang per good / All room storage / Barrier-free / Toilet 2 places / Bathroom 1 tsubo or more / 2-story / Double-glazing / Warm water washing toilet seat / The window in the bathroom / Atrium / TV monitor interphone / All living room flooring / Wood deck / Good view / IH cooking heater / Built garage / Dish washing dryer / All room 6 tatami mats or more / Water filter / All-electric / Located on a hill / Development subdivision in 省エネルギー対策 /太陽光発電システム /高気密高断熱住宅 /地盤調査済 /駐車2台可 /2沿線以上利用可 /LDK20畳以上 /土地100坪以上 /省エネ給湯器 /山が見える /スキー場が近い /ゴルフ場が近い /テニスコートが近い /避暑地 /南向き /システムキッチン /浴室乾燥機 /陽当り良好 /全居室収納 /バリアフリー /トイレ2ヶ所 /浴室1坪以上 /2階建 /複層ガラス /温水洗浄便座 /浴室に窓 /吹抜け /TVモニタ付インターホン /全居室フローリング /ウッドデッキ /眺望良好 /IHクッキングヒーター /ビルトガレージ /食器洗乾燥機 /全居室6畳以上 /浄水器 /オール電化 /高台に立地 /開発分譲地内 | Event information イベント情報 | | Open House (Please be sure to ask in advance) schedule / Every Saturday and Sunday time / 9:00 ~ 17:00 オープンハウス(事前に必ずお問い合わせください)日程/毎週土日時間/9:00 ~ 17:00 | Price 価格 | | 75 million yen 7500万円 | Floor plan 間取り | | 3LDK 3LDK | Units sold 販売戸数 | | 1 units 1戸 | Total units 総戸数 | | 1 units 1戸 | Land area 土地面積 | | 1523 sq m (460.70 tsubo) (Registration), Inclined portion: 90% including 1523m2(460.70坪)(登記)、傾斜部分:90%含 | Building area 建物面積 | | 195 sq m (58.98 tsubo) (measured), Among the first floor garage 36 sq m 195m2(58.98坪)(実測)、うち1階車庫36m2 | Driveway burden-road 私道負担・道路 | | Nothing, South 4.4m width (contact the road width 4.4m) 無、南4.4m幅(接道幅4.4m) | Completion date 完成時期(築年月) | | May 2012 2012年5月 | Address 住所 | | Nagano Prefecture Kitasaku-gun Karuizawa Oaza Nagakura shaped loincloth 3418-44 長野県北佐久郡軽井沢町大字長倉字腰巻3418-44 | Traffic 交通 | | Nagano Shinkansen "Karuizawa" car 5.7km Shinano Railway "Nakakaruizawa" car 1.7km 長野新幹線「軽井沢」車5.7km しなの鉄道「中軽井沢」車1.7km
| Related links 関連リンク | | [Related Sites of this company] 【この会社の関連サイト】 | Person in charge 担当者より | | [Regarding this property.] Luxury villa ground of Nakakaruizawa area, Having original villa ground is particularly luxury villa ground. 【この物件について】中軽井沢エリアの高級別荘地、上の原別荘地は特に高級別荘地です。 | Contact お問い合せ先 | | (Ltd.) log Resort TEL: 0120-922994 [Toll free] Please contact the "saw SUUMO (Sumo)" (株)ログリゾートTEL:0120-922994【通話料無料】「SUUMO(スーモ)を見た」と問い合わせください | Building coverage, floor area ratio 建ぺい率・容積率 | | 20% ・ 20% 20%・20% | Time residents 入居時期 | | Consultation 相談 | Land of the right form 土地の権利形態 | | Ownership 所有権 | Structure and method of construction 構造・工法 | | Wooden 2-story (2 × 6 method) 木造2階建(2×6工法) | Use district 用途地域 | | One low-rise 1種低層 | Other limitations その他制限事項 | | Nature protection guidelines Karuizawa, There is guidance of Nagano Prefecture landscape ordinance 軽井沢町自然保護対策要綱、長野県景観条例の指導あり | Overview and notices その他概要・特記事項 | | Facilities: Public Water Supply, Individual septic tank, All-electric, Building confirmation number: 23 Sasaki land Kendai No. 233-328, Parking: Garage 設備:公営水道、個別浄化槽、オール電化、建築確認番号:23佐地建第233-328号、駐車場:車庫 | Company profile 会社概要 | | <Seller> Governor of Kanagawa Prefecture (5) No. 019889 (the company), Kanagawa Prefecture Building Lots and Buildings Transaction Business Association (Corporation) metropolitan area real estate Fair Trade Council member (Ltd.) log Resort Yubinbango223-0053 Yokohama-shi, Kanagawa-ku, Kohoku Tsunashimanishi 4-8-29 <売主>神奈川県知事(5)第019889号(社)神奈川県宅地建物取引業協会会員 (公社)首都圏不動産公正取引協議会加盟(株)ログリゾート〒223-0053 神奈川県横浜市港北区綱島西4-8-29 |
Local appearance photo現地外観写真  Local (July 2013) shooting 3LDK + 2 units built-in garage eco American House of
現地(2013年7月)撮影3LDK+2台ビルトインガレージのエコアメリカンハウス
Non-living roomリビング以外の居室  Dining Room: table set, Such as the curtain has been installed.
ダイニングルーム:テーブルセット、カーテンなどが設置されました。
Local appearance photo現地外観写真  It is scheduled to be the installation through the EV power station to two built-in garage.
2台ビルトインガレージ内にEVパワーステーションを介して設置をする予定です。
Non-living roomリビング以外の居室  Bedroom
寝室
Livingリビング  Living room: bright space, which is also a wood-burning fireplace.
リビングルーム:薪の暖炉もある明るい空間。
Other localその他現地  From the south side wood deck Hanareyama ・ View of other mountains you can enjoy.
南側ウッドデッキからは離山・その他山並みの眺望がお楽しみ頂けます。
Otherその他  K-133 Eco-American House of currently planning + Nissan Leaf of collaboration. This electric vehicle (EV) is expected to become a set.
現在企画中のK-133エコアメリカンハウス+日産リーフのコラボレーション。こちらの電気自動車(EV)がセットとなる予定です。
Balconyバルコニー  Karuizawa view from wood deck, The front of the mountain is Hanareyama of Karuizawa specialties.
ウッドデッキからの軽井沢の眺望、前方の山は軽井沢名物の離山です。
Bathroom浴室  View from the bathroom. Bright bathroom there is a big window.
浴室からの眺望。大きな窓があり明るい浴室です。
Livingリビング  From the second floor loft. Ceiling fan of American House unique.
二階ロフトから。アメリカンハウスならではのシーリングファン。
Otherその他  Building layout plan
建物配置図
Toiletトイレ  The second floor of the toilet is also installed shower room.
二階のトイレはシャワー室も設置されています。
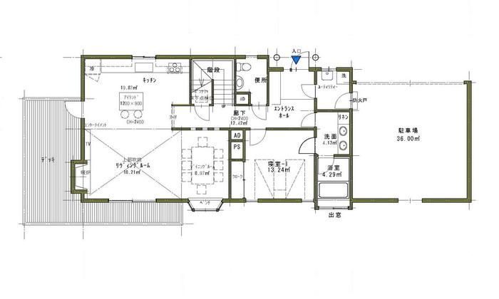
Otherその他  Plan view first floor
平面図1階
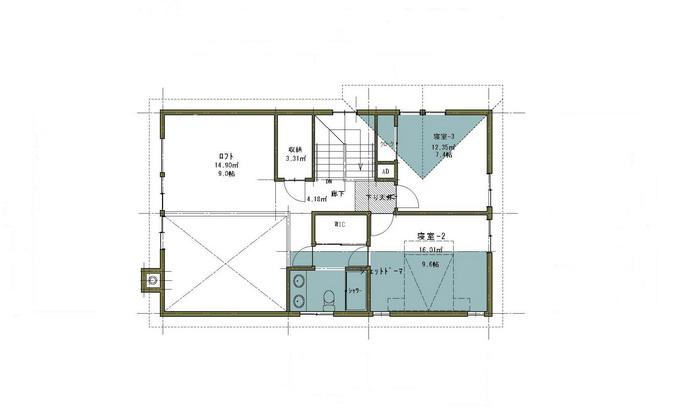
 Plan view second floor
平面図2階
Livingリビング  Living is a blow-by.
リビングは吹き抜けです。
 View of the living-dining room from the kitchen is day by facing the south good. View is also the highest since the front is sloping.
キッチンからリビングダイニングルームの眺めは南側に面していて日当り良好。前面が傾斜地なので眺めも最高です。
Non-living roomリビング以外の居室  Second floor bedroom
2階寝室
Local appearance photo現地外観写真  Local (May 2013) Shooting
現地(2013年5月)撮影
Wash basin, toilet洗面台・洗面所  Washbasin 2-Ball.
洗面台は2ボール。
Location
|