New Homes » Kansai » Nara Prefecture » Kashiba
 
| | Nara Prefecture kashiba 奈良県香芝市 |
| Kintetsu Osaka line "double up" walk 10 minutes 近鉄大阪線「二上」歩10分 |
| station, Supermarkets within walking distance, primary school, Near convenient place also kindergarten. Location feel the season of the four seasons in a location with a view of the Nijo. 駅、スーパーが徒歩圏内で、小学校、幼稚園も近く便利な所。二上山の見える立地で四季折々の季節を感じるロケーション。 |
Local guide map 現地案内図 | | Local guide map 現地案内図 | Features pickup 特徴ピックアップ | | Parking two Allowed / 2 along the line more accessible / See the mountain / Super close / Yang per good / Or more before road 6m / garden / All-electric / Flat terrain / Development subdivision in 駐車2台可 /2沿線以上利用可 /山が見える /スーパーが近い /陽当り良好 /前道6m以上 /庭 /オール電化 /平坦地 /開発分譲地内 | Property name 物件名 | | Feel Garden Fujiyama Feel Garden藤山 | Price 価格 | | 29.4 million yen 2940万円 | Floor plan 間取り | | 4LDK 4LDK | Units sold 販売戸数 | | 5 units 5戸 | Total units 総戸数 | | 5 units 5戸 | Land area 土地面積 | | 135.55 sq m 135.55m2 | Building area 建物面積 | | 98.51 sq m 98.51m2 | Completion date 完成時期(築年月) | | 2013 early December 2013年12月上旬 | Address 住所 | | Nara Prefecture kashiba Fujiyama 2 奈良県香芝市藤山2 | Traffic 交通 | | Kintetsu Osaka line "double up" walk 10 minutes JR Wakayama Line "Kashiba" walk 14 minutes 近鉄大阪線「二上」歩10分 JR和歌山線「香芝」歩14分
| Related links 関連リンク | | [Related Sites of this company] 【この会社の関連サイト】 | Contact お問い合せ先 | | Kansai housing TEL: 0120-881022 [Toll free] Please contact the "saw SUUMO (Sumo)" (株)関西ハウジングTEL:0120-881022【通話料無料】「SUUMO(スーモ)を見た」と問い合わせください | Building coverage, floor area ratio 建ぺい率・容積率 | | Kenpei rate: 60%, Volume ratio: 200% 建ペい率:60%、容積率:200% | Time residents 入居時期 | | Consultation 相談 | Land of the right form 土地の権利形態 | | Ownership 所有権 | Use district 用途地域 | | Semi-industrial 準工業 | Land category 地目 | | Residential land 宅地 | Overview and notices その他概要・特記事項 | | Building confirmation number: 0105 No. in if the first 13 confirmed construction goods 建築確認番号:第13確認建築財なら中0105号 | Company profile 会社概要 | | <Seller> Nara Governor (2) No. 003796 Kansai housing Yubinbango639-0266 Nara kashiba Asahigaoka 1-29-2 <売主>奈良県知事(2)第003796号(株)関西ハウジング〒639-0266 奈良県香芝市旭ヶ丘1-29-2 |
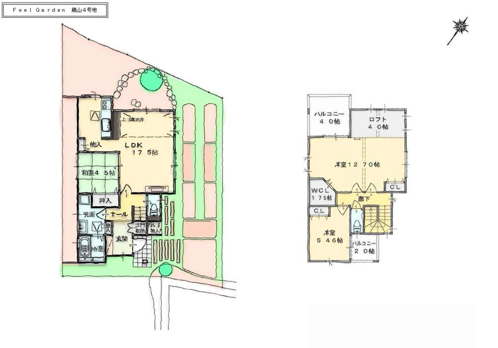
Floor plan間取り図  Fujiyama No. 4 place Model house floor plan
藤山4号地 モデルハウス間取り図
Rendering (appearance)完成予想図(外観)  Fujiyama No. 4 place Model house
藤山4号地 モデルハウス
Local photos, including front road前面道路含む現地写真  Osaka skyline (December 2013) Shooting
逢坂街並み(2013年12月)撮影
Same specifications photos (appearance)同仕様写真(外観)  Osaka model house
逢阪モデルハウス
Otherその他  Compartment figure
区画図
 LAND PLAN
LAND PLAN
 Kintetsu Futagami Station (about a 10-minute walk)
近鉄二上駅(徒歩約10分)
 Super Yao Hiko (about a 10-minute walk)
スーパーヤオヒコ(徒歩約10分)
Supermarketスーパー  Okuwa Kashiba to Osaka store 1100m
オークワ香芝逢坂店まで1100m
Kindergarten ・ Nursery幼稚園・保育園  Kashiba 680m to stand Shimoda kindergarten
香芝市立下田幼稚園まで680m
Otherその他  Shimoda Elementary School (walk about 6 minutes)
下田小学校(徒歩約6分)
Same specifications photos (Other introspection)同仕様写真(その他内観)  Living (Osaka model house)
リビング(逢阪モデルハウス)
Same specifications photos (living)同仕様写真(リビング)  Living (No. 13 land model house Nagao)
リビング(長尾13号地モデルハウス)
Non-living roomリビング以外の居室  Western-style room with a loft
ロフト付洋室
Livingリビング  Living (No. 8 land model house Nagao)
リビング(長尾8号地モデルハウス)
Local appearance photo現地外観写真  Osaka subdivision Local (June 2013) Shooting
逢坂分譲地 現地(2013年6月)撮影
Otherその他  Floor (Osaka model house)
間取り(逢阪モデルハウス)
 Terrace (Osaka model house)
テラス(逢坂モデルハウス)
Kitchenキッチン  Kitchen (No. 8 land model house Nagao)
キッチン(長尾8号地モデルハウス)
Drug storeドラッグストア  Kirindo Kashiba Osaka 1000m to shop
キリン堂香芝逢坂店まで1000m
Kindergarten ・ Nursery幼稚園・保育園  650m until the young leaves nursery
若葉保育所まで650m
Park公園  Asahigaoka 1160m to neighborhood park
旭ケ丘近隣公園まで1160m
Local guide map現地案内図  Local map
現地地図
Location
|