New Homes » Koshinetsu » Niigata Prefecture » Chuo-ku
 
| | Niigata, Niigata Prefecture, Chuo-ku, 新潟県新潟市中央区 |
| Niigata Kotsu Co., Ltd. "Keio housing complex" walk 2 minutes 新潟交通「京王団地」歩2分 |
| ■ Adjacent to the park, You can achieve the open-minded life to connect with nature ■公園に隣接、自然とつながる開放的な暮らしが実現できます |
| Parking two Allowed, LDK20 tatami mats or more, Super close, Or more before road 6m, Shaping land, Face-to-face kitchen, 2-story, South balcony, City gas, Storeroom, roof balcony, Floor heating 駐車2台可、LDK20畳以上、スーパーが近い、前道6m以上、整形地、対面式キッチン、2階建、南面バルコニー、都市ガス、納戸、ルーフバルコニー、床暖房 |
Features pickup 特徴ピックアップ | | Parking two Allowed / LDK20 tatami mats or more / Super close / Or more before road 6m / Shaping land / Face-to-face kitchen / 2-story / South balcony / City gas / Storeroom / roof balcony / Floor heating 駐車2台可 /LDK20畳以上 /スーパーが近い /前道6m以上 /整形地 /対面式キッチン /2階建 /南面バルコニー /都市ガス /納戸 /ルーフバルコニー /床暖房 | Price 価格 | | 40,500,000 yen 4050万円 | Floor plan 間取り | | 3LDK + S (storeroom) 3LDK+S(納戸) | Units sold 販売戸数 | | 1 units 1戸 | Land area 土地面積 | | 140.83 sq m (registration) 140.83m2(登記) | Building area 建物面積 | | 116.34 sq m (registration) 116.34m2(登記) | Driveway burden-road 私道負担・道路 | | Nothing, South 6m width 無、南6m幅 | Completion date 完成時期(築年月) | | May 2013 2013年5月 | Address 住所 | | Niigata, Niigata Prefecture, Chuo-ku, Keio 3 新潟県新潟市中央区京王3 | Traffic 交通 | | Niigata Kotsu Co., Ltd. "Keio housing complex" walk 2 minutes 新潟交通「京王団地」歩2分 | Contact お問い合せ先 | | TEL: 0800-603-1053 [Toll free] mobile phone ・ Also available from PHS Caller ID is not notified Please contact the "saw SUUMO (Sumo)" If it does not lead, If the real estate company TEL:0800-603-1053【通話料無料】携帯電話・PHSからもご利用いただけます 発信者番号は通知されません 「SUUMO(スーモ)を見た」と問い合わせください つながらない方、不動産会社の方は
| Building coverage, floor area ratio 建ぺい率・容積率 | | 60% ・ 200% 60%・200% | Time residents 入居時期 | | Consultation 相談 | Land of the right form 土地の権利形態 | | Ownership 所有権 | Structure and method of construction 構造・工法 | | Wooden 2-story (panel method) 木造2階建(パネル工法) | Construction 施工 | | Misawa Homes Niigata Co., Ltd. ミサワホーム新潟(株) | Use district 用途地域 | | One middle and high 1種中高 | Overview and notices その他概要・特記事項 | | Facilities: Public Water Supply, This sewage, City gas, Parking: car space 設備:公営水道、本下水、都市ガス、駐車場:カースペース | Company profile 会社概要 | | <Seller> Niigata Governor (1) the first 005,063 No. Misawa Homes Niigata Co., Ltd. Niigata branch Yubinbango951-8141 Niigata, Niigata Prefecture, Chuo-ku, SekiShin 2-1-53 <売主>新潟県知事(1)第005063号ミサワホーム新潟(株)新潟支店〒951-8141 新潟県新潟市中央区関新2-1-53 |
Local appearance photo現地外観写真  Local (May 2013) large roof balcony of shooting 5 quires large
現地(2013年5月)撮影5帖大の大型ルーフバルコニー
Livingリビング  Room (May 2013) Shooting 20.62 Pledge of LDK
室内(2013年5月)撮影 20.62帖のLDK
 Room (May 2013) Shooting TV board
室内(2013年5月)撮影 TVボード
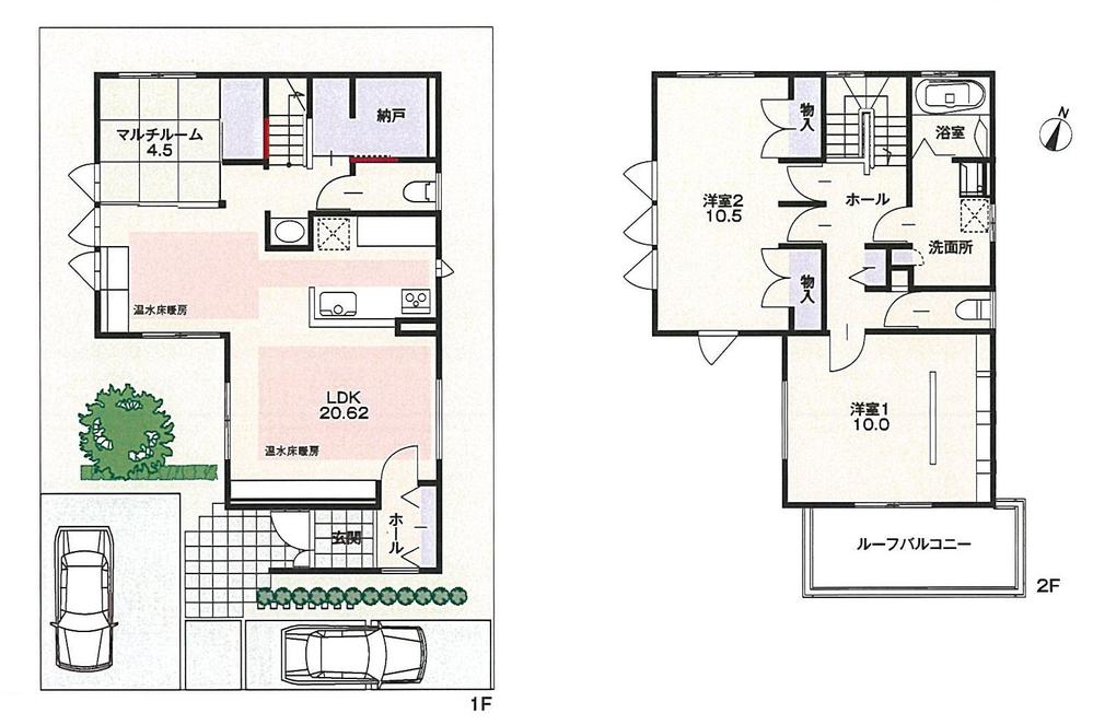
Floor plan間取り図  40,500,000 yen, 3LDK + S (storeroom), Land area 140.83 sq m , Building area 116.34 sq m easy-to-use storage plan
4050万円、3LDK+S(納戸)、土地面積140.83m2、建物面積116.34m2 使い勝手のよい収納計画
Non-living roomリビング以外の居室  Room (May 2013) Shooting 2F Western-style
室内(2013年5月)撮影 2F洋室
Wash basin, toilet洗面台・洗面所  Room (May 2013) Shooting
室内(2013年5月)撮影
Location
|