New Homes » Koshinetsu » Niigata Prefecture » Chuo-ku


Niigata, Niigata Prefecture, Chuo-ku,
Joetsu Shinkansen "Niigata" bus 28 minutes Kaminuma public hall before walking 12 minutes
2013 July new construction and a new subdivision!
R10018I parcel has organized method high-voltage lines near 2carS space & 6m front road!
Features pickup
Parking two Allowed / Immediate Available / System kitchen / All room storage / A quiet residential area / LDK15 tatami mats or more / Shaping land / Washbasin with shower / Face-to-face kitchen / Toilet 2 places / 2-story / Double-glazing / Warm water washing toilet seat / Nantei / Walk-in closet / All room 6 tatami mats or more / City gas / All rooms are two-sided lighting / roof balcony
Price
24.4 million yen
Floor plan
4LDK
Units sold
1 units
Land area
140 sq m (registration)
Building area
101.32 sq m (registration)
Driveway burden-road
Nothing, East 6m width (contact the road width 9.9m)
Completion date
July 2013
Address
Niigata, Niigata Prefecture, Chuo-ku, Toriyano
Traffic
Joetsu Shinkansen "Niigata" bus 28 minutes Kaminuma public hall before walking 12 minutes
Person in charge
Rep Uemura
Contact
TEL: 0800-805-5779 [Toll free] mobile phone ・ Also available from PHS
Caller ID is not notified
Please contact the "saw SUUMO (Sumo)"
If it does not lead, If the real estate company
Building coverage, floor area ratio
60% ・ 200%
Time residents
Immediate available
Land of the right form
Ownership
Structure and method of construction
Wooden 2-story
Use district
One dwelling
Overview and notices
Contact: Uemura, Parking: Garage
Company profile
<Mediation> Niigata Governor (1) No. 004936 ERA Tokoshoji Co. Toko real estate Plaza Masaya alley shop Yubinbango951-8067 Niigata, Niigata Prefecture, Chuo-ku, high street 6 Bancho 1141-1


Local appearance photo
Local appearance photo

Local appearance photo
Local appearance photo

Local appearance photo
Local appearance photo

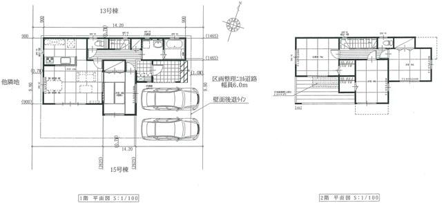
Floor plan

Floor plan. 24.4 million yen, 4LDK, Land area 140 sq m , Building area 101.32 sq m parking two Allowed
24.4 million yen, 4LDK, Land area 140 sq m , Building area 101.32 sq m parking two Allowed

Local appearance photo
Local appearance photo

Other

Other. Neighborhood view
Neighborhood view

Local appearance photo
Local appearance photo

Other. Wide-area view
Wide-area view

Other. Sectioning view
Sectioning view

Other. Property Description
Property Description



Location