New Homes » Chugoku » Okayama Prefecture » Minami-ku
 
| | Okayama, Okayama Prefecture Minami-ku 岡山県岡山市南区 |
| Okaden bus "Izumida mouth" walk 7 minutes 岡電バス「泉田口」歩7分 |
| A new residential area is born in the south-ku, easily accessible price range of stylish city and hand in Izumida. Comfortable environment in which the facility was also equipped necessary to elementary and junior high schools for nearly life. Worth seeing! 南区泉田にオシャレな街並みと手の届きやすい価格帯で新たな居住エリアが誕生します。小中学校も近く生活に必要な施設もそろった快適環境。一見の価値あり! |
| Keyword cityscape. Each of taste, Living, While imagining the life out of the theme was to have a plan, You please find one building of the best in. キーワードは街並み。それぞれのテイスト、暮らし方、テーマを持たせたプランの中から暮らしを想像しながら、あなたに最適の1棟を見つけてください。 |
Local guide map 現地案内図 | | Local guide map 現地案内図 | Features pickup 特徴ピックアップ | | Pre-ground survey / Parking two Allowed / Fiscal year Available / Super close / System kitchen / Bathroom Dryer / All room storage / Or more before road 6m / Face-to-face kitchen / Toilet 2 places / 2-story / Warm water washing toilet seat / The window in the bathroom / Dish washing dryer / Flat terrain 地盤調査済 /駐車2台可 /年度内入居可 /スーパーが近い /システムキッチン /浴室乾燥機 /全居室収納 /前道6m以上 /対面式キッチン /トイレ2ヶ所 /2階建 /温水洗浄便座 /浴室に窓 /食器洗乾燥機 /平坦地 | Property name 物件名 | | Owl Village Izumida / Notice advertising アウルヴィレッジ泉田/予告広告 | Price 価格 | | Undecided 未定 | Floor plan 間取り | | 3LDK ~ 4LDK + S (storeroom) 3LDK ~ 4LDK+S(納戸) | Units sold 販売戸数 | | 8 units 8戸 | Total units 総戸数 | | 8 units 8戸 | Land area 土地面積 | | 112.54 sq m ~ 136.38 sq m (measured) 112.54m2 ~ 136.38m2(実測) | Building area 建物面積 | | 96.66 sq m ~ 102.67 sq m 96.66m2 ~ 102.67m2 | Completion date 完成時期(築年月) | | March 2014 mid-scheduled 2014年3月中旬予定 | Address 住所 | | Okayama, Okayama Prefecture Minami-ku Izumida 岡山県岡山市南区泉田 | Traffic 交通 | | Okaden bus "Izumida mouth" walk 7 minutes 岡電バス「泉田口」歩7分 | Person in charge 担当者より | | Rep Okada 担当者岡田 | Contact お問い合せ先 | | (Ltd.) Kreis Corporation TEL: 0800-601-6267 [Toll free] mobile phone ・ Also available from PHS Caller ID is not notified Please contact the "saw SUUMO (Sumo)" If it does not lead, If the real estate company (株)クライスコーポレーションTEL:0800-601-6267【通話料無料】携帯電話・PHSからもご利用いただけます 発信者番号は通知されません 「SUUMO(スーモ)を見た」と問い合わせください つながらない方、不動産会社の方は
| Sale schedule 販売スケジュール | | Sales start in December 12月より販売開始 | Building coverage, floor area ratio 建ぺい率・容積率 | | Building coverage: 60%, Volume ratio: 200% 建ぺい率:60%、容積率:200% | Time residents 入居時期 | | March 2014 in late schedule 2014年3月下旬予定 | Land of the right form 土地の権利形態 | | Ownership 所有権 | Structure and method of construction 構造・工法 | | Wooden 2-story (framing method) 木造2階建(軸組工法) | Use district 用途地域 | | One dwelling 1種住居 | Overview and notices その他概要・特記事項 | | Person in charge: Okada, Building confirmation number: No. HP04-0181982 other 担当者:岡田、建築確認番号:第HP04-0181982号 他 | Company profile 会社概要 | | <Marketing alliance (agency)> Okayama Governor (2) No. 005042 (Ltd.) Kreis Corporation Yubinbango700-0976 Okayama, Okayama Prefecture, Kita-ku, Tatsumi 44-103 <販売提携(代理)>岡山県知事(2)第005042号(株)クライスコーポレーション〒700-0976 岡山県岡山市北区辰巳44-103 |
 Cityscape Rendering
街並完成予想図
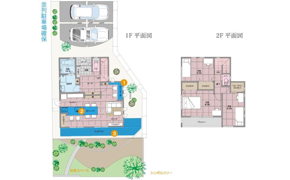
Floor plan間取り図  (No. 1 point), Price TBD , 3LDK, Land area 118.57 sq m , Building area 98.27 sq m
(1号地)、価格 未定 、3LDK、土地面積118.57m2、建物面積98.27m2
Supermarketスーパー  Hapizu Izumida to the store 522m
ハピーズ泉田店まで522m
The entire compartment Figure全体区画図  Owl Village Izumida Compartment Figure
アウルヴィレッジ泉田 区画図
 Local guide map
現地案内図
Floor plan間取り図  (No. 2 locations), Price TBD , 3LDK, Land area 119.02 sq m , Building area 96.66 sq m
(2号地)、価格 未定 、3LDK、土地面積119.02m2、建物面積96.66m2
Supermarketスーパー  579m until Watanabe fresh Museum Izumida shop
わたなべ生鮮館泉田店まで579m
Floor plan間取り図  (No. 8 locations), Price TBD , 3LDK, Land area 127.94 sq m , Building area 98.74 sq m
(8号地)、価格 未定 、3LDK、土地面積127.94m2、建物面積98.74m2
Drug storeドラッグストア  386m to super drag sunflower Izumida shop
スーパードラッグひまわり泉田店まで386m
Floor plan間取り図  (No. 5 locations), Price TBD , 4LDK+S, Land area 126.95 sq m , Building area 101.85 sq m
(5号地)、価格 未定 、4LDK+S、土地面積126.95m2、建物面積101.85m2
High school ・ College高校・高専  717m until Hosen high school Okayama Prefecture Tachioka Mt.
岡山県立岡山芳泉高校まで717m
Junior high school中学校  712m to Okayama Hosen junior high school
岡山市立芳泉中学校まで712m
Primary school小学校  806m to Okayama Hosen Elementary School
岡山市立芳泉小学校まで806m
Post office郵便局  Okayama Hosen 612m to the post office
岡山芳泉郵便局まで612m
Location
|