New Homes » Kansai » Osaka prefecture » Daito
 
| | Osaka Prefecture Daito 大阪府大東市 |
| JR katamachi line "Shijonawate" walk 8 minutes JR片町線「四条畷」歩8分 |
Price 価格 | | 21,800,000 yen 2180万円 | Floor plan 間取り | | 4LDK 4LDK | Units sold 販売戸数 | | 1 units 1戸 | Land area 土地面積 | | 71.75 sq m (registration) 71.75m2(登記) | Building area 建物面積 | | 90 sq m (registration) 90m2(登記) | Driveway burden-road 私道負担・道路 | | 8.19 sq m , West 4m width (contact the road width 3.6m) 8.19m2、西4m幅(接道幅3.6m) | Completion date 完成時期(築年月) | | April 2011 2011年4月 | Address 住所 | | Osaka Prefecture Daito Akeminosato cho 大阪府大東市明美の里町 | Traffic 交通 | | JR katamachi line "Shijonawate" walk 8 minutes JR片町線「四条畷」歩8分
| Related links 関連リンク | | [Related Sites of this company] 【この会社の関連サイト】 | Contact お問い合せ先 | | TEL: 0800-603-2566 [Toll free] mobile phone ・ Also available from PHS Caller ID is not notified Please contact the "saw SUUMO (Sumo)" If it does not lead, If the real estate company TEL:0800-603-2566【通話料無料】携帯電話・PHSからもご利用いただけます 発信者番号は通知されません 「SUUMO(スーモ)を見た」と問い合わせください つながらない方、不動産会社の方は
| Building coverage, floor area ratio 建ぺい率・容積率 | | 60% ・ 200% 60%・200% | Time residents 入居時期 | | Consultation 相談 | Land of the right form 土地の権利形態 | | Ownership 所有権 | Structure and method of construction 構造・工法 | | Wooden three-story 木造3階建 | Overview and notices その他概要・特記事項 | | Facilities: Public Water Supply, This sewage, City gas, Building confirmation number: ********, Parking: Garage 設備:公営水道、本下水、都市ガス、建築確認番号:********、駐車場:車庫 | Company profile 会社概要 | | <Mediation> governor of Osaka (7) Osaka Daito No. 027375 No. Toho housing Yubinbango574-0011 Hojo 1-1-12 <仲介>大阪府知事(7)第027375号東宝ハウジング〒574-0011 大阪府大東市北条1-1-12 |
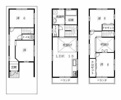
Floor plan間取り図  21,800,000 yen, 4LDK, Land area 71.75 sq m , Building area 90 sq m compact's functional 3F Ken ^^
2180万円、4LDK、土地面積71.75m2、建物面積90m2 コンパクトで機能的な3F建です^^
Kitchenキッチン  Image Photos Panasonic living station equipment
イメージ写真 パナソニックリビングステーション装備
Bathroom浴室  Image Photos Panasonic here Ticino equipment
イメージ写真 パナソニックココチーノ装備
Livingリビング  Of course ^^ please in the flooring of the color is also the color of your choice
もちろんフローリングの色もお好きな色でどうぞ^^
Wash basin, toilet洗面台・洗面所  Image Photos Panasonic also washstand
イメージ写真 洗面台もパナソニック
Other introspectionその他内観  Door you will also choose from among a lot ^^
扉もたくさんの中から選んでいただきます^^
Station駅  Shijonawate is Station ^^
四条畷駅です^^
Supermarketスーパー  Super is Daiei ^^
スーパーダイエーです^^
 Nanko shopping street is also right next to!
楠公商店街もすぐそば!
 There are up to Mandai ^^
マンダイまであります^^
 park
公園
 park
公園
 Other
その他
Location
|