2013October
19,800,000 yen, 4LDK, 88.29 sq m
New Homes » Kansai » Osaka prefecture » Daito
 
| | Osaka Prefecture Daito 大阪府大東市 |
| JR katamachi line "Nozaki" walk 15 minutes JR片町線「野崎」歩15分 |
| ▼ 4LDK + garage ▼ solar power generation system ▼ good floor plan and easy to use in a bright home ▼ whole room with storage of all rooms two-sided lighting ▼ quiet residential area ▼ Shijo elementary school, Shijo junior high school ▼4LDK+車庫▼太陽光発電システム▼全室2面採光の明るいお家▼全居室収納付きで使い勝手の良い間取り▼閑静な住宅地▼四条小学校、四条中学校 |
| <Standard equipment> ・ Air Heating dryer with unit bus (full automatic hot water-covered function) ・ Warm water washing toilet seat (1F ・ 2F) ・ Shampoo dresser ・ Pair glass ・ Water heater remote control ・ Security key ・ Water purifier with system Kitchen <標準装備>・換気暖房乾燥機付ユニットバス(全自動お湯張り機能) ・温水洗浄便座(1F・2F)・シャンプードレッサー ・ペアガラス ・給湯器リモコン ・防犯カギ・浄水器付システムキッチン |
Features pickup 特徴ピックアップ | | Solar power system / Year Available / Facing south / System kitchen / Bathroom Dryer / All room storage / Siemens south road / LDK15 tatami mats or more / Japanese-style room / Washbasin with shower / Security enhancement / Wide balcony / Toilet 2 places / Bathroom 1 tsubo or more / 2-story / South balcony / Double-glazing / Warm water washing toilet seat / Underfloor Storage / The window in the bathroom / TV monitor interphone / City gas / All rooms are two-sided lighting 太陽光発電システム /年内入居可 /南向き /システムキッチン /浴室乾燥機 /全居室収納 /南側道路面す /LDK15畳以上 /和室 /シャワー付洗面台 /セキュリティ充実 /ワイドバルコニー /トイレ2ヶ所 /浴室1坪以上 /2階建 /南面バルコニー /複層ガラス /温水洗浄便座 /床下収納 /浴室に窓 /TVモニタ付インターホン /都市ガス /全室2面採光 | Price 価格 | | 19,800,000 yen 1980万円 | Floor plan 間取り | | 4LDK 4LDK | Units sold 販売戸数 | | 1 units 1戸 | Land area 土地面積 | | 90.85 sq m 90.85m2 | Building area 建物面積 | | 88.29 sq m 88.29m2 | Driveway burden-road 私道負担・道路 | | Nothing, South 5.2m width 無、南5.2m幅 | Completion date 完成時期(築年月) | | October 2013 2013年10月 | Address 住所 | | Osaka Prefecture Daito Terakawa 4 大阪府大東市寺川4 | Traffic 交通 | | JR katamachi line "Nozaki" walk 15 minutes JR katamachi line "Shijonawate" walk 29 minutes JR katamachi line "Suminodo" walk 33 minutes JR片町線「野崎」歩15分 JR片町線「四条畷」歩29分 JR片町線「住道」歩33分
| Contact お問い合せ先 | | (Ltd.) Nakatomi building contractors TEL: 0800-603-1649 [Toll free] mobile phone ・ Also available from PHS Caller ID is not notified Please contact the "saw SUUMO (Sumo)" If it does not lead, If the real estate company (株)中富工務店TEL:0800-603-1649【通話料無料】携帯電話・PHSからもご利用いただけます 発信者番号は通知されません 「SUUMO(スーモ)を見た」と問い合わせください つながらない方、不動産会社の方は
| Building coverage, floor area ratio 建ぺい率・容積率 | | 60% ・ 200% 60%・200% | Time residents 入居時期 | | Consultation 相談 | Land of the right form 土地の権利形態 | | Ownership 所有権 | Structure and method of construction 構造・工法 | | Wooden 2-story 木造2階建 | Use district 用途地域 | | One dwelling 1種住居 | Overview and notices その他概要・特記事項 | | Facilities: Public Water Supply, This sewage, City gas, Building confirmation number: No. H25SHC110917, Parking: Garage 設備:公営水道、本下水、都市ガス、建築確認番号:第H25SHC110917号、駐車場:車庫 | Company profile 会社概要 | | <Mediation> governor of Osaka (6) No. 033657 (Ltd.) Nakatomi builders Yubinbango575-0063 Osaka shijonawate Seiryu 18-11 <仲介>大阪府知事(6)第033657号(株)中富工務店〒575-0063 大阪府四條畷市清瀧18-11 |
 Local appearance photo
現地外観写真
 Living
リビング
 Kitchen
キッチン
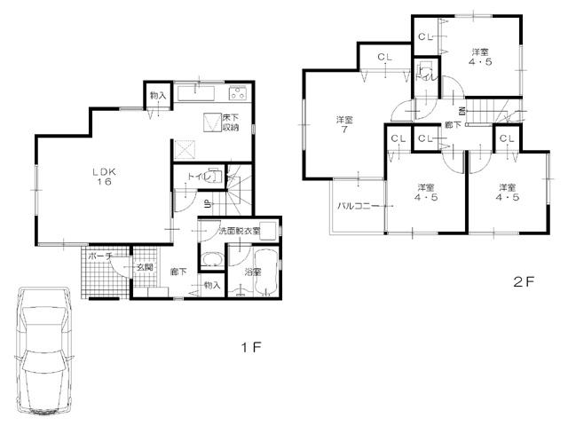
Floor plan間取り図  19,800,000 yen, 4LDK, Land area 90.85 sq m , Building area 88.29 sq m
1980万円、4LDK、土地面積90.85m2、建物面積88.29m2
 Local appearance photo
現地外観写真
 Bathroom
浴室
 Non-living room
リビング以外の居室
 Entrance
玄関
 Wash basin, toilet
洗面台・洗面所
 Toilet
トイレ
 Local photos, including front road
前面道路含む現地写真
Supermarketスーパー  931m until the jumbo food Nozaki food 鮮館
ジャンボフード野崎食鮮館まで931m
 Non-living room
リビング以外の居室
Location
|