New Homes » Kansai » Osaka prefecture » Daito


Osaka Prefecture Daito
JR katamachi line "Suminodo" bus 11 minutes Ayumi Nakagaichi 7 minutes
Start selling in all 4 compartment! Ventilation in all houses facing south 4LDK, Lighting both good
Features pickup
Corresponding to the flat-35S / See the mountain / Facing south / System kitchen / Yang per good / Siemens south road / A quiet residential area / LDK15 tatami mats or more / Around traffic fewer / Japanese-style room / garden / Face-to-face kitchen / Wide balcony / Barrier-free / Toilet 2 places / Bathroom 1 tsubo or more / 2-story / South balcony / The window in the bathroom / Leafy residential area / Mu front building / Ventilation good / Good view
Price
22,800,000 yen ~ 26,800,000 yen
Floor plan
4LDK
Units sold
4 units
Total units
4 units
Land area
96.07 sq m ~ 110.26 sq m (registration)
Building area
98.12 sq m ~ 105.98 sq m
Driveway burden-road
Road width: 4m, Asphaltic pavement
Completion date
2013 late December plans
Address
Osaka Prefecture Daito Nakagaichi 1-9-
Traffic
JR katamachi line "Suminodo" bus 11 minutes Ayumi Nakagaichi 7 minutes
JR katamachi line "Nozaki" walk 33 minutes
Kintetsu Nara Line "Ishikiri" walk 33 minutes
Contact
TEL: 0800-603-2566 [Toll free] mobile phone ・ Also available from PHS
Caller ID is not notified
Please contact the "saw SUUMO (Sumo)"
If it does not lead, If the real estate company
Building coverage, floor area ratio
Kenpei rate: 60%, Volume ratio: 200%
Time residents
2013 late December
Land of the right form
Ownership
Structure and method of construction
Wooden 2-story (framing method)
Use district
One middle and high
Other limitations
Residential land development construction regulation area
Overview and notices
Building confirmation number: No. BVJ-G13-10-1133
Company profile
<Mediation> governor of Osaka (7) Osaka Daito No. 027375 No. Toho housing Yubinbango574-0011 Hojo 1-1-12


Local photos, including front road

Local photos, including front road. Start selling in all 4 compartment compartment view!
Start selling in all 4 compartment compartment view!

Local appearance photo

Local appearance photo. It is the appearance of the same specification model house
It is the appearance of the same specification model house

Rendering (appearance)

Rendering (appearance). It is a simple map.
It is a simple map.

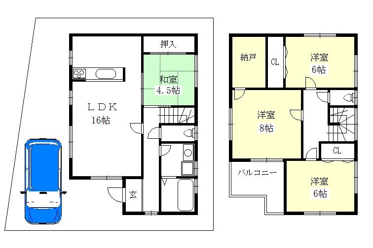
Rendering (appearance). No. 2 place It is a floor plan
No. 2 place It is a floor plan

Living

Living. living Image view
living Image view

Bathroom

Bathroom. bathroom Image view
bathroom Image view

Kitchen

Kitchen. kitchen Image view
kitchen Image view

Non-living room

Non-living room. No. 3 place It is a floor plan
No. 3 place It is a floor plan

Local photos, including front road

Local photos, including front road. No. 1 destination It is a floor plan
No. 1 destination It is a floor plan

Other

Other. No. 4 place It is a floor plan
No. 4 place It is a floor plan

Other
Other



Location