New Homes » Kansai » Osaka prefecture » Daito


Osaka Prefecture Daito
JR katamachi line "Shijonawate" walk 8 minutes
◇ 2000 May scheduled for completion Newly built single-family ◇ with solar power residence ◇ station near commuting ・ It is convenient to go to school
◇ with solar power house power-saving ・ It will save ◇ "JR Shijonawate" station It is an 8-minute walk commute ・ Very convenient ◇ living to go to school is a spacious 17 pledge is ◇ 2 floor of the popular all room Western-style ◇ located in the super neighborhood, Also to shopping convenient contact us feel free to ☆ → 0120-347-789
Features pickup
Corresponding to the flat-35S / Solar power system / System kitchen / All room storage / A quiet residential area / LDK15 tatami mats or more / Japanese-style room / Washbasin with shower / Bathroom 1 tsubo or more / 2-story / South balcony / Underfloor Storage / The window in the bathroom / All room 6 tatami mats or more / City gas
Price
25,800,000 yen
Floor plan
4LDK
Units sold
1 units
Land area
92.48 sq m (27.97 tsubo) (Registration)
Building area
93.96 sq m (28.42 tsubo) (Registration)
Driveway burden-road
Nothing
Completion date
December 2013
Address
Osaka Prefecture Daito City Hojo 4
Traffic
JR katamachi line "Shijonawate" walk 8 minutes
JR katamachi line "Nozaki" walk 19 minutes
JR katamachi line "Shinobukeoka" walk 28 minutes
Person in charge
Rep Chuwaki Takahiro
Contact
TEL: 0800-808-7253 [Toll free] mobile phone ・ Also available from PHS
Caller ID is not notified
Please contact the "saw SUUMO (Sumo)"
If it does not lead, If the real estate company
Building coverage, floor area ratio
60% ・ 200%
Time residents
4 months after the contract
Land of the right form
Ownership
Structure and method of construction
Wooden 2-story
Use district
One middle and high
Overview and notices
Contact: Chuwaki Takahiro, Facilities: Public Water Supply, This sewage, City gas, Building confirmation number: kkkkk, Parking: No
Company profile
<Mediation> governor of Osaka Prefecture (1) No. 056319 (Ltd.) rack housing Yubinbango574-0033 Osaka Prefecture Daito Ogimachi 6-17


Same specifications photos (appearance)

Same specifications photos (appearance). It is life convenient situated
It is life convenient situated

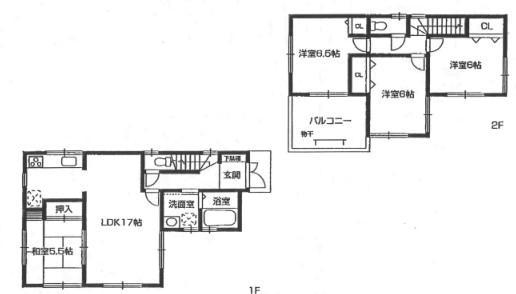
Floor plan

Floor plan. 25,800,000 yen, 4LDK, Land area 92.48 sq m , Is a floor plan of the building area 93.96 sq m 2-story 4LDK
25,800,000 yen, 4LDK, Land area 92.48 sq m , Is a floor plan of the building area 93.96 sq m 2-story 4LDK

Same specifications photos (Other introspection)

Same specifications photos (Other introspection). Spacious and easy-to-use kitchen
Spacious and easy-to-use kitchen

Entrance

Entrance. This is useful because there are shoes BOX
This is useful because there are shoes BOX

Local photos, including front road

Local photos, including front road. Local is
Local is

Same specifications photos (Other introspection)

Same specifications photos (Other introspection). Bright living room
Bright living room

Other

Other. It is a good balcony per yang
It is a good balcony per yang

Entrance
Entrance

Local photos, including front road
Local photos, including front road

Same specifications photos (Other introspection)

Same specifications photos (Other introspection). It is calm Japanese-style room
It is calm Japanese-style room

Same specifications photos (Other introspection). Nice wind as Western-style
Nice wind as Western-style

Same specifications photos (Other introspection). Plenty of storage
Plenty of storage

Same specifications photos (Other introspection). There is also a storage space in the Japanese-style room
There is also a storage space in the Japanese-style room

Same specifications photos (Other introspection). Spacious bathtub
Spacious bathtub

Same specifications photos (Other introspection). Bright washbasin
Bright washbasin

Same specifications photos (Other introspection). Toilet with cleanliness
Toilet with cleanliness

Same specifications photos (Other introspection). Large, easy-to-use sync
Large, easy-to-use sync

Same specifications photos (Other introspection). You can cook a three-necked stove at the same time
You can cook a three-necked stove at the same time



Location