New Homes » Kansai » Osaka prefecture » Hirakata


Hirakata, Osaka
Keihan "Kozenji" walk 14 minutes
Air Heating dryer with bathroom ・ Standard specification of enhancement, such as shower Dresser
Air Heating dryer with bathroom ・ Standard specification of enhancement, such as shower Dresser
Features pickup
System kitchen / Bathroom Dryer / Washbasin with shower / Face-to-face kitchen / Toilet 2 places / Bathroom 1 tsubo or more / 2-story / Double-glazing / Otobasu / Warm water washing toilet seat / Underfloor Storage / TV monitor interphone / Water filter / City gas
Price
23.8 million yen
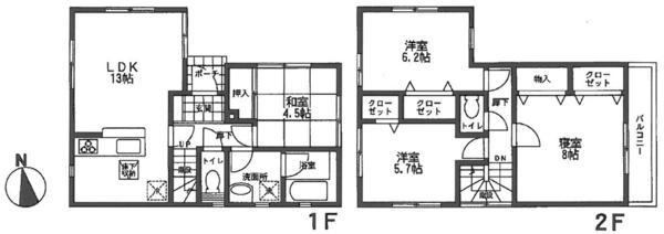
Floor plan
4LDK
Units sold
1 units
Land area
90.05 sq m (registration)
Building area
88.28 sq m
Driveway burden-road
Nothing, East 4.5m width
Completion date
February 2014
Address
Hirakata, Osaka exit 4
Traffic
Keihan "Kozenji" walk 14 minutes
Related links
[Related Sites of this company]
Contact
TEL: 0800-603-2643 [Toll free] mobile phone ・ Also available from PHS
Caller ID is not notified
Please contact the "saw SUUMO (Sumo)"
If it does not lead, If the real estate company
Building coverage, floor area ratio
Fifty percent ・ Hundred percent
Time residents
Consultation
Land of the right form
Ownership
Structure and method of construction
Wooden 2-story
Use district
One low-rise
Overview and notices
Facilities: Public Water Supply, This sewage, City gas, Building confirmation number: No. H25SHC117887
Company profile
<Mediation> governor of Osaka Prefecture (3) The 046,613 No. Century 21 Ritz housing (Ltd.) Hirakata store Yubinbango573-0022 Hirakata, Osaka Miyanosaka 2-2-5-103


Local appearance photo
Local appearance photo

Floor plan

Floor plan. 23.8 million yen, 4LDK, Land area 90.05 sq m , Building area 88.28 sq m
23.8 million yen, 4LDK, Land area 90.05 sq m , Building area 88.28 sq m

Other
Other

Living
Living

Bathroom
Bathroom

Kitchen
Kitchen

Non-living room
Non-living room

Wash basin, toilet
Wash basin, toilet

Toilet
Toilet

Non-living room
Non-living room



Location