New Homes » Kansai » Osaka prefecture » Mino
 
| | Osaka Prefecture Mino 大阪府箕面市 |
| Hankyu Senri Line "Kitasenri" walk 25 minutes 阪急千里線「北千里」歩25分 |
| Solar power standard. Limited in a quiet residential 7 buildings sale. 太陽光発電標準装備。閑静な住宅に限定7棟販売開始。 |
| Minoo Market Park Visora within walking distance! Large development site in a quiet residential area, Limited 7 buildings sale! Access to the Osaka city good! LDK spacious specification! 箕面マーケットパークヴィソラ徒歩圏内!閑静な住宅地に大型開発現場、限定7棟販売開始!大阪市内へのアクセス良好!LDK広々仕様! |
Features pickup 特徴ピックアップ | | Eco-point target housing / Corresponding to the flat-35S / Solar power system / Pre-ground survey / Year Available / Parking two Allowed / See the mountain / It is close to the city / Facing south / System kitchen / Bathroom Dryer / Yang per good / All room storage / Siemens south road / A quiet residential area / LDK15 tatami mats or more / Around traffic fewer / Corner lot / Japanese-style room / Shaping land / Wide balcony / Bathroom 1 tsubo or more / 2-story / South balcony / Double-glazing / Underfloor Storage / Leafy residential area / Ventilation good / Built garage / Walk-in closet / All room 6 tatami mats or more / Water filter / A large gap between the neighboring house / Maintained sidewalk / Flat terrain / Development subdivision in エコポイント対象住宅 /フラット35Sに対応 /太陽光発電システム /地盤調査済 /年内入居可 /駐車2台可 /山が見える /市街地が近い /南向き /システムキッチン /浴室乾燥機 /陽当り良好 /全居室収納 /南側道路面す /閑静な住宅地 /LDK15畳以上 /周辺交通量少なめ /角地 /和室 /整形地 /ワイドバルコニー /浴室1坪以上 /2階建 /南面バルコニー /複層ガラス /床下収納 /緑豊かな住宅地 /通風良好 /ビルトガレージ /ウォークインクロゼット /全居室6畳以上 /浄水器 /隣家との間隔が大きい /整備された歩道 /平坦地 /開発分譲地内 | Price 価格 | | 33,500,000 yen 3350万円 | Floor plan 間取り | | 4LDK 4LDK | Units sold 販売戸数 | | 5 units 5戸 | Total units 総戸数 | | 7 units 7戸 | Land area 土地面積 | | 100.01 sq m ~ 124.4 sq m (30.25 tsubo ~ 37.63 tsubo) (measured) 100.01m2 ~ 124.4m2(30.25坪 ~ 37.63坪)(実測) | Building area 建物面積 | | 94.36 sq m ~ 98.82 sq m (28.54 tsubo ~ 29.89 tsubo) (Registration) 94.36m2 ~ 98.82m2(28.54坪 ~ 29.89坪)(登記) | Driveway burden-road 私道負担・道路 | | Road width: 4.6m ~ 6.6m, Concrete pavement 道路幅:4.6m ~ 6.6m、コンクリート舗装 | Completion date 完成時期(築年月) | | 2013 Late July 2013年7月下旬 | Address 住所 | | Osaka Prefecture Mino Imamiya 3-20 No. 3 大阪府箕面市今宮3-20番3 | Traffic 交通 | | Hankyu Senri Line "Kitasenri" walk 25 minutes Osaka Monorail Saito line "Toyokawa" walk 34 minutes Northern Osaka Express "Senri" walk 39 minutes 阪急千里線「北千里」歩25分 大阪モノレール彩都線「豊川」歩34分 北大阪急行「千里中央」歩39分
| Related links 関連リンク | | [Related Sites of this company] 【この会社の関連サイト】 | Person in charge 担当者より | | Rep wins Akihiro Age: 40 Daigyokai experience: the motto of 20 years "Spartan principle" we are allowed to direct guests. We will respond to empathically request. here you go, Please feel free to contact us. 担当者勝 明洋年齢:40代業界経験:20年「質実剛健主義」をモットーにお客様をご案内させていただいております。親身になってご要望にお応えいたします。どうぞ、お気軽にご相談ください。 | Contact お問い合せ先 | | TEL: 0800-603-2993 [Toll free] mobile phone ・ Also available from PHS Caller ID is not notified Please contact the "saw SUUMO (Sumo)" If it does not lead, If the real estate company TEL:0800-603-2993【通話料無料】携帯電話・PHSからもご利用いただけます 発信者番号は通知されません 「SUUMO(スーモ)を見た」と問い合わせください つながらない方、不動産会社の方は
| Building coverage, floor area ratio 建ぺい率・容積率 | | Kenpei rate: 60%, Volume ratio: 200% 建ペい率:60%、容積率:200% | Time residents 入居時期 | | Consultation 相談 | Land of the right form 土地の権利形態 | | Ownership 所有権 | Structure and method of construction 構造・工法 | | Wooden 2-story 木造2階建 | Use district 用途地域 | | Two mid-high 2種中高 | Land category 地目 | | Residential land 宅地 | Overview and notices その他概要・特記事項 | | Contact: wins Akihiro, Building confirmation number: 12-5403 担当者:勝 明洋、建築確認番号:12-5403 | Company profile 会社概要 | | <Mediation> governor of Osaka Prefecture (1) Yamato, Building Products Yubinbango532-0011 Osaka Yodogawa-ku, Osaka No. 056463 Nishinakajima 6-6-5 <仲介>大阪府知事(1)第056463号大和住建〒532-0011 大阪府大阪市淀川区西中島6-6-5 |
Local appearance photo現地外観写真  Local (April 2013) since before shooting is fields sunny
現地(2013年4月)撮影前が田畑なので日当たり良好
 Local (April 2013) Shooting Take a look at this day. Also spacious !! before road
現地(2013年4月)撮影 この日当たりを見て下さい。 前道も広々!!
Rendering (appearance)完成予想図(外観)  Room (May 2013) Shooting Example of construction
室内(2013年5月)撮影 施工例
Floor plan間取り図  (No. 3 locations), Price 33,500,000 yen, 4LDK, Land area 106.19 sq m , Building area 95.58 sq m
(3号地)、価格3350万円、4LDK、土地面積106.19m2、建物面積95.58m2
Livingリビング  Room (May 2013) Shooting Example of construction
室内(2013年5月)撮影 施工例
Bathroom浴室  Room (May 2013) Shooting
室内(2013年5月)撮影
Kitchenキッチン  Indoor (April 2013) Shooting
室内(2013年4月)撮影
The entire compartment Figure全体区画図  The remaining 3 compartment
残り3区画
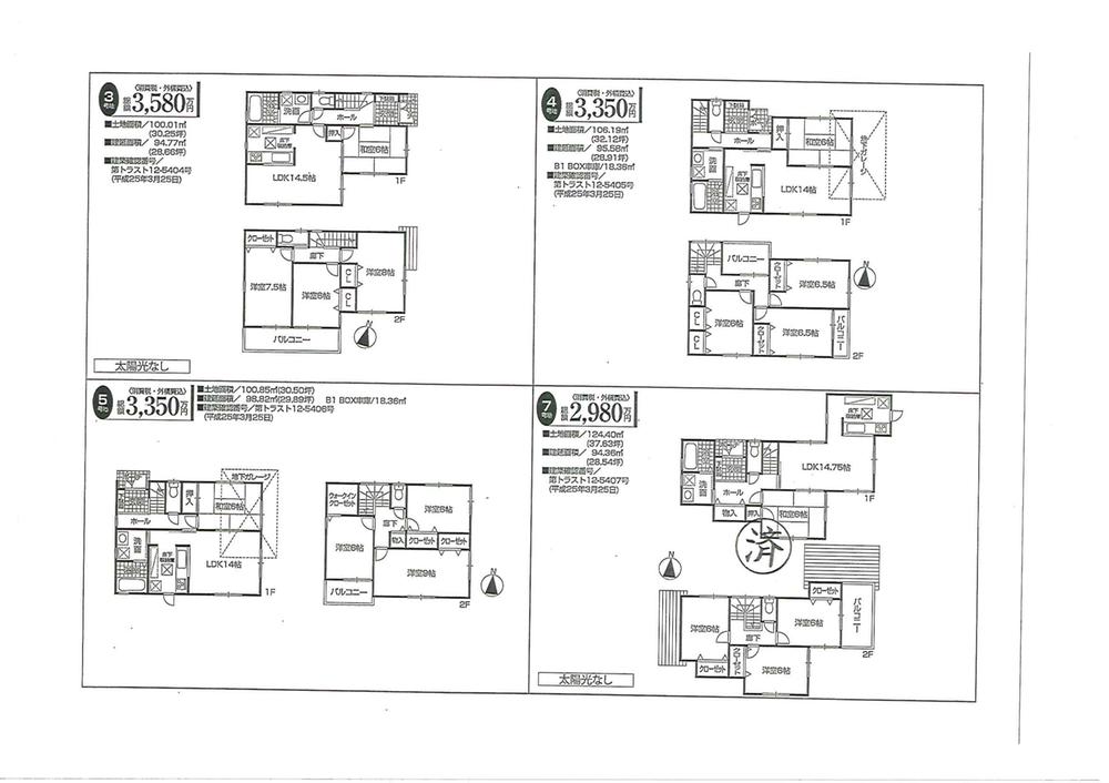
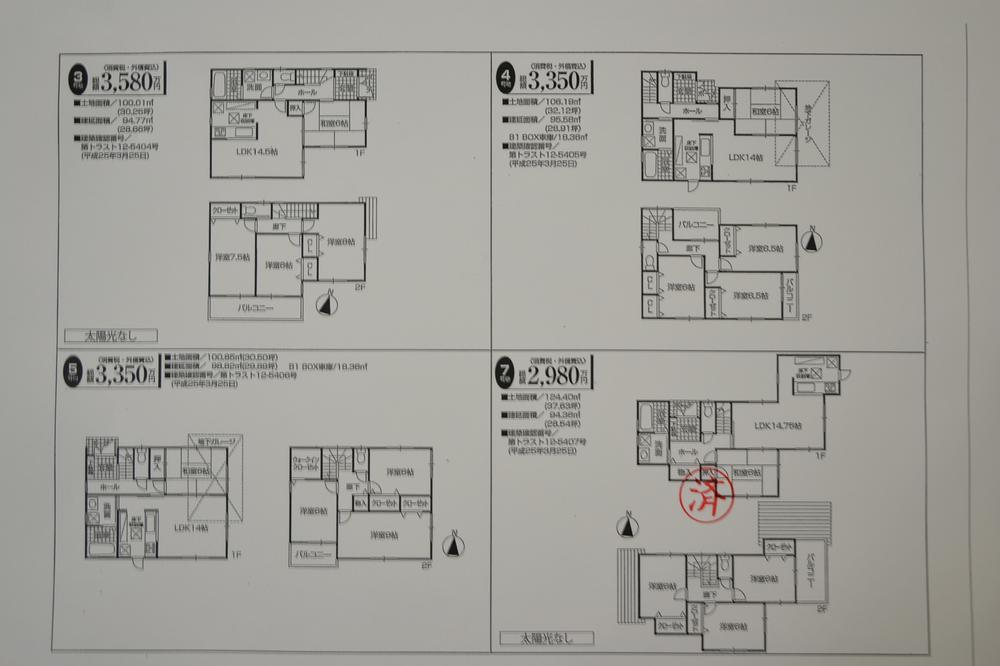
Otherその他  Each floor plan
各間取り
Location
|