New Homes » Kansai » Osaka prefecture » Mino


Osaka Prefecture Mino
Hankyū Minoo Line "Sakurai" walk 10 minutes
■ Produce a wide loft which is provided on the second floor ■ Stylish property bright in garden
● System Kitchen loft Equipped with storeroom ● window in the bathroom ● living stairs
Features pickup
Year Available / 2 along the line more accessible / System kitchen / garden / Toilet 2 places / 2-story / loft / The window in the bathroom / Living stairs / City gas / Storeroom
Price
26.5 million yen
Floor plan
3DK + S (storeroom)
Units sold
1 units
Total units
1 units
Land area
66.04 sq m (19.97 tsubo) (Registration)
Building area
91.39 sq m (27.64 square meters)
Driveway burden-road
Nothing, East 4m width (contact the road width 5.1m)
Completion date
March 2013
Address
Osaka Prefecture Mino Hanmachi 4
Traffic
Hankyū Minoo Line "Sakurai" walk 10 minutes
Osaka Monorail Main Line "Shibahara" walk 19 minutes
Related links
[Related Sites of this company]
Person in charge
Rep Yoshioka Shinji Age: 30s has been kept fun guidance. We look forward to your visit with children and families everyone. Visit us in one person is also a big welcome! Lasting relations we will try to support, such as it is so thank you.
Contact
TEL: 0800-603-8261 [Toll free] mobile phone ・ Also available from PHS
Caller ID is not notified
Please contact the "saw SUUMO (Sumo)"
If it does not lead, If the real estate company
Building coverage, floor area ratio
60% ・ 200%
Time residents
Consultation
Land of the right form
Ownership
Structure and method of construction
Wooden 2-story part RC
Use district
One middle and high
Overview and notices
Person in charge: Yoshioka Shinji, Facilities: Public Water Supply, This sewage, City gas, Building confirmation number: KKK01204616, Parking: Garage
Company profile
<Mediation> governor of Osaka (2) No. 053530 (Co.) plus one realistic Estate Yubinbango562-0012 Osaka Prefecture Mino Hakushima 1-2-12


Local appearance photo

Local appearance photo. High roof car is improper
High roof car is improper

Local photos, including front road

Local photos, including front road. On top of the ladder will be the loft
On top of the ladder will be the loft

Kitchen

Kitchen. Face-to-face kitchen
Face-to-face kitchen

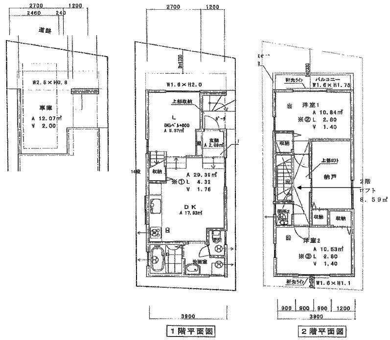
Floor plan

Floor plan. 26.5 million yen, 3DK + S (storeroom), Land area 66.04 sq m , Building area 91.39 sq m
26.5 million yen, 3DK + S (storeroom), Land area 66.04 sq m , Building area 91.39 sq m

Living

Living. Sunlight enters the Sansan from window
Sunlight enters the Sansan from window

Bathroom

Bathroom. Local (April 2013) Shooting
Local (April 2013) Shooting

Kitchen

Kitchen. Local (April 2013) Shooting
Local (April 2013) Shooting

Non-living room

Non-living room. Housed in the upper left corner will be placed so preeminent large plenty
Housed in the upper left corner will be placed so preeminent large plenty

Entrance

Entrance. Local (April 2013) Shooting
Local (April 2013) Shooting

Toilet

Toilet. Local (April 2013) Shooting
Local (April 2013) Shooting

Parking lot

Parking lot. Local (April 2013) Shooting
Local (April 2013) Shooting

Supermarket

Supermarket. 758m until Gourmet City Sakurai shop
758m until Gourmet City Sakurai shop

View photos from the dwelling unit

View photos from the dwelling unit. Local (April 2013) Shooting
Local (April 2013) Shooting

Other local

Other local. Local (April 2013) Shooting
Local (April 2013) Shooting

Non-living room

Non-living room. Local (April 2013) Shooting
Local (April 2013) Shooting

Drug store

Drug store. Drugstore until the server Toyonaka Miyayama shop 1180m
Drugstore until the server Toyonaka Miyayama shop 1180m

View photos from the dwelling unit

View photos from the dwelling unit. Local (April 2013) Shooting
Local (April 2013) Shooting

Kitchen

Kitchen. Local (April 2013) Shooting
Local (April 2013) Shooting

Non-living room

Non-living room. Local (April 2013) Shooting
Local (April 2013) Shooting

Home center

Home center. Manabe 576m to interior Hearts Minoo store
Manabe 576m to interior Hearts Minoo store



Location