New Homes » Kansai » Osaka prefecture » Mino


Osaka Prefecture Mino
Hankyū Minoo Line "Sakurai" walk 10 minutes
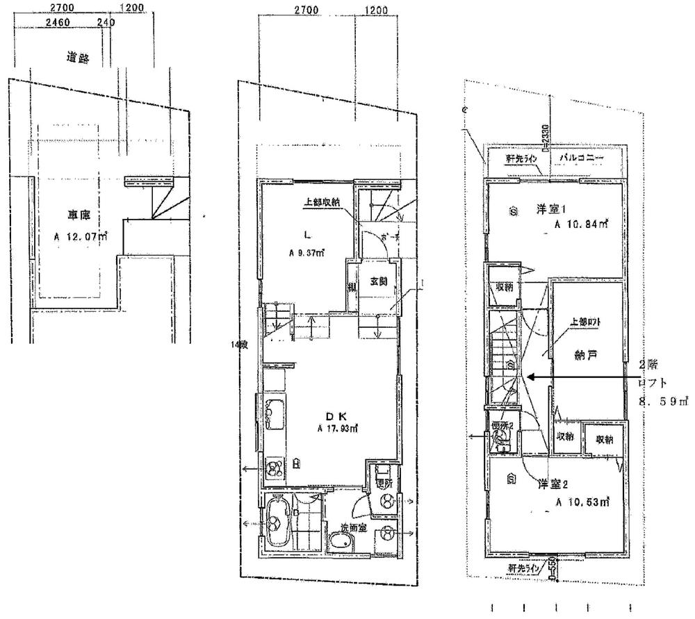
● There is a large loft (8.59 sq m) on the second floor. ● Hankyū Minoo Line "Sakurai" station, Walk is about 10 minutes.
[ Features of Property ] Immediately Available, LDK15 tatami mats or more, 2-story, loft, The window in the bathroom, Ventilation good, Storeroom, All rooms are two-sided lighting
Features pickup
Immediate Available / 2-story / loft / The window in the bathroom / Ventilation good / City gas / Storeroom / All rooms are two-sided lighting
Price
26.5 million yen
Floor plan
3DK + S (storeroom)
Units sold
1 units
Land area
66.04 sq m
Building area
91.39 sq m
Driveway burden-road
Nothing
Completion date
March 2013
Address
Osaka Prefecture Mino Hanmachi 4
Traffic
Hankyū Minoo Line "Sakurai" walk 10 minutes
Hankyu Takarazuka Line "Ishibashi" walk 18 minutes
Osaka Monorail Main Line "Shibahara" walk 19 minutes
Related links
[Related Sites of this company]
Person in charge
Rep Takahashi Hideyuki "Ikeda" ・ Looking for shelter in the "Mino" is, Born and raised, "Ikeda" ・ Please leave Takahashi of "Mino". In the same eyes with customers, We would like to continue working as you satisfy one-of-a-kind property is Mitsukedaseru.
Contact
TEL: 0800-603-3878 [Toll free] mobile phone ・ Also available from PHS
Caller ID is not notified
Please contact the "saw SUUMO (Sumo)"
If it does not lead, If the real estate company
Building coverage, floor area ratio
60% ・ 200%
Time residents
Immediate available
Land of the right form
Ownership
Structure and method of construction
Wooden 2-story steel frame part
Overview and notices
Contact: Takahashi Hideyuki, Parking: Garage
Company profile
<Mediation> governor of Osaka (2) No. 051450 (Ltd.) realistic Yubinbango563-0031 Osaka Ikeda Tenjin 1-8-20


Local appearance photo

Local appearance photo. Local (10 May 2013) Shooting
Local (10 May 2013) Shooting

Living

Living. Indoor (10 May 2013) Shooting
Indoor (10 May 2013) Shooting

Floor plan

Floor plan. 26.5 million yen, 3DK + S (storeroom), Land area 66.04 sq m , Building area 91.39 sq m
26.5 million yen, 3DK + S (storeroom), Land area 66.04 sq m , Building area 91.39 sq m

Kitchen

Kitchen. Indoor (2013 years) Shooting
Indoor (2013 years) Shooting

Bathroom

Bathroom. Indoor (10 May 2013) Shooting
Indoor (10 May 2013) Shooting

Other introspection

Other introspection. Indoor (10 May 2013) Shooting
Indoor (10 May 2013) Shooting

Other introspection. Indoor (10 May 2013) Shooting
Indoor (10 May 2013) Shooting

Wash basin, toilet

Wash basin, toilet. Indoor (10 May 2013) Shooting
Indoor (10 May 2013) Shooting

Other introspection

Other introspection. Indoor (10 May 2013) Shooting
Indoor (10 May 2013) Shooting

Other introspection. Indoor (10 May 2013) Shooting
Indoor (10 May 2013) Shooting

Other introspection. Indoor (10 May 2013) Shooting
Indoor (10 May 2013) Shooting

Other introspection. Indoor (10 May 2013) Shooting
Indoor (10 May 2013) Shooting

Other local

Other local. Local (10 May 2013) Shooting
Local (10 May 2013) Shooting

Other local. Local (10 May 2013) Shooting
Local (10 May 2013) Shooting

Local appearance photo

Local appearance photo. Local (10 May 2013) Shooting
Local (10 May 2013) Shooting

Local photos, including front road

Local photos, including front road. Local (February 2013) Shooting
Local (February 2013) Shooting



Location