|
|
Osaka Prefecture Mino
大阪府箕面市
|
|
Northern Osaka Express "Senri" 15 minutes Ayumi Shin'ie 5 minutes by bus
北大阪急行「千里中央」バス15分新家歩5分
|
|
Birth in a quiet residential area! ! From about a 2-minute walk the nearest bus stop to new construction one detached Daimaru Peacock of Aogein to Senri 15 minutes further, On-site parking two possible! !
閑静住宅地に誕生!!粟生外院の新築一戸建大丸ピーコックまで約徒歩2分最寄バス停から千里中央まで15分さらに、敷地内は駐車2台可能!!
|
|
Construction housing performance with evaluation, Design house performance with evaluation, Parking two Allowed, Super close, Facing south, System kitchen, Bathroom Dryer, All room storage, A quiet residential area, Or more before road 6mese-style room, Starting station, Shaping land, Washbasin with shower, Face-to-face kitchen, Toilet 2 places, 2-story, South balcony, Double-glazing, Leafy residential area, Maintained sidewalk, Flat terrain
建設住宅性能評価付、設計住宅性能評価付、駐車2台可、スーパーが近い、南向き、システムキッチン、浴室乾燥機、全居室収納、閑静な住宅地、前道6m以上、和室、始発駅、整形地、シャワー付洗面台、対面式キッチン、トイレ2ヶ所、2階建、南面バルコニー、複層ガラス、緑豊かな住宅地、整備された歩道、平坦地
|
Features pickup 特徴ピックアップ | | Construction housing performance with evaluation / Design house performance with evaluation / Parking two Allowed / Super close / Facing south / System kitchen / Bathroom Dryer / All room storage / A quiet residential area / Or more before road 6m / Japanese-style room / Starting station / Shaping land / Washbasin with shower / Face-to-face kitchen / Toilet 2 places / 2-story / South balcony / Double-glazing / Leafy residential area / Maintained sidewalk / Flat terrain 建設住宅性能評価付 /設計住宅性能評価付 /駐車2台可 /スーパーが近い /南向き /システムキッチン /浴室乾燥機 /全居室収納 /閑静な住宅地 /前道6m以上 /和室 /始発駅 /整形地 /シャワー付洗面台 /対面式キッチン /トイレ2ヶ所 /2階建 /南面バルコニー /複層ガラス /緑豊かな住宅地 /整備された歩道 /平坦地 |
Price 価格 | | 33,800,000 yen 3380万円 |
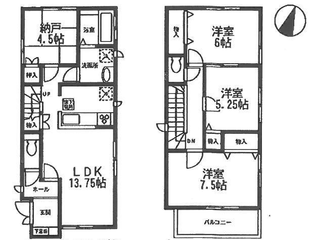
Floor plan 間取り | | 4LDK 4LDK |
Units sold 販売戸数 | | 1 units 1戸 |
Total units 総戸数 | | 1 units 1戸 |
Land area 土地面積 | | 100.24 sq m (30.32 tsubo) (Registration) 100.24m2(30.32坪)(登記) |
Building area 建物面積 | | 91.08 sq m (27.55 square meters) 91.08m2(27.55坪) |
Driveway burden-road 私道負担・道路 | | Nothing, South 7.8m width 無、南7.8m幅 |
Completion date 完成時期(築年月) | | January 2014 2014年1月 |
Address 住所 | | Osaka Prefecture Mino Aogein 1 大阪府箕面市粟生外院1 |
Traffic 交通 | | Northern Osaka Express "Senri" 15 minutes Ayumi Shin'ie 5 minutes by bus 北大阪急行「千里中央」バス15分新家歩5分
|
Related links 関連リンク | | [Related Sites of this company] 【この会社の関連サイト】 |
Person in charge 担当者より | | Person in charge of real-estate and building Domae Toshiyuki Age: 30 Daigyokai Experience: 8 years visit We will thank you very much. Real estate purchase that can be your satisfaction ・ We have your sale always try. Because I think that it can become your power of customers, Thank you. 担当者宅建堂前 利之年齢:30代業界経験:8年ご覧頂き誠に有難う御座います。ご満足して頂ける不動産購入・ご売却を常に心がけております。お客様のお力になれると思いますので、宜しくお願い致します。 |
Contact お問い合せ先 | | TEL: 0800-603-1265 [Toll free] mobile phone ・ Also available from PHS Caller ID is not notified Please contact the "saw SUUMO (Sumo)" If it does not lead, If the real estate company TEL:0800-603-1265【通話料無料】携帯電話・PHSからもご利用いただけます 発信者番号は通知されません 「SUUMO(スーモ)を見た」と問い合わせください つながらない方、不動産会社の方は
|
Building coverage, floor area ratio 建ぺい率・容積率 | | 60% ・ 200% 60%・200% |
Time residents 入居時期 | | January 2014 2014年1月 |
Land of the right form 土地の権利形態 | | Ownership 所有権 |
Structure and method of construction 構造・工法 | | Wooden 2-story (framing method) 木造2階建(軸組工法) |
Use district 用途地域 | | Two mid-high 2種中高 |
Overview and notices その他概要・特記事項 | | Contact: Domae Toshiyuki, Facilities: Public Water Supply, This sewage, City gas, Building confirmation number: first KS133-6110-00271, Parking: Garage 担当者:堂前 利之、設備:公営水道、本下水、都市ガス、建築確認番号:第KS133-6110-00271、駐車場:車庫 |
Company profile 会社概要 | | <Mediation> Minister of Land, Infrastructure and Transport (11) No. 002287 (Corporation) Japan Living Service Co., Ltd. Senri office Yubinbango560-0082 Toyonaka, Osaka Shinsenrihigashi-cho 1-1-3 (Yomiuri Cultural Center first floor) <仲介>国土交通大臣(11)第002287号(株)日住サービス千里中央営業所〒560-0082 大阪府豊中市新千里東町1-1-3 (よみうり文化センター1階) |