New Homes » Kansai » Osaka prefecture » Mino


Osaka Prefecture Mino
Hankyū Minoo Line "Sakurai" walk 10 minutes
Home style [Mediation ・ Renovation ・ Architecture ・ Finance ・ Financial Plan] It is a company that is doing a comprehensive proposal of!
Selection of properties of while watching the life plan and market conditions to suit your ⇒ we have been suggestions ⇒ guidance. ◆ Consumption tax hike before and after the tax increase What happens? ◆ From accumulating your down payment, Or buy? Buy Now, Which is Best? ◆ Rent and Which of the person's the good buy? ・ ・ ・ ・
Features pickup
Toilet 2 places / 2-story / loft
Price
26.5 million yen
Floor plan
3DK
Units sold
1 units
Total units
1 units
Land area
66.04 sq m (registration)
Building area
91.39 sq m , Among the first floor garage 12.07 sq m
Driveway burden-road
Nothing, East 4m width (contact the road width 5.1m)
Completion date
April 2013
Address
Osaka Prefecture Mino Hanmachi 4
Traffic
Hankyū Minoo Line "Sakurai" walk 10 minutes
Related links
[Related Sites of this company]
Person in charge
Rep Miyaji For 30's customers: Hideaki age, It supports every effort to look for better properties.
Contact
TEL: 0800-603-3479 [Toll free] mobile phone ・ Also available from PHS
Caller ID is not notified
Please contact the "saw SUUMO (Sumo)"
If it does not lead, If the real estate company
Building coverage, floor area ratio
60% ・ 200%
Time residents
Immediate available
Land of the right form
Ownership
Structure and method of construction
Wooden 2-story part RC
Construction
(Ltd.) Osugi builders
Use district
One middle and high
Overview and notices
Contact: Miyaji Hideaki, Facilities: Public Water Supply, This sewage, City gas, Building confirmation number: KKK01204616, Parking: Garage
Company profile
<Mediation> governor of Osaka (2) No. 050720 (Corporation) All Japan Real Estate Association (Corporation) Kinki district Real Estate Fair Trade Council member Century 21 Home style (Ltd.) Yubinbango564-0062 Suita, Osaka Prefecture Tarumi-cho 3-35-12


Local appearance photo

Local appearance photo. It is a quiet residential area. Local (12 May 2013) Shooting
It is a quiet residential area. Local (12 May 2013) Shooting

Parking lot

Parking lot. Local (12 May 2013) Shooting
Local (12 May 2013) Shooting

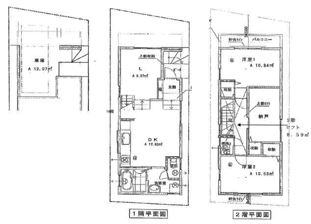
Floor plan

Floor plan. 26.5 million yen, 3DK, Land area 66.04 sq m , Building area 91.39 sq m 3SDK + is with a loft.
26.5 million yen, 3DK, Land area 66.04 sq m , Building area 91.39 sq m 3SDK + is with a loft.

Living

Living. The LDK has been equipped with a cupboard, This is useful. Indoor (12 May 2013) Shooting
The LDK has been equipped with a cupboard, This is useful. Indoor (12 May 2013) Shooting

Bathroom

Bathroom. Bright bathroom. Indoor (12 May 2013) Shooting
Bright bathroom. Indoor (12 May 2013) Shooting

Kitchen

Kitchen. Storage plenty of system Kitchen ☆
Storage plenty of system Kitchen ☆

Non-living room

Non-living room. Taken from loft.
Taken from loft.

Receipt

Receipt. Spacious loft is housed preeminent.
Spacious loft is housed preeminent.

Other introspection

Other introspection. It is entrance with stairs.
It is entrance with stairs.

Other introspection. Bright room.
Bright room.



Location