New Homes » Kansai » Osaka prefecture » Mino


Osaka Prefecture Mino
Hankyū Minoo Line "Sakurai" walk 8 minutes
Sakurai 3-chome No. 1 destination
[School information] South Elementary School ・ Third junior high school
Features pickup
System kitchen / Bathroom Dryer / LDK15 tatami mats or more / Japanese-style room / Face-to-face kitchen / Toilet 2 places / Bathroom 1 tsubo or more / 2-story / 2 or more sides balcony / Double-glazing / Otobasu / Underfloor Storage / TV monitor interphone / Water filter / City gas
Price
32,800,000 yen
Floor plan
4LDK
Units sold
1 units
Land area
100.01 sq m (registration)
Building area
94.77 sq m
Driveway burden-road
Nothing, Northeast 4.2m width
Completion date
October 2013
Address
Osaka Prefecture Mino Sakurai 3
Traffic
Hankyū Minoo Line "Sakurai" walk 8 minutes
Related links
[Related Sites of this company]
Contact
TEL: 0800-601-0849 [Toll free] mobile phone ・ Also available from PHS
Caller ID is not notified
Please contact the "saw SUUMO (Sumo)"
If it does not lead, If the real estate company
Building coverage, floor area ratio
60% ・ 200%
Time residents
Consultation
Land of the right form
Ownership
Structure and method of construction
Wooden 2-story
Use district
One middle and high
Overview and notices
Facilities: Public Water Supply, This sewage, City gas, Building confirmation number: No. Trust 13-1421
Company profile
<Mediation> governor of Osaka (2) the first 053,245 No. Century 21 Smart Home Ltd. Yubinbango564-0063 Suita, Osaka Esaka-cho 3-17-9


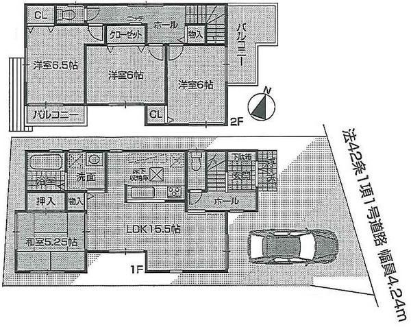
Floor plan

Floor plan. 32,800,000 yen, 4LDK, Land area 100.01 sq m , Building area 94.77 sq m
32,800,000 yen, 4LDK, Land area 100.01 sq m , Building area 94.77 sq m



Location