New Homes » Kansai » Osaka prefecture » Moriguchi
 
| | Osaka Moriguchi 大阪府守口市 |
| Subway Tanimachi Line "Moriguchi" walk 14 minutes 地下鉄谷町線「守口」歩14分 |
| Is the property of the seller direct sales. Large south-facing bright properties of face-to-face counter kitchen adopted frontage! 売主直売の物件です。対面式カウンターキッチン採用間口の広い南向きの明るい物件です! |
| ■ Dishwasher with a system Kitchen ■ Bathroom heating dryer, Living floor heating ■ TV monitor Hong, Pair glass ■食洗機付きシステムキッチン■浴室暖房乾燥機、リビング床暖房■TVモニターホン、ペアガラス |
Features pickup 特徴ピックアップ | | Pre-ground survey / 2 along the line more accessible / Super close / Facing south / System kitchen / Bathroom Dryer / Yang per good / Flat to the station / Siemens south road / LDK15 tatami mats or more / Starting station / Washbasin with shower / Face-to-face kitchen / Bathroom 1 tsubo or more / 2 or more sides balcony / South balcony / Double-glazing / Zenshitsuminami direction / Otobasu / Warm water washing toilet seat / Underfloor Storage / The window in the bathroom / TV monitor interphone / Ventilation good / All living room flooring / Dish washing dryer / Water filter / Three-story or more / City gas / Flat terrain / Floor heating 地盤調査済 /2沿線以上利用可 /スーパーが近い /南向き /システムキッチン /浴室乾燥機 /陽当り良好 /駅まで平坦 /南側道路面す /LDK15畳以上 /始発駅 /シャワー付洗面台 /対面式キッチン /浴室1坪以上 /2面以上バルコニー /南面バルコニー /複層ガラス /全室南向き /オートバス /温水洗浄便座 /床下収納 /浴室に窓 /TVモニタ付インターホン /通風良好 /全居室フローリング /食器洗乾燥機 /浄水器 /3階建以上 /都市ガス /平坦地 /床暖房 | Price 価格 | | 25,800,000 yen 2580万円 | Floor plan 間取り | | 3LDK 3LDK | Units sold 販売戸数 | | 1 units 1戸 | Land area 土地面積 | | 54.73 sq m (measured) 54.73m2(実測) | Building area 建物面積 | | 98.14 sq m 98.14m2 | Driveway burden-road 私道負担・道路 | | Share equity 74 sq m × (1 / 13), South 4m width (contact the road width 10.1m) 共有持分74m2×(1/13)、南4m幅(接道幅10.1m) | Completion date 完成時期(築年月) | | January 2014 2014年1月 | Address 住所 | | Osaka Moriguchi Yagumonishi cho 4-10-2 大阪府守口市八雲西町4-10-2 | Traffic 交通 | | Subway Tanimachi Line "Moriguchi" walk 14 minutes Osaka Monorail Main Line "Dainichi" walk 17 minutes Keihan "Moriguchi" walk 19 minutes 地下鉄谷町線「守口」歩14分 大阪モノレール本線「大日」歩17分 京阪本線「守口市」歩19分
| Related links 関連リンク | | [Related Sites of this company] 【この会社の関連サイト】 | Contact お問い合せ先 | | Sakura Home (Ltd.) TEL: 0800-603-8950 [Toll free] mobile phone ・ Also available from PHS Caller ID is not notified Please contact the "saw SUUMO (Sumo)" If it does not lead, If the real estate company さくらホーム(株)TEL:0800-603-8950【通話料無料】携帯電話・PHSからもご利用いただけます 発信者番号は通知されません 「SUUMO(スーモ)を見た」と問い合わせください つながらない方、不動産会社の方は
| Building coverage, floor area ratio 建ぺい率・容積率 | | 60% ・ 200% 60%・200% | Time residents 入居時期 | | January 2014 2014年1月 | Land of the right form 土地の権利形態 | | Ownership 所有権 | Structure and method of construction 構造・工法 | | Wooden three-story 木造3階建 | Use district 用途地域 | | Two dwellings 2種住居 | Other limitations その他制限事項 | | Quasi-fire zones 準防火地域 | Overview and notices その他概要・特記事項 | | Facilities: Public Water Supply, This sewage, City gas, Building confirmation number: REJ13211-10311, Parking: Garage 設備:公営水道、本下水、都市ガス、建築確認番号:REJ13211-10311、駐車場:車庫 | Company profile 会社概要 | | <Seller> governor of Osaka (2) No. 053524 Sakura Home Co., Ltd. Yubinbango570-0074 Osaka Moriguchi Bun'en-cho 3-4 <売主>大阪府知事(2)第053524号さくらホーム(株)〒570-0074 大阪府守口市文園町3-4 |
Kitchenキッチン  Face-to-face kitchen of white keynote
ホワイト基調の対面式キッチン
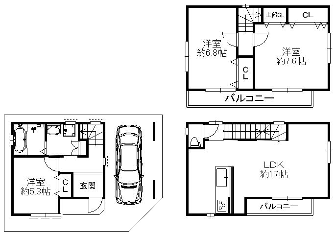
Floor plan間取り図  25,800,000 yen, 3LDK, Land area 54.73 sq m , Building area 98.14 sq m LDK about 17 Pledge
2580万円、3LDK、土地面積54.73m2、建物面積98.14m2 LDK約17帖
Local appearance photo現地外観写真  South-facing per, Sunny
南向きにつき、日当たり良好
 This large property of frontage.
間口の広い物件です。
Livingリビング  You momentum conversation with family
家族との会話が弾みます
Bathroom浴室  1616 size and a heated dryer
1616サイズ&暖房乾燥機付き
Non-living roomリビング以外の居室  A bright room
明るい室内
Entrance玄関  With entrance storage
玄関収納付き
Wash basin, toilet洗面台・洗面所  Three-sided mirror type
三面鏡タイプ
Supermarketスーパー  Until the food hall APRO Yakumo Moriguchi shop 290m
食品館アプロ守口八雲店まで290m
Otherその他  Counter + shelf
カウンター+棚
Non-living roomリビング以外の居室  Sunny
日当たり良好
Supermarketスーパー  718m until Yakumo Bandai shop
万代八雲店まで718m
Non-living roomリビング以外の居室  3F Western-style
3F洋室
Convenience storeコンビニ  372m until the Daily Yamazaki Yakumo Moriguchi shop
デイリーヤマザキ守口八雲店まで372m
Non-living roomリビング以外の居室  Storage is abundant
収納豊富です
High school ・ College高校・高専  484m to Osaka Prefectural Moriguchi East High School
大阪府立守口東高校まで484m
Junior high school中学校  Moriguchi stand Yakumo until junior high school 193m
守口市立八雲中学校まで193m
Primary school小学校  Moriguchi stand Yakumo to elementary school 296m
守口市立八雲小学校まで296m
Kindergarten ・ Nursery幼稚園・保育園  128m to the west nursery
西保育所まで128m
Hospital病院  762m until Panasonic health insurance union Matsushita Memorial Hospital
パナソニック健康保険組合松下記念病院まで762m
Location
|