New Homes » Kansai » Osaka prefecture » Neyagawa
 
| | Osaka Prefecture Neyagawa 大阪府寝屋川市 |
| Keihan "Neyagawa" walk 15 minutes 京阪本線「寝屋川市」歩15分 |
| Spacious 5LDK! ! ・ Parking two! ! Perfect for one with a lot of your family! Please look at a time because it became a fashionable interior finish! 広々5LDK!!・駐車場2台!!ご家族の多い方にピッタリ!オシャレな内装仕上げになっているので一度見てください! |
| «Neyagawa Saiwaicho newly built three-story house All two-compartment » ◆ Recommended point ○ building with a 10-year warranty ○ 5LDK ・ Parking two ○ 2 places balcony ◆ In town ○ system Kitchen (shower faucet with a water purifier) ○ Bathing (unit bath with tub heating drying ventilation, Fully automatic with hot water-covered function) ○ toilet (2 places), One place bidet type ◆ Surrounding facilities ○ 10-minute walk from the central elementary school A 20-minute walk ○ until the first junior high school ≪寝屋川市幸町新築3階建住宅 全2区画≫◆おすすめポイント ○建物10年保証付 ○5LDK・駐車場2台 ○2ヶ所バルコニー◆充実設備 ○システムキッチン(浄水器付シャワー水栓) ○お風呂(浴槽暖房乾燥換気付ユニットバス、全自動お湯張り機能付) ○トイレ(2か所)、1ヶ所ウォシュレットタイプ ◆周辺施設 ○中央小学校まで徒歩10分 ○第一中学校まで徒歩20分 |
Features pickup 特徴ピックアップ | | Corresponding to the flat-35S / Pre-ground survey / Year Available / Parking two Allowed / Immediate Available / See the mountain / System kitchen / Bathroom Dryer / Yang per good / A quiet residential area / LDK15 tatami mats or more / Japanese-style room / Washbasin with shower / Face-to-face kitchen / Barrier-free / Toilet 2 places / Bathroom 1 tsubo or more / 2 or more sides balcony / Double-glazing / Warm water washing toilet seat / The window in the bathroom / Ventilation good / Dish washing dryer / Three-story or more / City gas / Movable partition フラット35Sに対応 /地盤調査済 /年内入居可 /駐車2台可 /即入居可 /山が見える /システムキッチン /浴室乾燥機 /陽当り良好 /閑静な住宅地 /LDK15畳以上 /和室 /シャワー付洗面台 /対面式キッチン /バリアフリー /トイレ2ヶ所 /浴室1坪以上 /2面以上バルコニー /複層ガラス /温水洗浄便座 /浴室に窓 /通風良好 /食器洗乾燥機 /3階建以上 /都市ガス /可動間仕切り | Price 価格 | | 29,800,000 yen 2980万円 | Floor plan 間取り | | 5LDK 5LDK | Units sold 販売戸数 | | 2 units 2戸 | Total units 総戸数 | | 2 units 2戸 | Land area 土地面積 | | 75.39 sq m ~ 75.61 sq m (registration) 75.39m2 ~ 75.61m2(登記) | Building area 建物面積 | | 114.77 sq m ~ 115.07 sq m 114.77m2 ~ 115.07m2 | Completion date 完成時期(築年月) | | 2013 Early April 2013年4月初旬 | Address 住所 | | Osaka Prefecture Neyagawa Saiwaicho 18-17 大阪府寝屋川市幸町18-17 | Traffic 交通 | | Keihan "Neyagawa" walk 15 minutes Keihan "Korien" walk 26 minutes JR katamachi line "Higashineyagawa" walk 44 minutes 京阪本線「寝屋川市」歩15分 京阪本線「香里園」歩26分 JR片町線「東寝屋川」歩44分
| Related links 関連リンク | | [Related Sites of this company] 【この会社の関連サイト】 | Contact お問い合せ先 | | (Ltd.) pylon TEL: 072-381-6351 Please inquire as "saw SUUMO (Sumo)" (株)パイロンTEL:072-381-6351「SUUMO(スーモ)を見た」と問い合わせください | Most price range 最多価格帯 | | 29 million yen (1 units) 2900万円台(1戸) | Time residents 入居時期 | | Immediate available 即入居可 | Land of the right form 土地の権利形態 | | Ownership 所有権 | Use district 用途地域 | | Two mid-high 2種中高 | Overview and notices その他概要・特記事項 | | Building confirmation number: first J12-01130 建築確認番号:第J12-01130 | Company profile 会社概要 | | <Mediation> governor of Osaka Prefecture (1) No. 055301 (Ltd.) pylon Yubinbango572-0080 Osaka Neyagawa Korikitano cho 17-6-101 <仲介>大阪府知事(1)第055301号(株)パイロン〒572-0080 大阪府寝屋川市香里北之町17-6-101 |
Local appearance photo現地外観写真  In east day is good!
東向きで日当たり良好です!
Kitchenキッチン  I do want to use because it out immediately veranda from the back door in the face-to-face kitchen!
対面キッチンで勝手口からすぐベランダに出れるので使いがっていいです!
Otherその他  Pair glass insulation, There is a blocking effect, Utility costs is profitable! !
ペアガラスは断熱、遮断効果があり、光熱費がお得です!!
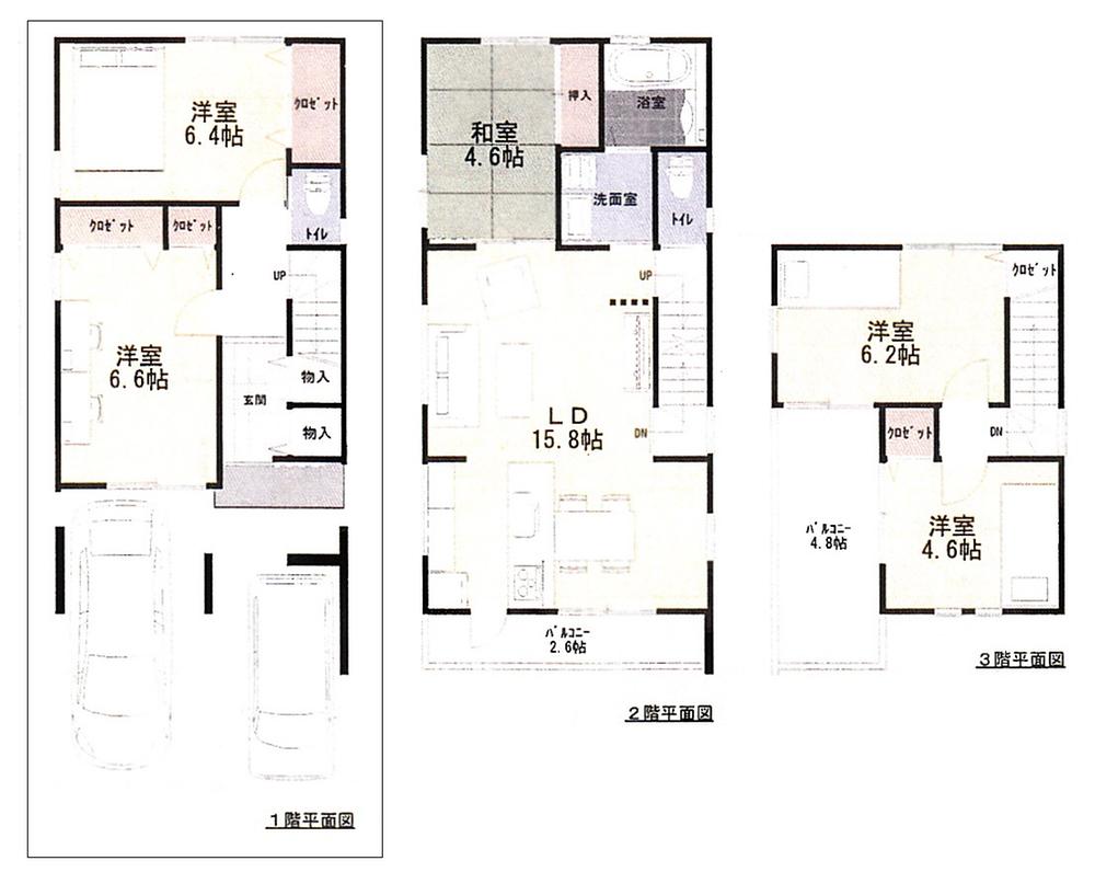
Floor plan間取り図  (Saiwaicho B No. land), Price 29,800,000 yen, 5LDK, Land area 75.61 sq m , Building area 115 sq m
(幸町B号地)、価格2980万円、5LDK、土地面積75.61m2、建物面積115m2
Livingリビング  Since LDK has led that there is more than 16 Japanese-style tatami, You can also your hospitality steep customers.
LDKは16帖以上あり和室とつながっているので、急なお客様も御もてなし出来ます。
Same specifications photo (bathroom)同仕様写真(浴室)  Same specification bathroom (image)
同仕様浴室(イメージ)
Same specifications photo (kitchen)同仕様写真(キッチン)  Same specification kitchen (image)
同仕様キッチン(イメージ)
Non-living roomリビング以外の居室  3F Western-style 6.2 Pledge Feel Osha Do window is good
3F洋室 6.2帖 おしゃな窓がいい感じ
Entrance玄関  There storage, I have a mom is happy large mirror!
収納あって、ママが嬉しい大きな鏡が付いてます!
Wash basin, toilet洗面台・洗面所  Three-sided mirror in wide type! ! Full slide type.
ワイドタイプで3面鏡!!フルスライドタイプ。
Toiletトイレ  Happy with Washlet!
嬉しいウォシュレット付!
Parking lot駐車場  Parking will stop two!
駐車場は2台止めれます!
Balconyバルコニー  Spacious in 3F balcony facing east! !
3Fバルコニー東向きで広々!!
Otherその他  A 15-minute walk ion Mall aligned anything is
何でもそろうイオンモールが徒歩15分
Bathroom浴室  Bathing should relax slowly stretched out his leg because the spacious 1 pyeong type
お風呂は広々1坪タイプなので足を伸ばしてゆっくりくつろいで下さい
Non-living roomリビング以外の居室  2F Japanese-style room Relax the mind in the space of the sum.
2F和室 和の空間でこころがリラックス。
Otherその他  A No. land Price 29,800,000 yen, 5LDK
A号地 価格2980万円、5LDK
Non-living roomリビング以外の居室  3F Western-style, It caught the lights a lot from the large windows!
3F洋室、大きな窓からあかりがたくさん採れます!
Otherその他  Walk to the center elementary school 13 minutes
中央小学校まで徒歩13分
Non-living roomリビング以外の居室  1F Western-style 6.1 Pledge, Also easy travel out of the luggage from the parking lot from the large windows
1F洋室6.1帖、大きな窓から駐車場からの荷物の出し入れも楽チン
Otherその他  Security worry if there is close to Neyagawa police station!
近くに寝屋川警察署があってセキュリティーも安心!
Location
|