|
|
Osaka Prefecture Neyagawa
大阪府寝屋川市
|
|
Keihan "Korien" walk 8 minutes
京阪本線「香里園」歩8分
|
|
Solar power generation equipment! Kōrien Station 8 min. Walk! Facing south! Parking two Allowed!
太陽光発電装備!香里園駅徒歩8分!南向き!駐車2台可!
|
Features pickup 特徴ピックアップ | | Solar power system / Parking two Allowed / Super close / Facing south / System kitchen / Bathroom Dryer / Face-to-face kitchen / Bathroom 1 tsubo or more / 2-story / South balcony 太陽光発電システム /駐車2台可 /スーパーが近い /南向き /システムキッチン /浴室乾燥機 /対面式キッチン /浴室1坪以上 /2階建 /南面バルコニー |
Event information イベント情報 | | Local tours (Please be sure to ask in advance) schedule / Now open 現地見学会(事前に必ずお問い合わせください)日程/公開中 |
Price 価格 | | 29,800,000 yen 2980万円 |
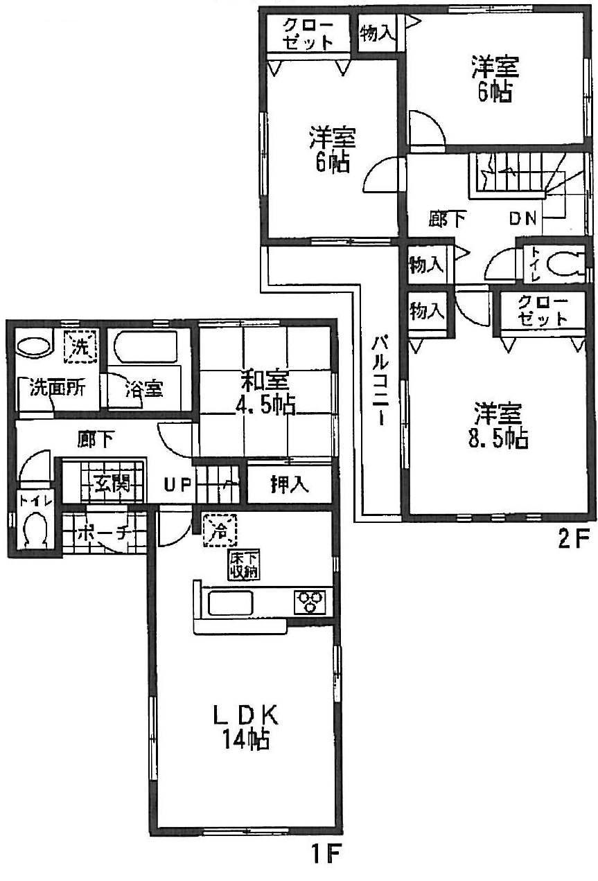
Floor plan 間取り | | 4LDK 4LDK |
Units sold 販売戸数 | | 1 units 1戸 |
Total units 総戸数 | | 1 units 1戸 |
Land area 土地面積 | | 97.8 sq m (29.58 tsubo) (Registration) 97.8m2(29.58坪)(登記) |
Building area 建物面積 | | 93.55 sq m (28.29 tsubo) (measured) 93.55m2(28.29坪)(実測) |
Driveway burden-road 私道負担・道路 | | Nothing, South 4m width 無、南4m幅 |
Completion date 完成時期(築年月) | | October 2013 2013年10月 |
Address 住所 | | Osaka Prefecture Neyagawa Korinishino cho 大阪府寝屋川市香里西之町 |
Traffic 交通 | | Keihan "Korien" walk 8 minutes 京阪本線「香里園」歩8分
|
Related links 関連リンク | | [Related Sites of this company] 【この会社の関連サイト】 |
Contact お問い合せ先 | | (Ltd.) lifestyle TEL: 0120-239800 [Toll free] Please contact the "saw SUUMO (Sumo)" (株)ライフスタイルTEL:0120-239800【通話料無料】「SUUMO(スーモ)を見た」と問い合わせください |
Building coverage, floor area ratio 建ぺい率・容積率 | | 60% ・ 200% 60%・200% |
Time residents 入居時期 | | Consultation 相談 |
Land of the right form 土地の権利形態 | | Ownership 所有権 |
Structure and method of construction 構造・工法 | | Wooden 2-story (framing method) 木造2階建(軸組工法) |
Overview and notices その他概要・特記事項 | | Facilities: Public Water Supply, This sewage, City gas, Building confirmation number: No. H25SHC110405, Parking: car space 設備:公営水道、本下水、都市ガス、建築確認番号:第H25SHC110405号、駐車場:カースペース |
Company profile 会社概要 | | <Mediation> governor of Osaka (2) No. 053137 (Ltd.) lifestyle Yubinbango571-0030 Osaka Prefecture Kadoma Suehiro-cho, 10-6 <仲介>大阪府知事(2)第053137号(株)ライフスタイル〒571-0030 大阪府門真市末広町10-6 |