|
|
Osaka Prefecture Neyagawa
大阪府寝屋川市
|
|
Keihan "Neyagawa" walk 7 minutes
京阪本線「寝屋川市」歩7分
|
|
Immediate Available, Super close, Facing south, All room storage, LDK15 tatami mats or more, Bathroom 1 tsubo or more, South balcony, All room 6 tatami mats or more
即入居可、スーパーが近い、南向き、全居室収納、LDK15畳以上、浴室1坪以上、南面バルコニー、全居室6畳以上
|
|
Immediate Available, Super close, Facing south, All room storage, LDK15 tatami mats or more, Bathroom 1 tsubo or more, South balcony, All room 6 tatami mats or more
即入居可、スーパーが近い、南向き、全居室収納、LDK15畳以上、浴室1坪以上、南面バルコニー、全居室6畳以上
|
Features pickup 特徴ピックアップ | | Immediate Available / Super close / Facing south / All room storage / LDK15 tatami mats or more / Bathroom 1 tsubo or more / South balcony / All room 6 tatami mats or more 即入居可 /スーパーが近い /南向き /全居室収納 /LDK15畳以上 /浴室1坪以上 /南面バルコニー /全居室6畳以上 |
Price 価格 | | 25,800,000 yen 2580万円 |
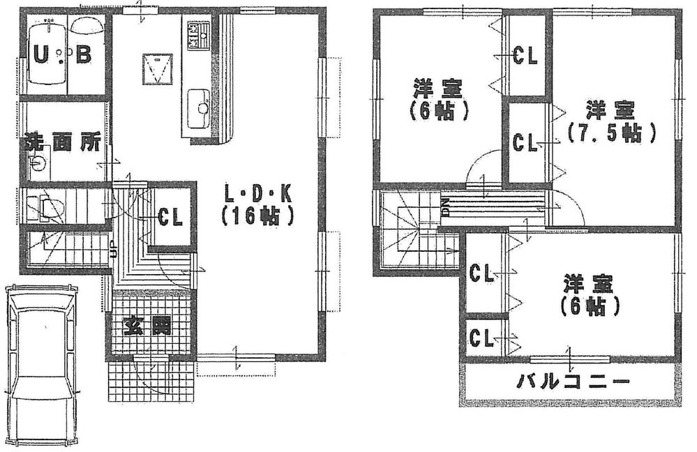
Floor plan 間取り | | 3LDK 3LDK |
Units sold 販売戸数 | | 1 units 1戸 |
Total units 総戸数 | | 1 units 1戸 |
Land area 土地面積 | | 90.5 sq m (measured) 90.5m2(実測) |
Building area 建物面積 | | 84.24 sq m (measured) 84.24m2(実測) |
Driveway burden-road 私道負担・道路 | | Nothing, South 4m width 無、南4m幅 |
Completion date 完成時期(築年月) | | May 2013 2013年5月 |
Address 住所 | | Osaka Prefecture Neyagawa Otoshimoto cho 大阪府寝屋川市大利元町 |
Traffic 交通 | | Keihan "Neyagawa" walk 7 minutes 京阪本線「寝屋川市」歩7分
|
Related links 関連リンク | | [Related Sites of this company] 【この会社の関連サイト】 |
Contact お問い合せ先 | | (Ltd.) lifestyle TEL: 0120-239800 [Toll free] Please contact the "saw SUUMO (Sumo)" (株)ライフスタイルTEL:0120-239800【通話料無料】「SUUMO(スーモ)を見た」と問い合わせください |
Building coverage, floor area ratio 建ぺい率・容積率 | | 60% ・ 200% 60%・200% |
Time residents 入居時期 | | Immediate available 即入居可 |
Land of the right form 土地の権利形態 | | Ownership 所有権 |
Structure and method of construction 構造・工法 | | Wooden 2-story 木造2階建 |
Use district 用途地域 | | Two dwellings 2種住居 |
Overview and notices その他概要・特記事項 | | Facilities: Public Water Supply, This sewage, City gas, Parking: car space 設備:公営水道、本下水、都市ガス、駐車場:カースペース |
Company profile 会社概要 | | <Marketing alliance (mediated)> governor of Osaka (2) No. 053137 (Ltd.) lifestyle Yubinbango571-0030 Osaka Prefecture Kadoma Suehiro-cho, 10-6 <販売提携(媒介)>大阪府知事(2)第053137号(株)ライフスタイル〒571-0030 大阪府門真市末広町10-6 |