New Homes » Kansai » Osaka prefecture » Neyagawa
 
| | Osaka Prefecture Neyagawa 大阪府寝屋川市 |
| Keihan "Korien" walk 8 minutes 京阪本線「香里園」歩8分 |
| ■ Open house! Year 12 / 28 ・ 29 to the! The beginning of the year 1 / 4 ・ From 5 ■ Mortgage consultation meeting held in ■ Every day can be your guide! We will correspond to 21 pm ■ Please visit hope, please be sure to ask in advance ■オープンハウス!年内12/28・29まで!年明け1/4・5から■住宅ローン相談会開催中■毎日ご案内可能!21時まで対応いたします■ご見学希望は事前に必ずお問い合わせください |
| ◇ Thank a lot of properties that have not been posted on the net ◇ First of all, please contact us, "Kansai Real Estate Information Center Hirakata Ekimae ・ 0800-805-6560 " ※ Appearance of this publication ・ Introspection ・ Amenities are the same scale ・ format ・ It is the example of construction photos of the same specification. Gate ・ Planting ・ It will differ from this matter for the garden and the nearby landscape, etc.. ◇ネットに掲載されていない物件もたくさんございます◇まずはお問い合わせ下さい『関西不動産情報センター枚方駅前店・0800-805-6560』※本掲載の外観・内観・設備写真は同一規模・形式・同仕様の施工例写真です。門扉・植栽・庭や近隣の風景等について本件と異なります。 |
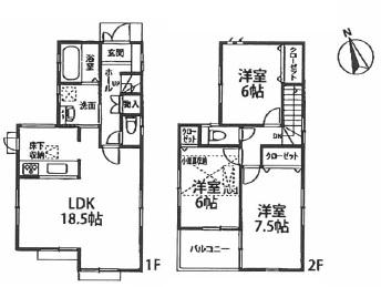
Features pickup 特徴ピックアップ | | Corresponding to the flat-35S / Parking two Allowed / System kitchen / Bathroom Dryer / Yang per good / All room storage / Japanese-style room / Washbasin with shower / Face-to-face kitchen / Security enhancement / Toilet 2 places / Bathroom 1 tsubo or more / 2-story / South balcony / Double-glazing / Warm water washing toilet seat / Underfloor Storage / TV monitor interphone / Ventilation good / Water filter / Attic storage フラット35Sに対応 /駐車2台可 /システムキッチン /浴室乾燥機 /陽当り良好 /全居室収納 /和室 /シャワー付洗面台 /対面式キッチン /セキュリティ充実 /トイレ2ヶ所 /浴室1坪以上 /2階建 /南面バルコニー /複層ガラス /温水洗浄便座 /床下収納 /TVモニタ付インターホン /通風良好 /浄水器 /屋根裏収納 | Event information イベント情報 | | Open House (Please be sure to ask in advance) schedule / During the public time / 10:00 ~ 21:00 オープンハウス(事前に必ずお問い合わせください)日程/公開中時間/10:00 ~ 21:00 | Price 価格 | | 32,800,000 yen 3280万円 | Floor plan 間取り | | 4LDK 4LDK | Units sold 販売戸数 | | 1 units 1戸 | Total units 総戸数 | | 3 units 3戸 | Land area 土地面積 | | 85.8 sq m (25.95 tsubo) (Registration) 85.8m2(25.95坪)(登記) | Building area 建物面積 | | 88.6 sq m (26.80 tsubo) (Registration) 88.6m2(26.80坪)(登記) | Driveway burden-road 私道負担・道路 | | Nothing, North 4m width 無、北4m幅 | Completion date 完成時期(築年月) | | April 2014 2014年4月 | Address 住所 | | Osaka Prefecture Neyagawa Korinishino cho 大阪府寝屋川市香里西之町 | Traffic 交通 | | Keihan "Korien" walk 8 minutes Keihan "Kozenji" walk 18 minutes Keihan "Neyagawa" walk 38 minutes 京阪本線「香里園」歩8分 京阪本線「光善寺」歩18分 京阪本線「寝屋川市」歩38分
| Related links 関連リンク | | [Related Sites of this company] 【この会社の関連サイト】 | Person in charge 担当者より | | Rep Yamamoto Kenta Age: 30 Daigyokai experience: you will be five years agility footwork well efforts. Anything I will do my best to serious Sincerely 担当者山元 健太年齢:30代業界経験:5年機敏にフットワークよく取り組みさせていただきます。何でも真面目に頑張りますどうぞよろしくお願いいたします | Contact お問い合せ先 | | TEL: 0800-805-6560 [Toll free] mobile phone ・ Also available from PHS Caller ID is not notified Please contact the "saw SUUMO (Sumo)" If it does not lead, If the real estate company TEL:0800-805-6560【通話料無料】携帯電話・PHSからもご利用いただけます 発信者番号は通知されません 「SUUMO(スーモ)を見た」と問い合わせください つながらない方、不動産会社の方は
| Building coverage, floor area ratio 建ぺい率・容積率 | | 60% ・ 200% 60%・200% | Time residents 入居時期 | | April 2014 schedule 2014年4月予定 | Land of the right form 土地の権利形態 | | Ownership 所有権 | Structure and method of construction 構造・工法 | | Wooden 2-story (framing method) 木造2階建(軸組工法) | Use district 用途地域 | | Two dwellings 2種住居 | Overview and notices その他概要・特記事項 | | Contact: Yamamoto Kenta, Facilities: Public Water Supply, This sewage, City gas, Building confirmation number: No. Trust 13-3693, Parking: car space 担当者:山元 健太、設備:公営水道、本下水、都市ガス、建築確認番号:第トラスト13-3693号、駐車場:カースペース | Company profile 会社概要 | | <Mediation> governor of Osaka Prefecture (1) the first 057,222 No. Century 21 Kansai Real Estate Information Center Yubinbango573-0032 Hirakata, Osaka Okahigashi cho 14-44 <仲介>大阪府知事(1)第057222号センチュリー21(株)関西不動産情報センター〒573-0032 大阪府枚方市岡東町14-44 |
Rendering (appearance)完成予想図(外観)  The company enforcement example (appearance)
同社施行例(外観)
Floor plan間取り図  32,800,000 yen, 4LDK, Land area 85.8 sq m , Building area 88.6 sq m 3 No. land floor plan
3280万円、4LDK、土地面積85.8m2、建物面積88.6m2 3号地間取り図
Same specifications photos (living)同仕様写真(リビング)  The company enforcement example (living)
同社施行例(リビング)
Same specifications photo (bathroom)同仕様写真(浴室)  The company enforcement example (bathroom)
同社施行例(浴室)
Same specifications photo (kitchen)同仕様写真(キッチン)  The company enforcement example (kitchen)
同社施行例(キッチン)
Non-living roomリビング以外の居室  The company enforcement example (Japanese-style)
同社施行例(和室)
Other Equipmentその他設備  Wash basin
洗面台
 Bathroom Dryer
浴室乾燥機
 Attic storage
小屋裏収納
Construction ・ Construction method ・ specification構造・工法・仕様  Wooden set construction method
木造軸組み工法
 Basic packing method
基礎パッキン工法
 Anchor bolt
アンカーボルト
Local photos, including front road前面道路含む現地写真  Compartment figure
区画図
Otherその他  The company enforcement example (Western-style)
同社施行例(洋室)
Other Equipmentその他設備  Toilet
トイレ
 Bathroom dryer remote control
浴室乾燥機リモコン
 Monitor with intercom
モニター付きインターホン
Construction ・ Construction method ・ specification構造・工法・仕様  Seismic hardware
耐震金物
 Solid foundation
べた基礎
 Soil improvement work
地盤改良工事
Junior high school中学校  Neyagawa Municipal Tomoryo 岐中 to school 1281m
寝屋川市立友呂岐中学校まで1281m
Presentプレゼント  The customer who your conclusion of a contract during the life support campaign period, A furniture set of 5, B 1 single air conditioning, Your favorite thing one point gift from one C motor-assisted cycle
ライフサポートキャンペーン期間中にご成約頂いたお客様には、A家具5点セット、Bエアコン1台、C電動アシストサイクル1台の中からお好きな物を1点プレゼント
You will receive this brochureこんなパンフレットが届きます  This brochure will receive! JOIN NOW document request!
こちらのパンフレットが届きます!今すぐ資料請求しよう!
Location
|