New Homes » Kansai » Osaka prefecture » Asahi-ku
 
| | Osaka-shi, Osaka Asahi-ku, 大阪府大阪市旭区 |
| Subway Tanimachi Line "Senbayashiomiya" walk 15 minutes 地下鉄谷町線「千林大宮」歩15分 |
| ●● mind bright, natural is close bright rooms ●● ●●自然が近い明るいお部屋で心も明るく●● |
| ◆ Riverside park is in the distance visible from the balcony. Recommended for bicycle commuting! ? ◆ All three compartment, Which issue area is also rich storage. ◆ Roof balcony size of about 7 Pledge of No. B land. It is a variety of offers likely. ◆河川敷公園がバルコニーから見える距離にあります。自転車通勤にオススメ!?◆全3区画、どの号地も収納豊富です。◆B号地のルーフバルコニーは約7帖の広さ。色々楽しめそうですね。 |
Features pickup 特徴ピックアップ | | Parking two Allowed / Riverside / System kitchen / Bathroom Dryer / All room storage / LDK15 tatami mats or more / Washbasin with shower / Face-to-face kitchen / Toilet 2 places / Warm water washing toilet seat / The window in the bathroom / TV monitor interphone / All living room flooring / Dish washing dryer / Walk-in closet / Three-story or more / Living stairs / City gas 駐車2台可 /リバーサイド /システムキッチン /浴室乾燥機 /全居室収納 /LDK15畳以上 /シャワー付洗面台 /対面式キッチン /トイレ2ヶ所 /温水洗浄便座 /浴室に窓 /TVモニタ付インターホン /全居室フローリング /食器洗乾燥機 /ウォークインクロゼット /3階建以上 /リビング階段 /都市ガス | Price 価格 | | 29,800,000 yen ~ 33,800,000 yen 2980万円 ~ 3380万円 | Floor plan 間取り | | 4LDK 4LDK | Units sold 販売戸数 | | 3 units 3戸 | Total units 総戸数 | | 3 units 3戸 | Land area 土地面積 | | 66.24 sq m ~ 105.3 sq m (20.03 tsubo ~ 31.85 square meters) 66.24m2 ~ 105.3m2(20.03坪 ~ 31.85坪) | Building area 建物面積 | | 109.71 sq m ~ 115.92 sq m (33.18 tsubo ~ 35.06 square meters) 109.71m2 ~ 115.92m2(33.18坪 ~ 35.06坪) | Completion date 完成時期(築年月) | | November 2013 2013年11月 | Address 住所 | | Osaka-shi, Osaka Asahi Ward Nakamiya 5-15-4 大阪府大阪市旭区中宮5-15-4 | Traffic 交通 | | Subway Tanimachi Line "Senbayashiomiya" walk 15 minutes Subway Tanimachi Line "Taishibashiimaichi" walk 16 minutes Subway Imazato muscle line "Taishibashiimaichi" walk 16 minutes 地下鉄谷町線「千林大宮」歩15分 地下鉄谷町線「太子橋今市」歩16分 地下鉄今里筋線「太子橋今市」歩16分
| Related links 関連リンク | | [Related Sites of this company] 【この会社の関連サイト】 | Contact お問い合せ先 | | TEL: 0800-603-9391 [Toll free] mobile phone ・ Also available from PHS Caller ID is not notified Please contact the "saw SUUMO (Sumo)" If it does not lead, If the real estate company TEL:0800-603-9391【通話料無料】携帯電話・PHSからもご利用いただけます 発信者番号は通知されません 「SUUMO(スーモ)を見た」と問い合わせください つながらない方、不動産会社の方は
| Building coverage, floor area ratio 建ぺい率・容積率 | | Kenpei rate: 60%, Volume ratio: 200% 建ペい率:60%、容積率:200% | Land of the right form 土地の権利形態 | | Ownership 所有権 | Structure and method of construction 構造・工法 | | Wooden three-story 木造3階建て | Use district 用途地域 | | Two mid-high 2種中高 | Land category 地目 | | Residential land 宅地 | Other limitations その他制限事項 | | Quasi-fire zones 準防火地域 | Company profile 会社概要 | | <Mediation> governor of Osaka Prefecture (1) No. 054552 Century 21 (Ltd.) K's home Yubinbango538-0053 Osaka-shi, Osaka Tsurumi-ku Tsurumi 5-1-10 <仲介>大阪府知事(1)第054552号センチュリー21(株)ケーズホーム〒538-0053 大阪府大阪市鶴見区鶴見5-1-10 |
Non-living roomリビング以外の居室  Mood also bright (picture is all A No. destinations in bright rooms. )
明るいお部屋で気分も明るく(写真はすべてA号地です。)
Balconyバルコニー  Green dry riverbed will come into your eyes from the balcony.
バルコニーからは河川敷の緑が目に入ってきます。
Receipt収納  Storage of large capacity, You can use a wide room.
大容量の収納、お部屋を広く使えます。
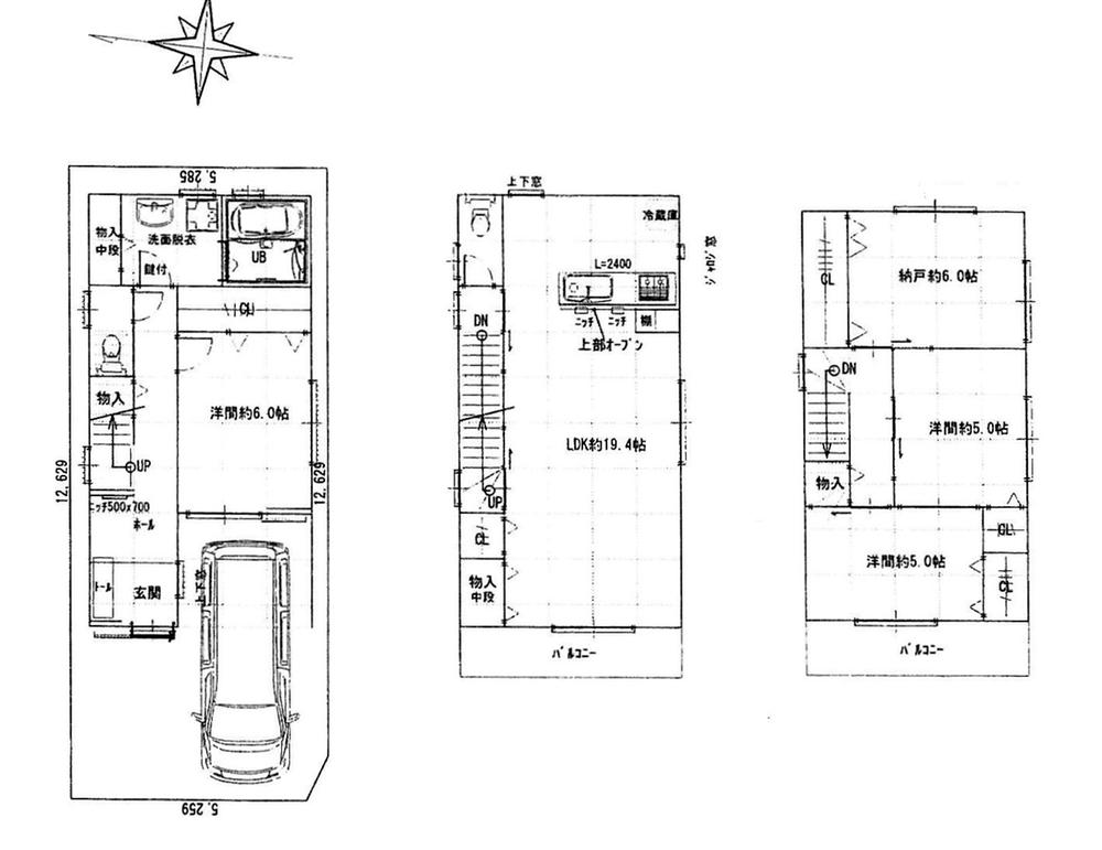
Floor plan間取り図  (A No. land), Price 31,800,000 yen, 4LDK, Land area 66.76 sq m , Building area 109.71 sq m
(A号地)、価格3180万円、4LDK、土地面積66.76m2、建物面積109.71m2
 Local appearance photo
現地外観写真
 Living
リビング
 Bathroom
浴室
 Kitchen
キッチン
 Non-living room
リビング以外の居室
Entrance玄関  Bright entrance
明るい玄関先
Wash basin, toilet洗面台・洗面所  Plenty of basin storage.
洗面の収納もたっぷり。
Post office郵便局  Asahi Nakamiya 462m to the post office
旭中宮郵便局まで462m
 Local appearance photo
現地外観写真
 Living
リビング
Location
|