New Homes » Kansai » Osaka prefecture » Fukushima-ku


Osaka-shi, Osaka, Fukushima-ku,
JR Osaka Loop Line "Noda" walk 3 minutes
Good location Elementary School 2WAY access, Call wait until junior high school immediately relieved school 0120-939-621! !
For property details and mortgage etc., What ... Please contact us if you have any questions or concerns regarding your purchase of the house! We look forward to seeing you everyone! ◆ Other Thank listing many that do not net me! ◆ ■ Call wait until the Corporation Gurozu real estate sales 0120-939-621! ! ■ ◆
Event information
Local tours (Please be sure to ask in advance) schedule / December 5 (Thursday) ~ July 5 (Saturday) For property details and mortgage etc., What ... Please contact us if you have any questions or concerns regarding your purchase of the house! We look forward to seeing you everyone! ◆ ■ Call wait until the Corporation Gurozu real estate sales 0120-939-621! ! ■ ◆
Price
33,800,000 yen
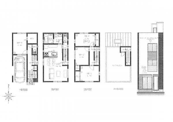
Floor plan
4LDK
Units sold
1 units
Land area
46.24 sq m (registration)
Building area
107.59 sq m (registration)
Driveway burden-road
6.56 sq m , South 6.4m width
Completion date
September 2013
Address
Osaka-shi, Osaka, Fukushima-ku, Noda 3
Traffic
JR Osaka Loop Line "Noda" walk 3 minutes
Related links
[Related Sites of this company]
Contact
TEL: 0800-805-5953 [Toll free] mobile phone ・ Also available from PHS
Caller ID is not notified
Please contact the "saw SUUMO (Sumo)"
If it does not lead, If the real estate company
Building coverage, floor area ratio
80% ・ 300%
Time residents
Consultation
Land of the right form
Ownership
Structure and method of construction
Wooden three-story
Use district
Two dwellings
Overview and notices
Facilities: Public Water Supply, This sewage, City gas, Building confirmation number: -
Company profile
<Mediation> governor of Osaka Prefecture (1) No. 056227 (Ltd.) Gurozu real estate sales Yubinbango530-0045 Osaka-shi, Osaka, Kita-ku, Tenjin Nishi-cho, 5-17 8th floor


Local appearance photo
Local appearance photo

Kitchen
Kitchen

Floor plan

Floor plan. 33,800,000 yen, 4LDK, Land area 46.24 sq m , Building area 107.59 sq m
33,800,000 yen, 4LDK, Land area 46.24 sq m , Building area 107.59 sq m

Living
Living

Bathroom
Bathroom

Non-living room
Non-living room

Entrance
Entrance

Wash basin, toilet
Wash basin, toilet

Receipt
Receipt

Toilet
Toilet

Local photos, including front road
Local photos, including front road

Balcony
Balcony

Primary school

Primary school. Peripheral 80m to Osaka Municipal Noda Elementary School
Peripheral 80m to Osaka Municipal Noda Elementary School

Non-living room
Non-living room

Junior high school

Junior high school. Peripheral 800m to Osaka City under Fukushima junior high school
Peripheral 800m to Osaka City under Fukushima junior high school

Non-living room
Non-living room

Other Environmental Photo

Other Environmental Photo. Peripheral 240m to Noda Station (JR)
Peripheral 240m to Noda Station (JR)

Non-living room
Non-living room

Other Environmental Photo. Peripheral 450m to Tamagawa Station (subway Sennichimae Line)
Peripheral 450m to Tamagawa Station (subway Sennichimae Line)

Supermarket

Supermarket. Peripheral 500m to super
Peripheral 500m to super

Convenience store

Convenience store. Peripheral 250m to a convenience store
Peripheral 250m to a convenience store



Location