New Homes » Kansai » Osaka prefecture » Higashinari District


Osaka-shi, Osaka Higashinari-ku
JR Osaka Loop Line "Tamatukuri" walk 8 minutes
● weekly, soil ・ Day ・ Congratulation, Open House held in! ! ● You can model house preview! ! ● 4Way accessible! ! (JR loop line ・ Subway Sennichimae Line ・ Subway Nagahori Tsurumi-ryokuchi Line ・ Kintetsu Nara Line)
● Free Plan correspondence! ! ● remove the dirt of the outer wall with a thermal barrier effect is high eco siding adopted (Sorugado) ● rainwater [Nano-hydrophilic micro guard] Cum, To keep the beauty of appearance over a long period of time! ● luxury standard equipment! ! (Glass top stove ・ Down Wall ・ With dish washing dryer ・ Bathroom heater dryer, etc.) ● location is very good site! !
Seller comments
No. 2 place
Local guide map
Local guide map
Features pickup
Pre-ground survey / Parking two Allowed / 2 along the line more accessible / Super close / Facing south / System kitchen / Bathroom Dryer / Yang per good / Flat to the station / Siemens south road / A quiet residential area / LDK15 tatami mats or more / Around traffic fewer / Japanese-style room / Washbasin with shower / Face-to-face kitchen / Barrier-free / Toilet 2 places / Bathroom 1 tsubo or more / 2-story / South balcony / Double-glazing / Otobasu / Warm water washing toilet seat / The window in the bathroom / TV monitor interphone / Urban neighborhood / Dish washing dryer / Living stairs / City gas
Event information
Local tours (Please be sure to ask in advance) schedule / Every Saturday, Sunday and public holidays time / 10:00 ~ 19:00 every week, soil ・ Day festival is local briefing session held in! ! Model house can also be visited at close! !
Property name
Libero Town Tamatsu
Price
35,900,000 yen ~ 42,900,000 yen
Floor plan
4LDK
Units sold
7 units
Total units
7 units
Land area
83.51 sq m ~ 119.78 sq m (measured)
Building area
76.6 sq m ~ 100.44 sq m (measured)
Driveway burden-road
Road width: 4.0m ~ 4.5m, Asphaltic pavement
Completion date
4 months after the contract
Address
Osaka-shi, Osaka Higashinari-ku Tamatsu 2-12-6
Traffic
JR Osaka Loop Line "Tamatukuri" walk 8 minutes
Subway Sennichimae Line "Tsuruhashi" walk 8 minutes
Kintetsu Nara Line "Tsuruhashi" walk 9 minutes
Person in charge
Person in charge of real-estate and building torii St. Age: 30s your joy is my joy. We want to let me propose a really happily enjoy your house hunting. We promise hard. Let me help you with a dream.
Contact
TEL: 0800-603-2312 [Toll free] mobile phone ・ Also available from PHS
Caller ID is not notified
Please contact the "saw SUUMO (Sumo)"
If it does not lead, If the real estate company
Building coverage, floor area ratio
Kenpei rate: 80%, Volume ratio: 300%
Time residents
4 months after the contract
Land of the right form
Ownership
Structure and method of construction
Wooden 2-story (framing method)
Use district
One dwelling
Overview and notices
Contact: Torii St., Building confirmation number: No. REJ1221-08476
Company profile
<Marketing alliance (mediated)> Minister of Land, Infrastructure and Transport (2) No. 007017 (Ltd.) House Freedom Higashi shop Yubinbango577-0841 Osaka Higashi Ashidai 3-11-10


Same specifications photos (appearance)

Same specifications photos (appearance). Example of construction
Example of construction

Same specifications photos (living)

Same specifications photos (living). Example of construction
Example of construction

Other

Other. Example of construction
Example of construction

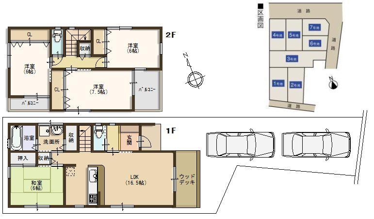
Floor plan

Floor plan. (No. 7 locations), Price 42,900,000 yen, 4LDK, Land area 96.79 sq m , Building area 95.58 sq m
(No. 7 locations), Price 42,900,000 yen, 4LDK, Land area 96.79 sq m , Building area 95.58 sq m

Bathroom

Bathroom. Local (11 May 2013) Shooting
Local (11 May 2013) Shooting

Same specifications photos (living)

Same specifications photos (living). Example of construction
Example of construction

Entrance

Entrance. Example of construction
Example of construction

Rendering (appearance)

Rendering (appearance). Bird's-eye view
Bird's-eye view

Rendering (appearance). Front view
Front view

Same specifications photo (kitchen)

Same specifications photo (kitchen). Kitchen
Kitchen

Same specifications photo (bathroom)

Same specifications photo (bathroom). Bathroom
Bathroom

Wash basin, toilet

Wash basin, toilet. Wash basin
Wash basin

Toilet
Toilet

Local guide map
Local guide map

Floor plan

Floor plan. (No. 3 locations), Price 37,900,000 yen, 4LDK, Land area 119.76 sq m , Building area 100.44 sq m
(No. 3 locations), Price 37,900,000 yen, 4LDK, Land area 119.76 sq m , Building area 100.44 sq m

The entire compartment Figure

The entire compartment Figure. Compartment figure
Compartment figure

Living

Living. I went into furniture!
I went into furniture!

Non-living room

Non-living room. Local (11 May 2013) Shooting
Local (11 May 2013) Shooting

Local photos, including front road

Local photos, including front road. Local (12 May 2012) shooting
Local (12 May 2012) shooting

Kitchen

Kitchen. Local (11 May 2013) Shooting
Local (11 May 2013) Shooting

Local appearance photo

Local appearance photo. Model house the completed!
Model house the completed!

Construction ・ Construction method ・ specification

Construction ・ Construction method ・ specification. To suppress the temperature rise eco siding (Sorugado) specification ・ Fall is dirt in rainwater [Nano-hydrophilic micro guard] With
To suppress the temperature rise eco siding (Sorugado) specification ・ Fall is dirt in rainwater [Nano-hydrophilic micro guard] With

Floor plan

Floor plan. (No. 2 locations), Price 39,900,000 yen, 4LDK, Land area 99.12 sq m , Building area 91.12 sq m
(No. 2 locations), Price 39,900,000 yen, 4LDK, Land area 99.12 sq m , Building area 91.12 sq m

Floor plan. Until Life Imazato shop 400m
Until Life Imazato shop 400m

Supermarket

Supermarket. Until Life Imazato shop 400m
Until Life Imazato shop 400m

Supermarket. 640m until the Daily qanat Izumiya Tamatsukuri shop
640m until the Daily qanat Izumiya Tamatsukuri shop

Supermarket. 640m to supermarket KINSHO Tamatsukuri shop
640m to supermarket KINSHO Tamatsukuri shop

Convenience store

Convenience store. 160m until Lawson Tamatsu 2-chome
160m until Lawson Tamatsu 2-chome

Drug store

Drug store. Daikoku drag JR Tamatsukuri to Station shop 640m
Daikoku drag JR Tamatsukuri to Station shop 640m

Junior high school

Junior high school. 320m to Osaka Municipal Tamatsu junior high school
320m to Osaka Municipal Tamatsu junior high school

Primary school

Primary school. 400m to Osaka City Tatsunaka Road Elementary School
400m to Osaka City Tatsunaka Road Elementary School

Kindergarten ・ Nursery

kindergarten ・ Nursery. 320m to Osaka Municipal Higashiobase kindergarten
320m to Osaka Municipal Higashiobase kindergarten

Park

park. 400m until Higashiobase park
400m until Higashiobase park



Location