New Homes » Kansai » Osaka prefecture » Higashinari District
 
| | Osaka-shi, Osaka Higashinari-ku 大阪府大阪市東成区 |
| Metro center line "Green Bridge" walk 7 minutes 地下鉄中央線「緑橋」歩7分 |
| ● Osaka Chuo Line Green Bridge Station 7 minutes walk of good location! ! ● aligned variety rich Floor Plan! ! ● all 6 compartment! Please feel free to contact us ●大阪中央線 緑橋駅 徒歩7分の好立地!!●バラエティー豊かな間取りプランがそろってます!!●全6区画!お気軽にお問い合わせください |
| ● energy-saving housing! ! Thermal insulation performance is high LOW-E pair glass specification! ! ● With dishwasher! ! ● winter with warm bathroom heating dryer! ! ●省エネルギー住宅!!断熱性能が高いLOW-Eペアガラス仕様!!●食器洗い乾燥機付!!●冬も暖か浴室暖房乾燥機付!! |
Features pickup 特徴ピックアップ | | Corresponding to the flat-35S / Year Available / Parking two Allowed / 2 along the line more accessible / LDK18 tatami mats or more / Super close / It is close to the city / Facing south / System kitchen / Bathroom Dryer / Yang per good / All room storage / Flat to the station / Siemens south road / A quiet residential area / Or more before road 6m / Corner lot / Shaping land / Face-to-face kitchen / Barrier-free / Toilet 2 places / Bathroom 1 tsubo or more / South balcony / Double-glazing / Otobasu / Warm water washing toilet seat / The window in the bathroom / TV monitor interphone / Urban neighborhood / Ventilation good / All living room flooring / Dish washing dryer / Walk-in closet / Three-story or more / Living stairs / City gas フラット35Sに対応 /年内入居可 /駐車2台可 /2沿線以上利用可 /LDK18畳以上 /スーパーが近い /市街地が近い /南向き /システムキッチン /浴室乾燥機 /陽当り良好 /全居室収納 /駅まで平坦 /南側道路面す /閑静な住宅地 /前道6m以上 /角地 /整形地 /対面式キッチン /バリアフリー /トイレ2ヶ所 /浴室1坪以上 /南面バルコニー /複層ガラス /オートバス /温水洗浄便座 /浴室に窓 /TVモニタ付インターホン /都市近郊 /通風良好 /全居室フローリング /食器洗乾燥機 /ウォークインクロゼット /3階建以上 /リビング階段 /都市ガス | Event information イベント情報 | | Open House (Please be sure to ask in advance) schedule / Every Saturday, Sunday and public holidays time / 10:30 ~ 19:00 オープンハウス(事前に必ずお問い合わせください)日程/毎週土日祝時間/10:30 ~ 19:00 | Price 価格 | | 29,800,000 yen ~ 34,800,000 yen 2980万円 ~ 3480万円 | Floor plan 間取り | | 4LDK 4LDK | Units sold 販売戸数 | | 6 units 6戸 | Total units 総戸数 | | 6 units 6戸 | Land area 土地面積 | | 55.8 sq m ~ 89.3 sq m (registration) 55.8m2 ~ 89.3m2(登記) | Building area 建物面積 | | 100.59 sq m ~ 117.99 sq m (registration) 100.59m2 ~ 117.99m2(登記) | Driveway burden-road 私道負担・道路 | | Road width: 7.3m 道路幅:7.3m | Completion date 完成時期(築年月) | | June 2013 2013年6月 | Address 住所 | | Osaka-shi, Osaka Higashinari-ku Higashiimazato 1 大阪府大阪市東成区東今里1 | Traffic 交通 | | Metro center line "Green Bridge" walk 7 minutes Subway Chuo Line "Fukaebashi" walk 8 minutes JR Osaka Loop Line "Morinomiya" walk 21 minutes 地下鉄中央線「緑橋」歩7分 地下鉄中央線「深江橋」歩8分 JR大阪環状線「森ノ宮」歩21分
| Related links 関連リンク | | [Related Sites of this company] 【この会社の関連サイト】 | Person in charge 担当者より | | Rep Hirayama Katsura City Age: Shi listen firmly you a 30's ideals and commitment customers, Easy to understand description, On the basis of an in-depth plan, etc., The satisfaction of the families we have the help of looking house in top priority. 担当者平山 桂市年齢:30代お客様の理想やこだわりをしっかりとお聴きし、分かり易い説明、綿密なプラン等をもとに、ご家族の満足度を最優先に住まい探しのお手伝いをしております。 | Contact お問い合せ先 | | TEL: 0800-603-2312 [Toll free] mobile phone ・ Also available from PHS Caller ID is not notified Please contact the "saw SUUMO (Sumo)" If it does not lead, If the real estate company TEL:0800-603-2312【通話料無料】携帯電話・PHSからもご利用いただけます 発信者番号は通知されません 「SUUMO(スーモ)を見た」と問い合わせください つながらない方、不動産会社の方は
| Building coverage, floor area ratio 建ぺい率・容積率 | | Kenpei rate: 80%, Volume ratio: 200% 建ペい率:80%、容積率:200% | Time residents 入居時期 | | Immediate available 即入居可 | Land of the right form 土地の権利形態 | | Ownership 所有権 | Structure and method of construction 構造・工法 | | Wooden three-story 木造3階建 | Use district 用途地域 | | Semi-industrial 準工業 | Land category 地目 | | Residential land 宅地 | Overview and notices その他概要・特記事項 | | Contact: Hirayama Katsura City, Building confirmation number: - 担当者:平山 桂市、建築確認番号:- | Company profile 会社概要 | | <Mediation> Minister of Land, Infrastructure and Transport (2) No. 007017 (Ltd.) House Freedom Higashi shop Yubinbango577-0841 Osaka Higashi Ashidai 3-11-10 <仲介>国土交通大臣(2)第007017号(株)ハウスフリーダム東大阪店〒577-0841 大阪府東大阪市足代3-11-10 |
Local appearance photo現地外観写真  Local (July 2013) is a day preeminent in shooting facing south.
現地(2013年7月)撮影南向きで日当たり抜群です。
Entrance玄関  Spacious entrance.
広い玄関です。
Local photos, including front road前面道路含む現地写真  Local (July 2013) Shooting Widely even before the road, Parking is also a breeze.
現地(2013年7月)撮影 前道も広く、駐車も楽々です。
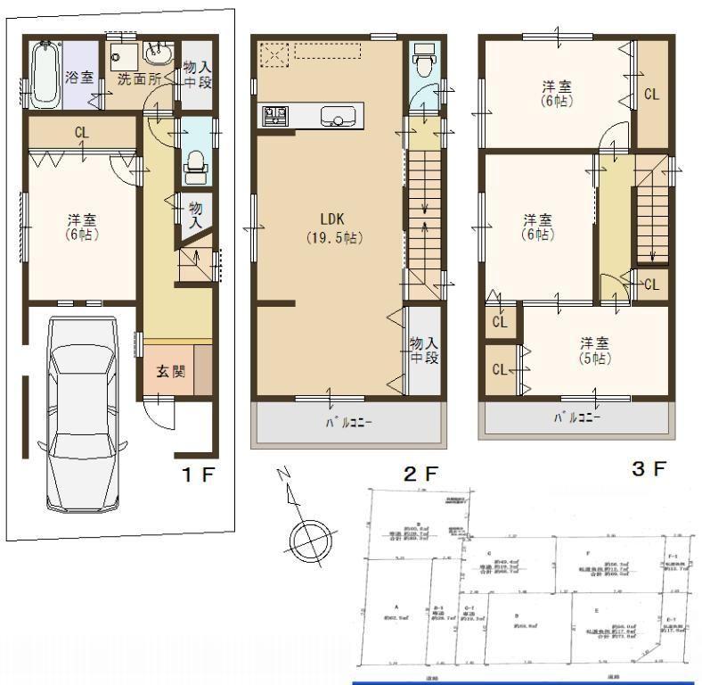
Floor plan間取り図  (A No. land), Price 32,800,000 yen, 4LDK, Land area 62.4 sq m , Building area 117.99 sq m
(A号地)、価格3280万円、4LDK、土地面積62.4m2、建物面積117.99m2
Local appearance photo現地外観写真  Local (July 2013) Shooting
現地(2013年7月)撮影
Livingリビング  There is a niche, Stylish living.
ニッチがあり、お洒落なリビングです。
 Bathroom
浴室
Kitchenキッチン  It is with dish washing dryer.
食器洗乾燥機付きです。
Non-living roomリビング以外の居室  Western-style (1)
洋室(1)
 Wash basin, toilet
洗面台・洗面所
Receipt収納  Entrance storage
玄関収納
 Toilet
トイレ
Shopping centreショッピングセンター  Nishimatsuya 334m until the green bridge shop
西松屋緑橋店まで334m
Local guide map現地案内図  map
地図
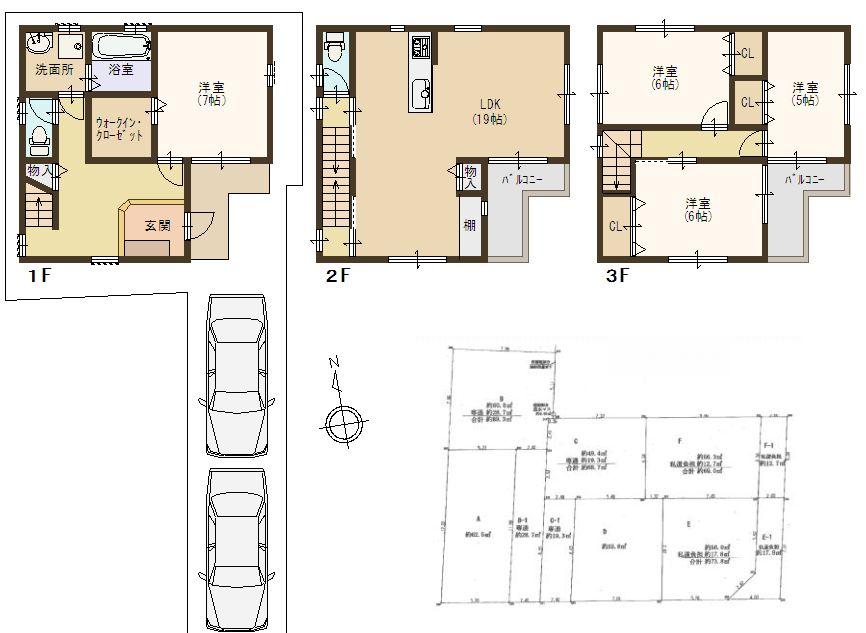
Floor plan間取り図  (B No. land), Price 32,800,000 yen, 4LDK, Land area 89.3 sq m , Building area 111.78 sq m
(B号地)、価格3280万円、4LDK、土地面積89.3m2、建物面積111.78m2
Livingリビング  There is a storage and counter to the living room, Convenient.
リビングに収納やカウンターが有り、便利です。
Non-living roomリビング以外の居室  Western-style (2)
洋室(2)
Receipt収納  1st floor Hallway storage
1階 廊下収納
Supermarketスーパー  Konomiya 622m until the green bridge shop
コノミヤ緑橋店まで622m
Floor plan間取り図  (C No. land), Price 29,800,000 yen, 4LDK, Land area 68.7 sq m , Building area 100.59 sq m
(C号地)、価格2980万円、4LDK、土地面積68.7m2、建物面積100.59m2
Location
|