2012December
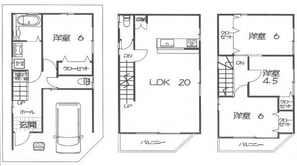
36,800,000 yen, 4LDK, 113.43 sq m
New Homes » Kansai » Osaka prefecture » Higashinari District
 
| | Osaka-shi, Osaka Higashinari-ku 大阪府大阪市東成区 |
| Subway Sennichimae Line "Shinfukae" walk 3 minutes 地下鉄千日前線「新深江」歩3分 |
| Local briefings! Customers of hope, Please contact House create 0120-838-660. 現地説明会開催!ご希望のお客様は、ハウスクリエイト0120-838-660までお問合せください。 |
| We will send you detailed documentation! "Material charge" Please request from the button. 詳しい資料お送りいたします!「資料請求する」ボタンからご請求ください。 |
Price 価格 | | 36,800,000 yen 3680万円 | Floor plan 間取り | | 4LDK 4LDK | Units sold 販売戸数 | | 1 units 1戸 | Land area 土地面積 | | 58.84 sq m (registration) 58.84m2(登記) | Building area 建物面積 | | 113.43 sq m (registration) 113.43m2(登記) | Driveway burden-road 私道負担・道路 | | Nothing, East 6m width (contact the road width 14.7m), South 6m width 無、東6m幅(接道幅14.7m)、南6m幅 | Completion date 完成時期(築年月) | | December 2012 2012年12月 | Address 住所 | | Osaka-shi, Osaka Higashinari-ku Kanji 4 大阪府大阪市東成区神路4 | Traffic 交通 | | Subway Sennichimae Line "Shinfukae" walk 3 minutes 地下鉄千日前線「新深江」歩3分
| Contact お問い合せ先 | | TEL: 0800-805-3496 [Toll free] mobile phone ・ Also available from PHS Caller ID is not notified Please contact the "saw SUUMO (Sumo)" If it does not lead, If the real estate company TEL:0800-805-3496【通話料無料】携帯電話・PHSからもご利用いただけます 発信者番号は通知されません 「SUUMO(スーモ)を見た」と問い合わせください つながらない方、不動産会社の方は
| Building coverage, floor area ratio 建ぺい率・容積率 | | 80% ・ 300% 80%・300% | Time residents 入居時期 | | Consultation 相談 | Land of the right form 土地の権利形態 | | Ownership 所有権 | Structure and method of construction 構造・工法 | | Wooden three-story 木造3階建 | Use district 用途地域 | | Semi-industrial 準工業 | Overview and notices その他概要・特記事項 | | Parking: Garage 駐車場:車庫 | Company profile 会社概要 | | <Mediation> governor of Osaka (3) No. 049266 (Ltd.) House Create Yubinbango571-0039 Osaka Prefecture Kadoma Hayami-cho 9-17 <仲介>大阪府知事(3)第049266号(株)ハウスクリエイト〒571-0039 大阪府門真市速見町9-17 |
 Local appearance photo
現地外観写真
 Kitchen
キッチン
Floor plan間取り図  36,800,000 yen, 4LDK, Land area 58.84 sq m , Building area 113.43 sq m
3680万円、4LDK、土地面積58.84m2、建物面積113.43m2
 Living
リビング
 Bathroom
浴室
 Kitchen
キッチン
 Non-living room
リビング以外の居室
 Wash basin, toilet
洗面台・洗面所
 Receipt
収納
 Toilet
トイレ
 Balcony
バルコニー
Location
|