New Homes » Kansai » Osaka prefecture » Higashiyodogawa District


Osaka-shi, Osaka Higashiyodogawa Ward
Hankyu Senri Line "Kunijima" walk 5 minutes
Completely free plan houses a high-quality specifications of the limited 6 compartment as standard equipment. New condominium start! The life of the room like no other in the rooftop garden with housing.
Adopted aqua form, which boasts a high-gas-tight high thermal insulation. Ensure the room temperature which is not affected by the Japan of four seasons in the W barrier method! The other which can be chosen from the water heater system, "Eco Cute", "Eco-Jaws", Nice point is also standard equipped with the popularity of floor heating.
Features pickup
Solar power system / Airtight high insulated houses / Parking two Allowed / 2 along the line more accessible / It is close to Tennis Court / It is close to the city / System kitchen / Bathroom Dryer / Yang per good / All room storage / Flat to the station / A quiet residential area / LDK15 tatami mats or more / Corner lot / Japanese-style room / Washbasin with shower / Face-to-face kitchen / Toilet 2 places / Bathroom 1 tsubo or more / Double-glazing / The window in the bathroom / TV monitor interphone / IH cooking heater / Dish washing dryer / Three-story or more / All-electric / City gas / roof balcony / Flat terrain / Floor heating / rooftop
Event information
Local tours (Please be sure to ask in advance) schedule / Every Saturday, Sunday and public holidays time / 10:00 ~ On the contact us at 18 o'clock phone, By all means, please visitors ☆
Price
25,800,000 yen ~ 29,800,000 yen
Floor plan
4LDK
Units sold
6 units
Total units
6 units
Land area
58.71 sq m ~ 72.37 sq m (measured)
Building area
80 sq m ~ 112.6 sq m (measured)
Completion date
5 months after the contract
Address
Osaka-shi, Osaka Higashiyodogawa Ward Kunijima 3
Traffic
Hankyu Senri Line "Kunijima" walk 5 minutes
Hankyu Kyoto Line "Sozen-ji Temple" walk 7 minutes
Hankyu Kyoto Line "Awaji" walk 12 minutes
Related links
[Related Sites of this company]
Person in charge
Rep Heita
Contact
(Ltd.) Seven Estate TEL: 0120-071377 [Toll free] Please contact the "saw SUUMO (Sumo)"
Building coverage, floor area ratio
Building coverage: 80%, Volume ratio: 200%
Time residents
5 months after the contract
Land of the right form
Ownership
Structure and method of construction
Wooden three-story (conventional method)
Use district
Unspecified
Land category
Residential land
Overview and notices
Contact: Heita, Building confirmation number: No. ONEX Ken確 1200701
Company profile
<Mediation> governor of Osaka Prefecture (1) No. 056071 (Ltd.) Seven Estate Yubinbango540-0029, Chuo-ku, Osaka-shi Honmachibashi 2-23


Rendering (appearance)

Rendering (appearance). Among the modern exterior design, modern ・ stylish ・ Fun making up in your sense, such as simple is also the best part of the free plan.
Among the modern exterior design, modern ・ stylish ・ Fun making up in your sense, such as simple is also the best part of the free plan.

Garden

Garden. Enjoy a hobby, Enjoy your friends and barbecue, Charming rooftop garden that now up to the different life style is a plus.
Enjoy a hobby, Enjoy your friends and barbecue, Charming rooftop garden that now up to the different life style is a plus.

Living

Living. A temporary family gatherings in the large living. Joinery and flooring a variety of color ・ You can choose from design. (Construction Case Study)
A temporary family gatherings in the large living. Joinery and flooring a variety of color ・ You can choose from design. (Construction Case Study)

Other

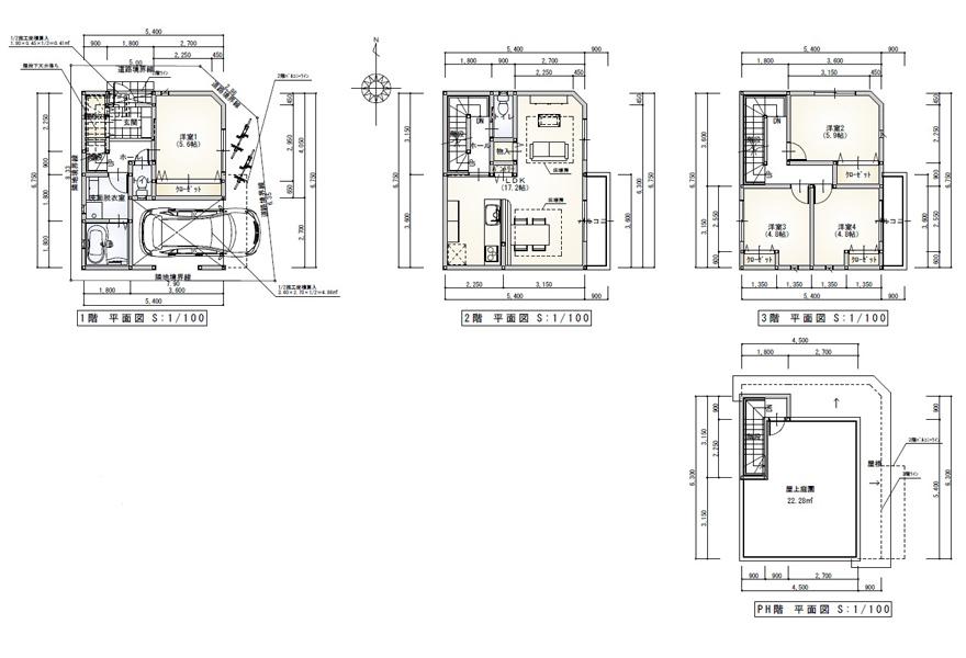
Other. No. 5 place reference Floor Plan ☆ It is on the second floor of 17.2 quires living. 1st floor, Each is on the third floor 5.6 Pledge ・ 5.9 Pledge ・ 4.8 Pledge is 2 rooms.
No. 5 place reference Floor Plan ☆ It is on the second floor of 17.2 quires living. 1st floor, Each is on the third floor 5.6 Pledge ・ 5.9 Pledge ・ 4.8 Pledge is 2 rooms.

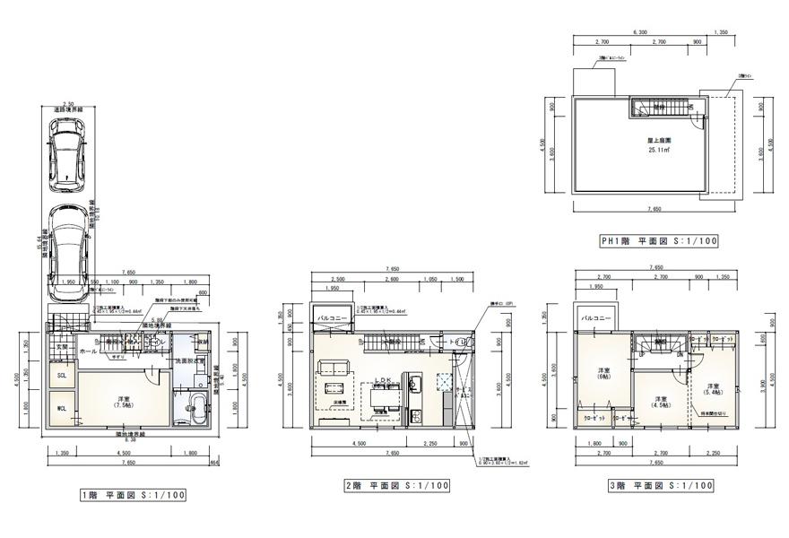
Other. No. 4 place reference Floor Plan ☆ Living space on the second floor, And the combined on the first floor and the third floor 4 room. Equipped with a large closet in each room.
No. 4 place reference Floor Plan ☆ Living space on the second floor, And the combined on the first floor and the third floor 4 room. Equipped with a large closet in each room.

Kitchen

Kitchen. If face-to-face kitchen, Firmly check how the child. You can also enjoy dishes making while watching TV. (Construction Case Study)
If face-to-face kitchen, Firmly check how the child. You can also enjoy dishes making while watching TV. (Construction Case Study)

Bathroom

Bathroom. Spacious adopted 1 pyeong type bath to heal daily fatigue. Also you can choose such as color and tub in the form of a panel. (Construction Case Study)
Spacious adopted 1 pyeong type bath to heal daily fatigue. Also you can choose such as color and tub in the form of a panel. (Construction Case Study)

Non-living room

Non-living room. Open loft is also possible in the standard. (Construction Case Study)
Open loft is also possible in the standard. (Construction Case Study)

Non-living room. The plan by all households free design, Construction of free space can also be. (Construction Case Study)
The plan by all households free design, Construction of free space can also be. (Construction Case Study)

Other Equipment

Other Equipment. To create a thin water molecules film on the outer wall surface captures the water molecules in the air, The substance serving as dirt in the original and deposited on the water molecules film. If it rains, Dirt are washed away with rain, Outer wall is always refreshing. Persisting the beauty of the house in the rain of force.
To create a thin water molecules film on the outer wall surface captures the water molecules in the air, The substance serving as dirt in the original and deposited on the water molecules film. If it rains, Dirt are washed away with rain, Outer wall is always refreshing. Persisting the beauty of the house in the rain of force.

Other Equipment. Environmentally friendly insulation material to be foamed by the force of the water "aqua foam", Greatly up the air-tightness in close contact with the pillars and beams for swell in the field, Heat, Achieve a barrier-free temperature to maintain the same kind of room temperature in any room house to shut off the cold. You can also save energy costs.
Environmentally friendly insulation material to be foamed by the force of the water "aqua foam", Greatly up the air-tightness in close contact with the pillars and beams for swell in the field, Heat, Achieve a barrier-free temperature to maintain the same kind of room temperature in any room house to shut off the cold. You can also save energy costs.

Other Equipment. Bulge with water, Insulation 99 percent could be in the air roof in the "Aqua Form" ・ wall ・ Whole insulating the entire floor of the building.
Bulge with water, Insulation 99 percent could be in the air roof in the "Aqua Form" ・ wall ・ Whole insulating the entire floor of the building.

Other Equipment. High efficiency, Energy saving & economical, Environmentally friendly, Furthermore gas prices also deals Osaka Gas, Eco Jaws.
High efficiency, Energy saving & economical, Environmentally friendly, Furthermore gas prices also deals Osaka Gas, Eco Jaws.

Other Equipment. By using the novopanSTPII, You can get a higher seismic resistance. Also, If you are using a water-resistant adhesive having high, Strongly to rain leakage because it is a strong structure in water, It boasts a high water performance.
By using the novopanSTPII, You can get a higher seismic resistance. Also, If you are using a water-resistant adhesive having high, Strongly to rain leakage because it is a strong structure in water, It boasts a high water performance.

Station

station. Hankyu Senri Line 400m until Kunijima Station
Hankyu Senri Line 400m until Kunijima Station

Local photos, including front road

Local photos, including front road. Per yang is good 6 compartment.
Per yang is good 6 compartment.



Location