New Homes » Kansai » Osaka prefecture » Nishinari


Osaka-shi, Osaka nishinari
Subway Tanimachi Line "Abeno" walk 10 minutes
All three compartment The remaining 1 compartment Attached to the vacant house, Immediate Available. 4LDK garage three parking Garden
■ Housing loan, Monthly payment, please contact us. Monthly payment 82,548 yen 35 years 31,800,000 yen borrowing ■ After-sales service enhancement After purchase, Half a year inspection After one year inspection After two year inspection 10-year warranty Ground 10-year warranty ■ Business owner One construction Co., Ltd. Iida Group Holdings, the First Section of the Tokyo Stock Exchange listed company ■ Car three PARKING ■ Land with 38 square meters ■ Building 31 square meters ■ Within walking distance Kyuzu Mall Abenobashi Terminal Building within walking distance ■ Subway Tanimachi Line "Abeno Station" a 10-minute walk ■ Subway Sakaisuji Line "Tengachaya Station" a 10-minute walk ■ Subway Yotsubashi line "Hanazonocho" station walk 13 minutes
Features pickup
Measures to conserve energy / Corresponding to the flat-35S / Pre-ground survey / Parking three or more possible / Immediate Available / 2 along the line more accessible / Energy-saving water heaters / Super close / It is close to the city / System kitchen / Bathroom Dryer / Yang per good / All room storage / Flat to the station / A quiet residential area / LDK15 tatami mats or more / Corner lot / Japanese-style room / Starting station / garden / Washbasin with shower / Face-to-face kitchen / 3 face lighting / Barrier-free / Toilet 2 places / Bathroom 1 tsubo or more / 2-story / South balcony / Double-glazing / Warm water washing toilet seat / Underfloor Storage / The window in the bathroom / TV monitor interphone / Urban neighborhood / Ventilation good / All living room flooring / All room 6 tatami mats or more / Water filter / City gas / All rooms are two-sided lighting / A large gap between the neighboring house / Flat terrain
Event information
Open House (Please make a reservation beforehand) schedule / Every Saturday, Sunday and public holidays time / 11:00 ~ 16:30 remaining 1 compartment It also picks up your home.
Price
31,800,000 yen
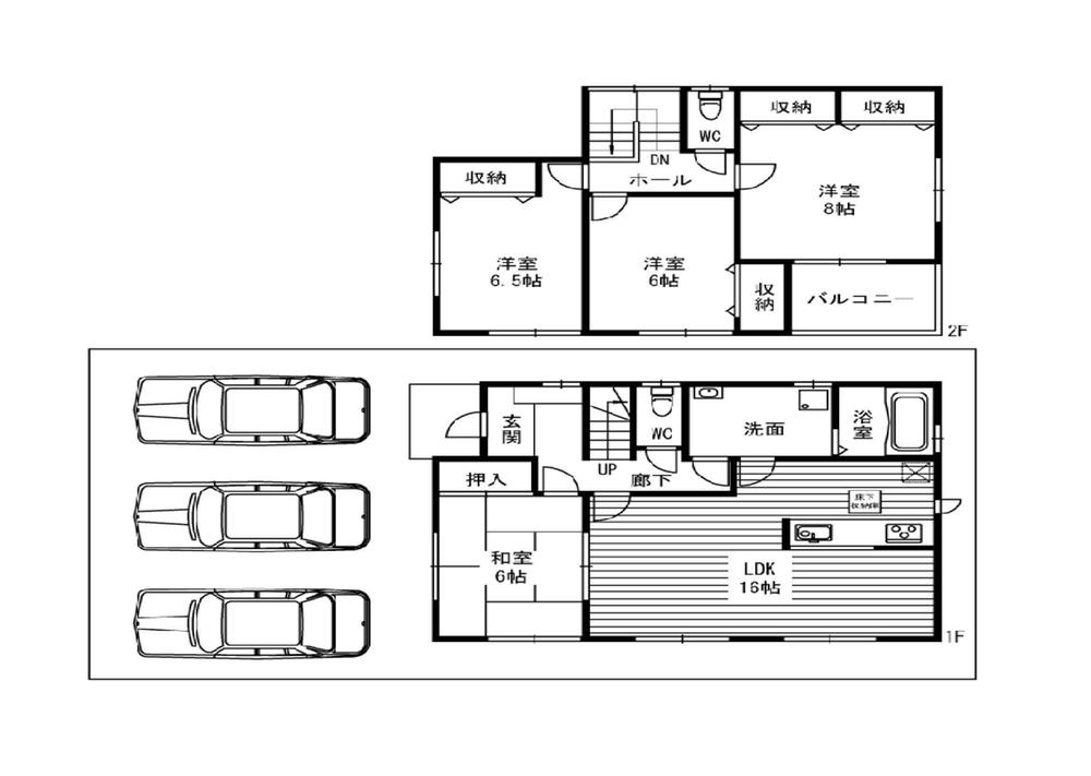
Floor plan
4LDK
Units sold
1 units
Total units
3 units
Land area
128.89 sq m (38.98 tsubo) (Registration)
Building area
104.33 sq m (31.55 tsubo) (Registration)
Driveway burden-road
300
Completion date
2013 in early October
Address
Osaka-shi, Osaka nishinari Tengachayahigashi 2-1-23
Traffic
Subway Tanimachi Line "Abeno" walk 10 minutes
Subway Yotsubashi Line "Hanazonocho" walk 13 minutes
Subway Sakaisuji Line "Tengachaya" walk 10 minutes
Contact
KEN CORPORATION (Ltd.) TEL: 0120-057210 [Toll free] Please contact the "saw SUUMO (Sumo)"
Building coverage, floor area ratio
80
Time residents
Immediate available
Land of the right form
Ownership
Structure and method of construction
Wooden 2-story (framing method)
Construction
One construction Co., Ltd.
Use district
One dwelling
Land category
Residential land
Other limitations
Quasi-fire zones
Overview and notices
Building confirmation number: No. Trust 13-0455
Company profile
<Marketing alliance (agency)> governor of Osaka (2) No. 052714 KEN CORPORATION (Ltd.) Yubinbango542-0063 Chuo-ku, Osaka-shi, Dongping 1-4-10


Sale already cityscape photo

Sale already cityscape photo. All three compartment The remaining 1 compartment Newly built single-family Finished already
All three compartment The remaining 1 compartment Newly built single-family Finished already

Sale already cityscape photo. All three compartment The remaining 1 compartment
All three compartment The remaining 1 compartment

Other

Other. No. 2 place Floor plan Total floor 104 sq m
No. 2 place Floor plan Total floor 104 sq m

Local photos, including front road
Local photos, including front road

Local appearance photo

Local appearance photo. Car three PARKING
Car three PARKING

Kitchen

Kitchen. Face-to-face kitchen
Face-to-face kitchen

Station

station. Subway Sakaisuji 800m until Tengachaya Station Nankai Koya Line Directly linked Tengachaya Station
Subway Sakaisuji 800m until Tengachaya Station Nankai Koya Line Directly linked Tengachaya Station

Wash basin, toilet
Wash basin, toilet

Non-living room
Non-living room

station. Subway Yotsubashi buckwheat also 1200m super Izumiya immediately to bridge wire
Subway Yotsubashi buckwheat also 1200m super Izumiya immediately to bridge wire

Bathroom
Bathroom

Living

Living. Face-to-face kitchen
Face-to-face kitchen

Primary school

Primary school. Tengachaya until elementary school 500m
Tengachaya until elementary school 500m

Bathroom
Bathroom

Kitchen
Kitchen

Kindergarten ・ Nursery

kindergarten ・ Nursery. Tengachaya 480m to kindergarten
Tengachaya 480m to kindergarten

Balcony
Balcony

Non-living room
Non-living room

Shopping centre

Shopping centre. Until Kyuzu mall 1000m Abeno Kyuzu 13-minute walk from the Mall
Until Kyuzu mall 1000m Abeno Kyuzu 13-minute walk from the Mall

Non-living room
Non-living room

Non-living room
Non-living room

Station

station. Subway Tanimachi Line Abeno 10-minute walk up to 900m Abeno Station Station
Subway Tanimachi Line Abeno 10-minute walk up to 900m Abeno Station Station



Location