New Homes » Kansai » Osaka prefecture » Taisho-ku


Osaka-shi, Osaka Taisho Ward
Subway Nagahori Tsurumi-ryokuchi Line "Taisho" walk 3 minutes
Within 5 minutes from each line "Taisho Station". Since the station proximity, Also has very substantial surrounding facilities. There are parking two parking possible issue areas. Designer houses all mansion free design
Close to Taisho Station, Access to each district is also very convenient location. Around is very rich, There is nothing to trouble in the living area. The building itself also has a commitment to the appearance and equipment, etc., While a designer house, Listen to your voice is both to create up to go free design of the property. Nearby there is also a "Kyocera Dome", There is also also spread to enjoy the holiday various events.
Features pickup
Corresponding to the flat-35S / Year Available / Parking two Allowed / 2 along the line more accessible / LDK20 tatami mats or more / Super close / It is close to the city / Facing south / System kitchen / Bathroom Dryer / All room storage / Flat to the station / Siemens south road / Mist sauna / Washbasin with shower / Face-to-face kitchen / Security enhancement / Toilet 2 places / Bathroom 1 tsubo or more / 2 or more sides balcony / South balcony / Double-glazing / Otobasu / Warm water washing toilet seat / TV with bathroom / The window in the bathroom / TV monitor interphone / All living room flooring / Dish washing dryer / Walk-in closet / Water filter / Three-story or more / City gas / roof balcony / Attic storage / Floor heating
Event information
Model house (Please be sure to ask in advance) schedule / Now open
Price
32,800,000 yen ~ 38,600,000 yen
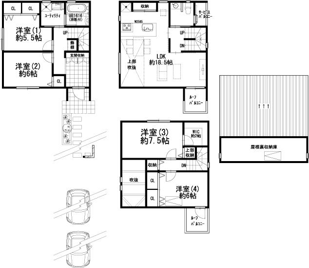
Floor plan
4LDK
Units sold
5 units
Total units
5 units
Land area
59.22 sq m ~ 102.46 sq m (17.91 tsubo ~ 30.99 square meters)
Building area
108.01 sq m ~ 119.26 sq m (32.67 tsubo ~ 36.07 square meters)
Driveway burden-road
Road width: 4m, Asphaltic pavement
Completion date
6 months after the contract
Address
Osaka-shi, Osaka Taisho Ward Sangen'yanishi 1
Traffic
Subway Nagahori Tsurumi-ryokuchi Line "Taisho" walk 3 minutes
JR Osaka Loop Line "Taisho" walk 4 minutes
Hanshin Namba Line "before the dome" walk 9 minutes
Related links
[Related Sites of this company]
Person in charge
[Regarding this property.] Within 5 minutes from each line "Taisho Station". Since the station proximity, Also has very substantial surrounding facilities. There are parking two parking possible issue areas.
Contact
La beads Home for Sale (Ltd.) TEL: 0800-603-8229 [Toll free] mobile phone ・ Also available from PHS
Caller ID is not notified
Please contact the "saw SUUMO (Sumo)"
If it does not lead, If the real estate company
Most price range
33 million yen (3 units)
Building coverage, floor area ratio
Kenpei rate: 80%, Volume ratio: 240%
Time residents
6 months after the contract
Land of the right form
Ownership
Structure and method of construction
Wooden Galvalume steel Itabuki three-story (framing method)
Use district
Two dwellings
Land category
Residential land
Other limitations
Quasi-fire zones
Overview and notices
Building confirmation number: KKK
Company profile
<Mediation> governor of Osaka (2) Article 052 746 No. La beads Home Sales Co., Ltd. Yubinbango530-0041 Osaka-shi, Osaka, Kita-ku, Tenjinbashi 1-15-4 RhbL Tenjin third floor


Local appearance photo

Local appearance photo. One example same specifications
One example same specifications

Other

Other. Plan an example Free design
Plan an example Free design

Same specifications photos (living)

Same specifications photos (living). One example same specifications
One example same specifications

Non-living room

Non-living room. One example same specifications
One example same specifications

Entrance

Entrance. One example same specifications
One example same specifications

Toilet

Toilet. One example same specifications
One example same specifications

Local photos, including front road

Local photos, including front road. Freedom can be designed. Current situation vacant lot
Freedom can be designed. Current situation vacant lot

Drug store

Drug store. Matsumotokiyoshi 246m to Taisho Station shop
Matsumotokiyoshi 246m to Taisho Station shop

The entire compartment Figure
The entire compartment Figure

Other

Other. Plan an example Free design
Plan an example Free design

Non-living room

Non-living room. One example same specifications
One example same specifications

Other

Other. Plan an example Two parking plan Free design
Plan an example Two parking plan Free design

Other. Plan an example Two parking plan Free design
Plan an example Two parking plan Free design

Other. Plan an example Free design
Plan an example Free design

Other. Fixtures shelf One example same specifications
Fixtures shelf One example same specifications



Location