New Homes » Kansai » Osaka prefecture » Yodogawa
 
| | Osaka-shi, Osaka Yodogawa 大阪府大阪市淀川区 |
| Hankyu Kobe Line "Kanzaki" walk 6 minutes 阪急神戸線「神崎川」歩6分 |
| The airtight high insulation specification was standard equipment "ever place series". 高気密高断熱仕様を標準装備した「ever placeシリーズ」。 |
| Possible move before tax increase. While a high-performance home of deals if pains buy. Hankyu Kobe Line "Kanzaki" station Walk about 6 minutes. Sunny subdivision. Limit of 3 Station to Umeda 1 subdivisions. 増税前に入居可能。せっかく買うなら高性能住宅をお得なうちに。阪急神戸線「神崎川」駅 徒歩約6分。日当たり良好な分譲地。梅田まで3駅の限定1区画分譲地。 |
Features pickup 特徴ピックアップ | | Airtight high insulated houses / Energy-saving water heaters / Super close / It is close to the city / System kitchen / Bathroom Dryer / Yang per good / All room storage / Flat to the station / A quiet residential area / LDK15 tatami mats or more / Washbasin with shower / Wide balcony / Toilet 2 places / Double-glazing / Zenshitsuminami direction / Warm water washing toilet seat / Underfloor Storage / The window in the bathroom / TV monitor interphone / Urban neighborhood / Built garage / Dish washing dryer / Three-story or more / Living stairs 高気密高断熱住宅 /省エネ給湯器 /スーパーが近い /市街地が近い /システムキッチン /浴室乾燥機 /陽当り良好 /全居室収納 /駅まで平坦 /閑静な住宅地 /LDK15畳以上 /シャワー付洗面台 /ワイドバルコニー /トイレ2ヶ所 /複層ガラス /全室南向き /温水洗浄便座 /床下収納 /浴室に窓 /TVモニタ付インターホン /都市近郊 /ビルトガレージ /食器洗乾燥機 /3階建以上 /リビング階段 | Event information イベント情報 | | Local guide Board (Please be sure to ask in advance) schedule / Every Saturday, Sunday and public holidays time / 10:00 ~ 18:00 local briefing session held in! On the contact us by phone, We are your visitors wait for the whole family like. 現地案内会(事前に必ずお問い合わせください)日程/毎週土日祝時間/10:00 ~ 18:00現地説明会開催中!お電話にてお問い合わせの上、御家族様そろってのご来場おまちしております。 | Price 価格 | | 27,800,000 yen 2780万円 | Floor plan 間取り | | 4LDK 4LDK | Units sold 販売戸数 | | 1 units 1戸 | Total units 総戸数 | | 1 units 1戸 | Land area 土地面積 | | 60.92 sq m (measured) 60.92m2(実測) | Building area 建物面積 | | 110.92 sq m 110.92m2 | Driveway burden-road 私道負担・道路 | | Nothing 無 | Completion date 完成時期(築年月) | | July 2013 2013年7月 | Address 住所 | | Osaka-shi, Osaka Yodogawa Mitsuyaminami 1 大阪府大阪市淀川区三津屋南1 | Traffic 交通 | | Hankyu Kobe Line "Kanzaki" walk 6 minutes Hankyu Kobe Line "thirteen" walk 15 minutes Hankyu Takarazuka Line "Three Kingdoms" walk 20 minutes 阪急神戸線「神崎川」歩6分 阪急神戸線「十三」歩15分 阪急宝塚線「三国」歩20分
| Related links 関連リンク | | [Related Sites of this company] 【この会社の関連サイト】 | Person in charge 担当者より | | Person in charge of the mountains 担当者山中 | Contact お問い合せ先 | | (Ltd.) Seven Estate TEL: 0120-071377 [Toll free] Please contact the "saw SUUMO (Sumo)" (株)セブンエステートTEL:0120-071377【通話料無料】「SUUMO(スーモ)を見た」と問い合わせください | Building coverage, floor area ratio 建ぺい率・容積率 | | 80% ・ 200% 80%・200% | Time residents 入居時期 | | Immediate available 即入居可 | Land of the right form 土地の権利形態 | | Ownership 所有権 | Structure and method of construction 構造・工法 | | Wooden three-story (framing method) 木造3階建(軸組工法) | Overview and notices その他概要・特記事項 | | Contact: Yamanaka, Building confirmation number: first ONEX Ken確 Osaka No. 1300051, Parking: Garage 担当者:山中、建築確認番号:第ONEX建確大阪1300051号、駐車場:車庫 | Company profile 会社概要 | | <Mediation> governor of Osaka Prefecture (1) No. 056071 (Ltd.) Seven Estate Yubinbango540-0029, Chuo-ku, Osaka-shi Honmachibashi 2-23 <仲介>大阪府知事(1)第056071号(株)セブンエステート〒540-0029 大阪府大阪市中央区本町橋2-23 |
Local appearance photo現地外観写真  In a quiet residential area, ever place series of simple modern look shine. Good access to Umeda, It is a good location for property.
閑静な住宅街に、シンプルモダンな外観が映えるever placeシリーズ。梅田までのアクセスもいい、好立地な物件です。
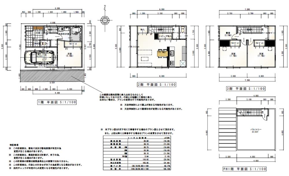
Floor plan間取り図  27,800,000 yen, 4LDK, Land area 60.92 sq m , Building area 110.92 sq m popular rooftop garden with housing. Happy with study is to your father 3LDK + S Floor type
2780万円、4LDK、土地面積60.92m2、建物面積110.92m2 人気の屋上庭園付き住宅。 お父様には嬉しい書斎付き 3LDK+S間取りタイプ
Otherその他  Family only of private garden on the roof. Enjoy the moment of family reunion in the family everyone.
屋上には家族だけのプライベートガーデン。家族団らんのひと時を家族皆様で楽しんで下さい。
Livingリビング  In LDK echoing the laughter of family, Relax ・ ・ ・ .
家族の笑い声が響くLDKで、くつろぎのひとときを・・・。
Kitchenキッチン  While having a conversation face-to-face kitchen, Guests can enjoy making dishes.
対面キッチンで会話をしながら、お料理作りを楽しめます。
Non-living roomリビング以外の居室  Word over lobe of the excellent storage capacity.
収納力バツグンのワードーローブ。
Bathroom浴室  Relax time, In the bathroom of the spacious size. (Construction Case Study)
リラックスタイムは、ゆったりサイズのバスルームで。(施工事例)
Garden庭  Rooftop garden where you can enjoy anytime. Tea parties and barbecues and invite your friends. You can also enjoy, such as watching movies on the one hand you a drink.
時間を選ばず楽しめる屋上庭園。お友達を招待してのティーパーティーやバーベキュー。お酒を片手に映画鑑賞なども楽しめます。
Construction ・ Construction method ・ specification構造・工法・仕様  Insulation and heat shield in the heat shield method in the aqua form.
アクアフォームで断熱しヒートシールド工法で遮熱。
 Innovative thermal insulation material was born from water. Aqua form Ya between the pillars by fire in the field use the water, Exert more than 1.5 times of the insulating effect of the glass wool can be also filled in the details. Preventing condensation of the skeleton body for also not to new moisture in the internal moisture permeability is also low thermal insulation material, Enhancing the durability of the building itself.
水から生まれた画期的な断熱材。アクアフォームは水を使い現場で発砲させることにより柱と柱の間や、細かい部分にも充填することができグラスウールの1.5倍以上の断熱効果を発揮。また透湿性も低く断熱材内部に湿気を新入させないため躯体内の結露を防止、建物自体の耐久性を高める。
Other Equipmentその他設備  Sheet floor with a special coating on the surface. Itsuma also keep the beauty, Woodgrain floor that combines a strong beauty and strength to scratches and dirt. Available in Eastern oak stairs using a solid laminated wood to the stairs.
表面に特殊コーティングを施したシートフロア。いつまも美しさを保ち、傷や汚れに強い美しさと強さを兼ね備えた木目調フロア。階段には無垢集成材なを使用したイースタンオーク階段をご用意。
 LIXIL made unit bus in 2013
2013年のLIXIL製ユニットバス
 Functionality ・ Storage capacity ・ Design.
機能性・収納力・デザイン性。
Location
|