New Homes » Kansai » Osaka prefecture » Yodogawa


Osaka-shi, Osaka Yodogawa
Hankyu Takarazuka Line "Three Kingdoms" walk 9 minutes
"Live in the city," Umeda up to 17 minutes at the door to door. Hankyu "Three Kingdoms" station walk 9 minutes, Around traffic less quiet living environment. All 22 units completed memorial solar power generation equipment house than 31,900,000 yen! To the local sales office weekend
■ Solar power generation system as standard equipment Solar power system, Cute, LED lighting, Saving energy costs per month up to 16435 yen in the electric car for the external outlet standard solar power + all-electric. (LIXIL sunlight introduction Shumireshi Estimated at tion) ■ Osaka city planning business Mikunihigashi district land readjustment project within the area (FY 33 years scheduled to be completed) Spread the way, Increases green ・ ・ ・ ・ Living open. Nishimikuni comfortable ・ It will evolve to a convenient town. ■ Convenient location of 2way access available, Hankyu 9-minute walk to the "Three Kingdoms", Subway "Higashimikuni" 13 minutes to the station
Local guide map
Local guide map
Features pickup
Corresponding to the flat-35S / Solar power system / Year Available / Immediate Available / 2 along the line more accessible / LDK18 tatami mats or more / Energy-saving water heaters / Super close / It is close to the city / Facing south / System kitchen / Bathroom Dryer / Yang per good / All room storage / Flat to the station / Siemens south road / A quiet residential area / Around traffic fewer / Corner lot / Shaping land / Face-to-face kitchen / Wide balcony / Barrier-free / Bathroom 1 tsubo or more / 2 or more sides balcony / South balcony / Double-glazing / Warm water washing toilet seat / loft / Atrium / TV monitor interphone / Leafy residential area / Ventilation good / IH cooking heater / Dish washing dryer / Or more ceiling height 2.5m / Water filter / Three-story or more / Living stairs / All-electric / All rooms are two-sided lighting / Flat terrain / Development subdivision in / Readjustment land within
Event information
Local tours (please visitors to direct local) schedule / Every Saturday, Sunday and public holidays time / 10:00 ~ 17:00 Sat ・ Day ・ Congratulation building sneak preview held in!
Property name
Anessis Nishimikuni Smart Town
Price
31,900,000 yen ~ 39,500,000 yen
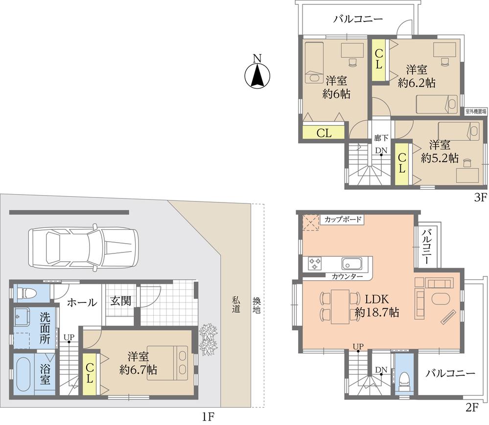
Floor plan
4LDK
Units sold
14 units
Total units
22 houses
Land area
65.43 sq m ~ 77.63 sq m (registration)
Building area
110.56 sq m ~ 124.49 sq m (measured)
Driveway burden-road
Driveway area 5.09 sq m ~ 30.43 sq m , Replotting area 0.03 sq m ~ 19.06 sq m
Completion date
August 9, 2013
Address
Osaka-shi, Osaka Yodogawa Nishimikuni 2-17
Traffic
Hankyu Takarazuka Line "Three Kingdoms" walk 9 minutes
Subway Midosuji Line "Higashimikuni" walk 13 minutes
Related links
[Related Sites of this company]
Contact
Ltd. Apokku TEL: 0120-11-2326 [Toll free] (mobile phone ・ Also available from PHS. ) Please contact the "saw SUUMO (Sumo)"
Building coverage, floor area ratio
Building coverage 80%, Volume rate of 300%
Time residents
Immediate available
Land of the right form
Ownership
Use district
One dwelling
Land category
Residential land
Overview and notices
Building confirmation number: No. Trust 12-5072
Company profile
<Seller> Minister of Land, Infrastructure and Transport (3) No. 005672 (Ltd.) Apokku Yubinbango532-0002 Osaka Yodogawa Higashimikuni 2-32-13


Floor plan

Floor plan. Anessis Nishimikuni Smart Town No. 6 area of ​​sunlight standard equipment
Anessis Nishimikuni Smart Town No. 6 area of ​​sunlight standard equipment

Local appearance photo

Local appearance photo. Anessis Nishimikuni Smart Town district average finished H25.8.30 shooting
Anessis Nishimikuni Smart Town district average finished H25.8.30 shooting

Entrance

Entrance. The bright and spacious entrance hall -10 No. land
The bright and spacious entrance hall -10 No. land

Entrance. Unison Vegas (tile) them attached grade a sense of entrance -1 No. land
Unison Vegas (tile) them attached grade a sense of entrance -1 No. land

Kitchen

Kitchen. Face-to-face counter kitchen the conversation is lively
Face-to-face counter kitchen the conversation is lively

Living

Living. LDK-10 issue areas, Living in the stairs, Atrium with a sense of openness.
LDK-10 issue areas, Living in the stairs, Atrium with a sense of openness.

Living. High ceiling height in the living room is full of 3.5m so airy.
High ceiling height in the living room is full of 3.5m so airy.

Kitchen

Kitchen. With system kitchen cabinet -6 No. land. Since the cupboard is with with, Kitchen around also neat storage.
With system kitchen cabinet -6 No. land. Since the cupboard is with with, Kitchen around also neat storage.

Living

Living. Large space that leads to the second living from living in the skeleton stairs
Large space that leads to the second living from living in the skeleton stairs

Other

Other. Various how to use, Second living -10 No. land
Various how to use, Second living -10 No. land

Other introspection

Other introspection. Bright design of a window of the vertical style, Interior
Bright design of a window of the vertical style, Interior

Other

Other. Can save electricity bill because solar power + eco specification housing, Also extra electricity you can sell. -LIXIL
Can save electricity bill because solar power + eco specification housing, Also extra electricity you can sell. -LIXIL

Other. Solar power system
Solar power system

Other Equipment

Other Equipment. Smart Food / Panasonic
Smart Food / Panasonic

Construction ・ Construction method ・ specification

Construction ・ Construction method ・ specification. And heating and cooling effect is up is also effective in power saving of summer and winter.
And heating and cooling effect is up is also effective in power saving of summer and winter.

Construction ・ Construction method ・ specification. Easy care IH cooking heater
Easy care IH cooking heater

Rendering (appearance)

Rendering (appearance). Installed in all of the dwelling unit is solar power
Installed in all of the dwelling unit is solar power

Local appearance photo

Local appearance photo. Local (July 2013) shooting 15, No. 16 place
Local (July 2013) shooting 15, No. 16 place

Other Equipment

Other Equipment. Cococino New S-Class 1616 size
Cococino New S-Class 1616 size

Local guide map

Local guide map. Hankyu Takarazuka Line "Three Kingdoms" station walk 9 minutes, Subway Midosuji Line "Higashimikuni" station walk 13 minutes Guest parking equipped
Hankyu Takarazuka Line "Three Kingdoms" station walk 9 minutes, Subway Midosuji Line "Higashimikuni" station walk 13 minutes Guest parking equipped

Local guide map. access map
access map

Access view

Access view. Access road from the newly established north road (readjustment)
Access road from the newly established north road (readjustment)

Floor plan

Floor plan. Anessis Nishimikuni Smart Town No. 6 area of ​​sunlight standard equipment
Anessis Nishimikuni Smart Town No. 6 area of ​​sunlight standard equipment

Floor plan. Anessis Nishimikuni Smart Town No. 6 area of ​​sunlight standard equipment
Anessis Nishimikuni Smart Town No. 6 area of ​​sunlight standard equipment

Floor plan. Anessis Nishimikuni Smart Town No. 6 area of ​​sunlight standard equipment
Anessis Nishimikuni Smart Town No. 6 area of ​​sunlight standard equipment

Floor plan. (No. 1 point), Price 37.5 million yen, 4LDK, Land area 67.38 sq m , Building area 113.95 sq m
(No. 1 point), Price 37.5 million yen, 4LDK, Land area 67.38 sq m , Building area 113.95 sq m

Floor plan. Anessis Nishimikuni Smart Town No. 6 area of ​​sunlight standard equipment
Anessis Nishimikuni Smart Town No. 6 area of ​​sunlight standard equipment

Floor plan. Anessis Nishimikuni Smart Town No. 6 area of ​​sunlight standard equipment
Anessis Nishimikuni Smart Town No. 6 area of ​​sunlight standard equipment

Floor plan. Anessis Nishimikuni Smart Town No. 6 area of ​​sunlight standard equipment
Anessis Nishimikuni Smart Town No. 6 area of ​​sunlight standard equipment

Floor plan. Anessis Nishimikuni Smart Town No. 6 area of ​​sunlight standard equipment
Anessis Nishimikuni Smart Town No. 6 area of ​​sunlight standard equipment

Station

station. Hankyu Takarazuka Line "Three Kingdoms" was renewed in the 710m station redevelopment to the station Hankyu Mikuni Station, Maintained Station Rotary, Lotteria is in the station building, Gust, Enhancement also eating and drinking facilities, including a coffee Museum.
Hankyu Takarazuka Line "Three Kingdoms" was renewed in the 710m station redevelopment to the station Hankyu Mikuni Station, Maintained Station Rotary, Lotteria is in the station building, Gust, Enhancement also eating and drinking facilities, including a coffee Museum.

Supermarket

Supermarket. Marunaka 920m fresh fresh rich to, Hypermarket was new - a 12-minute walk
Marunaka 920m fresh fresh rich to, Hypermarket was new - a 12-minute walk

Junior high school

Junior high school. 120m to Mikuni junior high school
120m to Mikuni junior high school

Other Equipment

Other Equipment. LivingStation New V-style Type I / Panasonic
LivingStation New V-style Type I / Panasonic

Other Equipment. It prevents the dirt with a fluorine-based special coating, It kept clean and beautifully made to clean easy to bath of water outlet.
It prevents the dirt with a fluorine-based special coating, It kept clean and beautifully made to clean easy to bath of water outlet.

Other Equipment. Electric bill zero because the mirror basin dressing do not use the heater, Forgetting to turn off the worry unnecessary. Cloudy difficult to finish of the water-absorbing coating
Electric bill zero because the mirror basin dressing do not use the heater, Forgetting to turn off the worry unnecessary. Cloudy difficult to finish of the water-absorbing coating

Other Equipment. Adopt a convenient locking mechanism with outdoor electrical outlet to charge the electric car on the wall of the parking lot / Panasonic
Adopt a convenient locking mechanism with outdoor electrical outlet to charge the electric car on the wall of the parking lot / Panasonic

The entire compartment Figure
The entire compartment Figure

Floor plan
Floor plan

Floor plan
Floor plan

Floor plan
Floor plan

Floor plan
Floor plan

Floor plan
Floor plan

Floor plan
Floor plan

Shopping centre

Shopping centre. Super Fresco Mikuni shop, which is open until 24 to 710m 1F until Vale Hankyu is, Convenient and be shopping on the way back of commuting because it is directly connected to the Mikuni Station. Drag the 2F Segami, Clinic than 3F.
Super Fresco Mikuni shop, which is open until 24 to 710m 1F until Vale Hankyu is, Convenient and be shopping on the way back of commuting because it is directly connected to the Mikuni Station. Drag the 2F Segami, Clinic than 3F.

Primary school

Primary school. Nishimikuni until elementary school 440m
Nishimikuni until elementary school 440m

Supermarket

Supermarket. Life up to 600m also abundant fresh ingredients, Convenient super to daily shopping - 8 min. Walk
Life up to 600m also abundant fresh ingredients, Convenient super to daily shopping - 8 min. Walk

Other Environmental Photo

Other Environmental Photo. Sales and restaurants of 1600m baked delicious bread to Kobeya restaurants.
Sales and restaurants of 1600m baked delicious bread to Kobeya restaurants.

Home center

Home center. 1600m interior goods to Nitori, Large store of daily necessities, etc. are complete, Reasonable price also.
1600m interior goods to Nitori, Large store of daily necessities, etc. are complete, Reasonable price also.

Hospital

Hospital. Higashiyodogawa 690m internal medicine to the hospital, Surgery, Gastroenterologist, Orthopedics, etc., General Hospital, which was rooted in the local community.
Higashiyodogawa 690m internal medicine to the hospital, Surgery, Gastroenterologist, Orthopedics, etc., General Hospital, which was rooted in the local community.



Location