New Homes » Kansai » Osaka prefecture » Sakai city north district


Sakai, Osaka, Kita-ku,
Subway Midosuji Line "Kitahanada" walk 13 minutes
Pre-ground survey ・ Building Standards Law highest grade acquisition! Convenient subway Midosuji Line to commute "Kitahanada" station walk 13 minutes! Solar panels standard installation (except No. 4 locations) south-facing balcony sunny fully-equipped comfortable space ☆
◆ ◆ Purchase with guarantee! ! ◆ ◆ Mediation and, It is a good place example you combine innovative sale method of purchase outright! 1 month ~ By providing a period of three months position, It will be sold to the general customers. If it could not be any chance sale, We will do the purchase at a price which had decided at the beginning. We especially our joy you in replacement of customers!
Features pickup
Solar power system / Pre-ground survey / Parking two Allowed / 2 along the line more accessible / Super close / It is close to the city / System kitchen / Bathroom Dryer / Yang per good / All room storage / Flat to the station / LDK15 tatami mats or more / Around traffic fewer / Or more before road 6m / Japanese-style room / Washbasin with shower / Face-to-face kitchen / Toilet 2 places / 2-story / 2 or more sides balcony / South balcony / Otobasu / Warm water washing toilet seat / Underfloor Storage / The window in the bathroom / TV monitor interphone / High-function toilet / Leafy residential area / Urban neighborhood / Ventilation good / Good view / Water filter / City gas / Maintained sidewalk
Price
25,800,000 yen ~ 29,800,000 yen
Floor plan
4LDK
Units sold
4 units
Total units
4 units
Land area
86.23 sq m ~ 110.79 sq m (26.08 tsubo ~ 33.51 tsubo) (Registration)
Building area
91.12 sq m ~ 100.44 sq m (27.56 tsubo ~ 30.38 tsubo) (Registration)
Driveway burden-road
Road width: 6.68m
Completion date
March 2014 mid-scheduled
Address
Sakai, Osaka, Kita-ku, Tokiwa-cho 3
Traffic
Subway Midosuji Line "Kitahanada" walk 13 minutes
Subway Midosuji Line "Abiko" walk 20 minutes
JR Hanwa Line "Sugimotocho" walk 25 minutes
Related links
[Related Sites of this company]
Contact
TEL: 0800-602-6616 [Toll free] mobile phone ・ Also available from PHS
Caller ID is not notified
Please contact the "saw SUUMO (Sumo)"
If it does not lead, If the real estate company
Building coverage, floor area ratio
Kenpei rate: 60%, Volume ratio: 200%
Time residents
March 2014 mid-scheduled
Land of the right form
Ownership
Use district
One dwelling
Other limitations
Quasi-fire zones
Overview and notices
Building confirmation number: 1234
Company profile
<Mediation> governor of Osaka (2) the first 053,920 No. housing network Sales Co., Ltd. Sakai Yubinbango591-8032 Sakai-shi, Osaka, Kita-ku, Mozuume cho 3-4-4


Local appearance photo

Local appearance photo. It is a quiet residential area.
It is a quiet residential area.

Local appearance photo. It is a 10-year warranty mortgage of peace of mind.
It is a 10-year warranty mortgage of peace of mind.

Local appearance photo. There complete Models House.
There complete Models House.

Floor plan

Floor plan. (No. 1 point), Price 29,800,000 yen, 4LDK, Land area 91.96 sq m , Building area 94.36 sq m
(No. 1 point), Price 29,800,000 yen, 4LDK, Land area 91.96 sq m , Building area 94.36 sq m

Local appearance photo
Local appearance photo

Local photos, including front road
Local photos, including front road

Supermarket

Supermarket. 902m until ion Sakai Kitahanada shop
902m until ion Sakai Kitahanada shop

The entire compartment Figure

The entire compartment Figure. All four compartments new subdivision start!
All four compartments new subdivision start!

Floor plan

Floor plan. (No. 2 locations), Price 28.8 million yen, 4LDK, Land area 93.43 sq m , Building area 100.44 sq m
(No. 2 locations), Price 28.8 million yen, 4LDK, Land area 93.43 sq m , Building area 100.44 sq m

Local appearance photo
Local appearance photo

Convenience store

Convenience store. 638m until or Kitahanada shop when FamilyMart
638m until or Kitahanada shop when FamilyMart

Floor plan

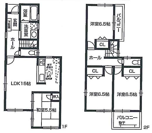
Floor plan. (No. 3 locations), Price 29,800,000 yen, 4LDK, Land area 86.23 sq m , Building area 91.12 sq m
(No. 3 locations), Price 29,800,000 yen, 4LDK, Land area 86.23 sq m , Building area 91.12 sq m

Rendering (appearance)

Rendering (appearance). (1 Building) Rendering
(1 Building) Rendering

Home center

Home center. Francfrancfranc until Kitahanada shop 978m
Francfrancfranc until Kitahanada shop 978m

Floor plan

Floor plan. (No. 4 locations), Price 25,800,000 yen, 4LDK, Land area 110.79 sq m , Building area 93.15 sq m
(No. 4 locations), Price 25,800,000 yen, 4LDK, Land area 110.79 sq m , Building area 93.15 sq m

Rendering (appearance)

Rendering (appearance). (Building 2) Rendering
(Building 2) Rendering

Kindergarten ・ Nursery

kindergarten ・ Nursery. Tokiwa 244m to nursery school
Tokiwa 244m to nursery school

Rendering (appearance)

Rendering (appearance). (3 Building) Rendering
(3 Building) Rendering

Kindergarten ・ Nursery

kindergarten ・ Nursery. 939m to Osaka City Asaka Higashi nursery
939m to Osaka City Asaka Higashi nursery

Rendering (appearance)

Rendering (appearance). (4 Building) Rendering
(4 Building) Rendering

Post office

post office. Sakai Kitahanada 922m to the post office
Sakai Kitahanada 922m to the post office



Location