New Homes » Kansai » Osaka prefecture » Sakai City Mihara Ward
 
| | Sakai, Osaka Prefecture Mihara Ward 大阪府堺市美原区 |
| Nankai Koya Line "Osakasayama" walk 26 minutes 南海高野線「大阪狭山市」歩26分 |
| South-facing per day good! Two garage Allowed Spacious balcony Flat 35s corresponding housing Front road 4.4m With EV outlet Electronic Kidoa 南向きにつき日当たり良好!ガレージ2台可 広々バルコニー フラット35s対応住宅 前面道路4.4m EVコンセント付 電子キードア |
| Corresponding to the flat-35S, Parking two Allowed, Facing south, System kitchen, Bathroom Dryer, Yang per good, All room storage, Flat to the station, Siemens south road, A quiet residential area, LDK15 tatami mats or moreese-style room, Shaping land, Washbasin with shower, Face-to-face kitchen, Barrier-free, Toilet 2 places, 2-story, Double-glazing, Underfloor Storage, The window in the bathroom, Ventilation good, All room 6 tatami mats or more, Flat terrain フラット35Sに対応、駐車2台可、南向き、システムキッチン、浴室乾燥機、陽当り良好、全居室収納、駅まで平坦、南側道路面す、閑静な住宅地、LDK15畳以上、和室、整形地、シャワー付洗面台、対面式キッチン、バリアフリー、トイレ2ヶ所、2階建、複層ガラス、床下収納、浴室に窓、通風良好、全居室6畳以上、平坦地 |
Features pickup 特徴ピックアップ | | Corresponding to the flat-35S / Parking two Allowed / Facing south / System kitchen / Bathroom Dryer / Yang per good / All room storage / Flat to the station / Siemens south road / A quiet residential area / LDK15 tatami mats or more / Japanese-style room / Shaping land / Washbasin with shower / Face-to-face kitchen / Barrier-free / Toilet 2 places / 2-story / Double-glazing / Underfloor Storage / The window in the bathroom / Ventilation good / All room 6 tatami mats or more / Flat terrain フラット35Sに対応 /駐車2台可 /南向き /システムキッチン /浴室乾燥機 /陽当り良好 /全居室収納 /駅まで平坦 /南側道路面す /閑静な住宅地 /LDK15畳以上 /和室 /整形地 /シャワー付洗面台 /対面式キッチン /バリアフリー /トイレ2ヶ所 /2階建 /複層ガラス /床下収納 /浴室に窓 /通風良好 /全居室6畳以上 /平坦地 | Price 価格 | | 21,800,000 yen 2180万円 | Floor plan 間取り | | 4LDK 4LDK | Units sold 販売戸数 | | 1 units 1戸 | Total units 総戸数 | | 1 units 1戸 | Land area 土地面積 | | 123.16 sq m (37.25 tsubo) (Registration) 123.16m2(37.25坪)(登記) | Building area 建物面積 | | 95.58 sq m (28.91 tsubo) (Registration) 95.58m2(28.91坪)(登記) | Driveway burden-road 私道負担・道路 | | Nothing, South 4.4m width 無、南4.4m幅 | Completion date 完成時期(築年月) | | February 2014 2014年2月 | Address 住所 | | Sakai, Osaka Prefecture Mihara Ward Seinandai 2 大阪府堺市美原区青南台2 | Traffic 交通 | | Nankai Koya Line "Osakasayama" walk 26 minutes 南海高野線「大阪狭山市」歩26分
| Related links 関連リンク | | [Related Sites of this company] 【この会社の関連サイト】 | Person in charge 担当者より | | Person in charge of real-estate and building Izaki Hirotaka Age: 40 Daigyokai experience: Standing in 12 years your side, We would like to provide the fullest of services that can be trusted in the peace of mind. Footwork is not still lost to young people! 担当者宅建井崎 浩孝年齢:40代業界経験:12年お客様サイドに立ち、安心で信頼のできる精いっぱいのサービスを提供していきたいと考えております。フットワークはまだまだ若者に負けません! | Contact お問い合せ先 | | TEL: 0800-603-2309 [Toll free] mobile phone ・ Also available from PHS Caller ID is not notified Please contact the "saw SUUMO (Sumo)" If it does not lead, If the real estate company TEL:0800-603-2309【通話料無料】携帯電話・PHSからもご利用いただけます 発信者番号は通知されません 「SUUMO(スーモ)を見た」と問い合わせください つながらない方、不動産会社の方は
| Building coverage, floor area ratio 建ぺい率・容積率 | | 60% ・ 200% 60%・200% | Time residents 入居時期 | | February 2014 schedule 2014年2月予定 | Land of the right form 土地の権利形態 | | Ownership 所有権 | Structure and method of construction 構造・工法 | | Wooden 2-story 木造2階建 | Use district 用途地域 | | One middle and high 1種中高 | Other limitations その他制限事項 | | Regulations have by the Landscape Act 景観法による規制有 | Overview and notices その他概要・特記事項 | | Contact: Izaki Hirotaka, Facilities: Public Water Supply, This sewage, Individual LPG, Building confirmation number: No. Trust 13-3239, Parking: car space 担当者:井崎 浩孝、設備:公営水道、本下水、個別LPG、建築確認番号:第トラスト13-3239号、駐車場:カースペース | Company profile 会社概要 | | <Mediation> Minister of Land, Infrastructure and Transport (2) No. 007017 (Ltd.) House Freedom Sakai Yubinbango591-8025 Sakai-shi, Osaka, Kita-ku, Nagasone cho 3056-7 <仲介>国土交通大臣(2)第007017号(株)ハウスフリーダム堺店〒591-8025 大阪府堺市北区長曽根町3056-7 |
Non-living roomリビング以外の居室  Same specifications Photos. The Japanese-style room from the living room, Calm. It will produce a space
同仕様写真。リビングからの和室は、落ち着いた。空間を演出します
Kitchenキッチン  Same specifications Photos. Since housework flow line of kitchen around is good, You can do move smoothly.
同仕様写真。キッチン廻りの家事動線が良いので、移動をスムーズに行う事ができます。
Bathroom浴室  Same specifications Photos. Spacious bathroom heals every day of fatigue
同仕様写真。ゆったりとした浴室は毎日の疲れを癒してくれます
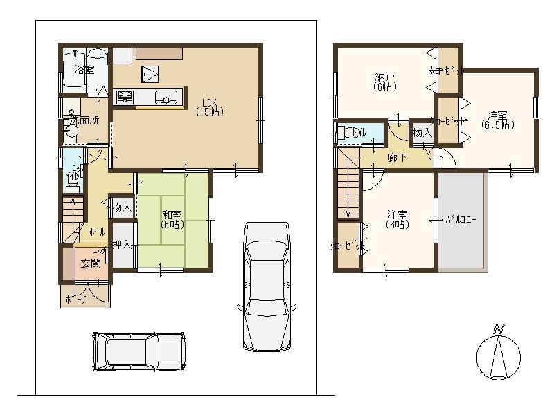
Floor plan間取り図  21,800,000 yen, 4LDK, Land area 123.16 sq m , Building area 95.58 sq m total living room with storage, It is a good floor plan of the very easy to use!
2180万円、4LDK、土地面積123.16m2、建物面積95.58m2 全居室収納つきで、とても使い勝手の良い間取りです!
Rendering (appearance)完成予想図(外観)  Same specifications Photos. It is simple and respectable house
同仕様写真。シンプルで立派なお家です
Wash basin, toilet洗面台・洗面所  Same specifications Photos. Functionality, It is an excellent wash basin in storability
同仕様写真。機能性、収納性に優れた洗面台です
Toiletトイレ  Same specifications Photos. Cleanliness overflowing toilet. Also it has excellent functionality
同仕様写真。清潔感あふれるトイレ。機能性も優れています
Entrance玄関  Same specifications Photos. Storage is plenty of cupboard
同仕様写真。収納たっぷりの下駄箱です
Non-living roomリビング以外の居室  Same specifications Photos. Because the window is also large, bright Japanese-style room also comes with a storage, It usability is good
同仕様写真。窓も大きく明るい和室は収納もついているので、使い勝手が良いですね
 Same specifications Photos. You can enter and exit from 2 rooms. Spacious balcony. I will Jose a lot of laundry
同仕様写真。2室から出入りできる。広々バルコニー。洗濯物もたくさん干せますね
 Same specifications Photos. Condensation in multi-layer glass is also safe
同仕様写真。複層ガラスで結露も安心です
Other introspectionその他内観  Same specifications Photos. With bathroom heating dryer, You can bathe warm and cold day also
同仕様写真。浴室暖房乾燥機付きで、寒い日も暖かく入浴できますね
Garden庭  Same specifications Photos. You can also enjoy, such as gardening in the spacious garden
同仕様写真。ゆったりとした庭でガーデニングなども楽しめます
Local photos, including front road前面道路含む現地写真  Same specifications Photos. Popular modern style
同仕様写真。人気のモダンスタイル
 Same specifications Photos. South-facing day is good
同仕様写真。南向き日当たり良好です
Local appearance photo現地外観写真  It will be parked two garage in shaping areas 37.25 square meters
整形地37.25坪でガレージの2台停めれます
Local photos, including front road前面道路含む現地写真  On the south-facing front road 4.4m, Day is good
南向き前面道路4.4mで、日当たり良好です
Home centerホームセンター  418m until EDION Mihara shop
エディオン美原店まで418m
Primary school小学校  Hirao to elementary school 2500m
平尾小学校まで2500m
Location
|