|
|
Sakai, Osaka Prefecture Mihara Ward
大阪府堺市美原区
|
|
Nankai Koya Line "Sayama" 10 minutes wood park walk 4 minutes by bus
南海高野線「狭山」バス10分木材団地歩4分
|
|
Limited 1 compartment! Parking two Allowed! Click on the document request button Those who Listing Details hope! Contact your early! !
限定1区画!駐車2台可!物件詳細ご希望の方は資料請求ボタンをクリック!お問合せはお早目に!!
|
|
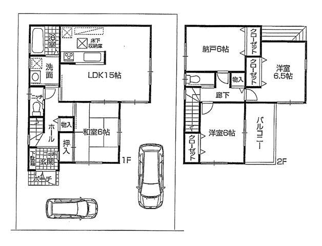
◆ convenience store ・ Home center ・ Within a 5-minute walk to the post office ◆ 4LDK, Bathroom heating dryer, EV for outdoor electrical outlet, Electronic Kidoa, Closet 3 places, closet
◆コンビニ・ホームセンター・郵便局まで徒歩5分圏内◆4LDK、浴室暖房乾燥機、EV用屋外コンセント、電子キードア、クローゼット3ヶ所、押入
|
Features pickup 特徴ピックアップ | | Parking two Allowed / Bathroom Dryer / All room storage / A quiet residential area / LDK15 tatami mats or more / Japanese-style room / Toilet 2 places / 2-story / Underfloor Storage / TV monitor interphone / All room 6 tatami mats or more / Flat terrain 駐車2台可 /浴室乾燥機 /全居室収納 /閑静な住宅地 /LDK15畳以上 /和室 /トイレ2ヶ所 /2階建 /床下収納 /TVモニタ付インターホン /全居室6畳以上 /平坦地 |
Price 価格 | | 21,800,000 yen 2180万円 |
Floor plan 間取り | | 4LDK 4LDK |
Units sold 販売戸数 | | 1 units 1戸 |
Land area 土地面積 | | 123.16 sq m 123.16m2 |
Building area 建物面積 | | 95.58 sq m 95.58m2 |
Driveway burden-road 私道負担・道路 | | Nothing, South 4.4m width 無、南4.4m幅 |
Completion date 完成時期(築年月) | | February 2014 2014年2月 |
Address 住所 | | Sakai, Osaka Prefecture Mihara Ward Seinandai 2 大阪府堺市美原区青南台2 |
Traffic 交通 | | Nankai Koya Line "Sayama" 10 minutes wood park walk 4 minutes by bus Nankai Koya Line "Osakasayama" walk 29 minutes Nankai Koya Line "Kongo" walk 41 minutes 南海高野線「狭山」バス10分木材団地歩4分 南海高野線「大阪狭山市」歩29分 南海高野線「金剛」歩41分
|
Related links 関連リンク | | [Related Sites of this company] 【この会社の関連サイト】 |
Contact お問い合せ先 | | (Ltd.) leaf TEL: 0800-603-8993 [Toll free] mobile phone ・ Also available from PHS Caller ID is not notified Please contact the "saw SUUMO (Sumo)" If it does not lead, If the real estate company (株)リーフTEL:0800-603-8993【通話料無料】携帯電話・PHSからもご利用いただけます 発信者番号は通知されません 「SUUMO(スーモ)を見た」と問い合わせください つながらない方、不動産会社の方は
|
Building coverage, floor area ratio 建ぺい率・容積率 | | 60% ・ 200% 60%・200% |
Time residents 入居時期 | | Three months after the contract 契約後3ヶ月 |
Land of the right form 土地の権利形態 | | Ownership 所有権 |
Structure and method of construction 構造・工法 | | Wooden 2-story 木造2階建 |
Use district 用途地域 | | One middle and high 1種中高 |
Overview and notices その他概要・特記事項 | | Facilities: Public Water Supply, Building confirmation number: No. Trust 13-3239, Parking: car space 設備:公営水道、建築確認番号:第トラスト13-3239号、駐車場:カースペース |
Company profile 会社概要 | | <Mediation> governor of Osaka (2) No. 054112 (Ltd.) leaf Yubinbango580-0014 Ichioka Osaka Matsubara 3-16-1 <仲介>大阪府知事(2)第054112号(株)リーフ〒580-0014 大阪府松原市岡3-16-1 |