New Homes » Kansai » Osaka prefecture » Sakai City Sakai-ku
 
| | Sakai, Osaka Sakai-ku, 大阪府堺市堺区 |
| Nankai Koya Line "Higashi" walk 19 minutes 南海高野線「堺東」歩19分 |
| The south and east for the corner lot, Yang per ventilation ・ View is good! ! All rooms are housed with a walk-in closet with a parking space is reserved two ☆ Front road width 5 ・ 4m ☆ It is safe in the 10-year warranty mortgage 南と東の角地のため、陽当たり通風・眺望良好です!!全室収納付ウォークインクローゼット付駐車スペースは2台確保☆前面道路幅員5・4m☆10年保証付住宅で安心です |
| ◆ ◆ Purchase with guarantee! ! ◆ ◆ Mediation and, It is a good place example you combine innovative sale method of purchase outright! 1 month ~ By providing a period of three months position, It will be sold to the general customers. If it could not be any chance sale, We will do the purchase at a price which was decided at the beginning. We especially our joy you in replacement of customers! ◆◆買取保証付!!◆◆仲介と、即金買取りの良い所えお兼ね備えた画期的な売却方法です!1ヶ月 ~ 3ヶ月位の期間を設けて、一般のお客様に販売します。万一売却出来なかった場合は、初めに決めていた価格で当社が買い取りを致します。特に買い替えのお客様にお喜び頂いています! |
Features pickup 特徴ピックアップ | | Year Available / Parking two Allowed / LDK18 tatami mats or more / Super close / It is close to the city / Facing south / System kitchen / Bathroom Dryer / Yang per good / All room storage / Flat to the station / Siemens south road / A quiet residential area / Around traffic fewer / Corner lot / Shaping land / Washbasin with shower / Face-to-face kitchen / Security enhancement / Barrier-free / Toilet 2 places / Bathroom 1 tsubo or more / 2-story / South balcony / Double-glazing / Otobasu / Warm water washing toilet seat / Underfloor Storage / The window in the bathroom / TV monitor interphone / High-function toilet / Ventilation good / All living room flooring / Good view / Dish washing dryer / Walk-in closet / All room 6 tatami mats or more / City gas / A large gap between the neighboring house / Maintained sidewalk / Flat terrain 年内入居可 /駐車2台可 /LDK18畳以上 /スーパーが近い /市街地が近い /南向き /システムキッチン /浴室乾燥機 /陽当り良好 /全居室収納 /駅まで平坦 /南側道路面す /閑静な住宅地 /周辺交通量少なめ /角地 /整形地 /シャワー付洗面台 /対面式キッチン /セキュリティ充実 /バリアフリー /トイレ2ヶ所 /浴室1坪以上 /2階建 /南面バルコニー /複層ガラス /オートバス /温水洗浄便座 /床下収納 /浴室に窓 /TVモニタ付インターホン /高機能トイレ /通風良好 /全居室フローリング /眺望良好 /食器洗乾燥機 /ウォークインクロゼット /全居室6畳以上 /都市ガス /隣家との間隔が大きい /整備された歩道 /平坦地 | Price 価格 | | 26,900,000 yen 2690万円 | Floor plan 間取り | | 3LDK 3LDK | Units sold 販売戸数 | | 1 units 1戸 | Land area 土地面積 | | 99.48 sq m (30.09 tsubo) (Registration) 99.48m2(30.09坪)(登記) | Building area 建物面積 | | 89.43 sq m (27.05 tsubo) (Registration) 89.43m2(27.05坪)(登記) | Driveway burden-road 私道負担・道路 | | Nothing, South 5.4m width, East 5.4m width 無、南5.4m幅、東5.4m幅 | Completion date 完成時期(築年月) | | October 2013 2013年10月 | Address 住所 | | Sakai, Osaka Sakai-ku, Monjubashidori 大阪府堺市堺区文珠橋通 | Traffic 交通 | | Nankai Koya Line "Higashi" walk 19 minutes Hankai Line "Goryomae" walk 15 minutes Hankai Line "Terachi town" walk 14 minutes 南海高野線「堺東」歩19分 阪堺電気軌道阪堺線「御陵前」歩15分 阪堺電気軌道阪堺線「寺地町」歩14分
| Related links 関連リンク | | [Related Sites of this company] 【この会社の関連サイト】 | Contact お問い合せ先 | | TEL: 0800-602-6616 [Toll free] mobile phone ・ Also available from PHS Caller ID is not notified Please contact the "saw SUUMO (Sumo)" If it does not lead, If the real estate company TEL:0800-602-6616【通話料無料】携帯電話・PHSからもご利用いただけます 発信者番号は通知されません 「SUUMO(スーモ)を見た」と問い合わせください つながらない方、不動産会社の方は
| Building coverage, floor area ratio 建ぺい率・容積率 | | 60% ・ 200% 60%・200% | Time residents 入居時期 | | Three months after the contract 契約後3ヶ月 | Land of the right form 土地の権利形態 | | Ownership 所有権 | Structure and method of construction 構造・工法 | | Wooden 2-story 木造2階建 | Use district 用途地域 | | Two dwellings 2種住居 | Overview and notices その他概要・特記事項 | | Building confirmation number: 1234, Parking: car space 建築確認番号:1234、駐車場:カースペース | Company profile 会社概要 | | <Mediation> governor of Osaka (2) the first 053,920 No. housing network Sales Co., Ltd. Sakai Yubinbango591-8032 Sakai-shi, Osaka, Kita-ku, Mozuume cho 3-4-4 <仲介>大阪府知事(2)第053920号ハウジングネットワーク販売(株)堺店〒591-8032 大阪府堺市北区百舌鳥梅町3-4-4 |
Local appearance photo現地外観写真  Local is being steadily construction progress.
現地は着々と工事進行中です。
 Since it is a corner lot, Day ventilation is good.
角地ですので、日当たり通風良好です。
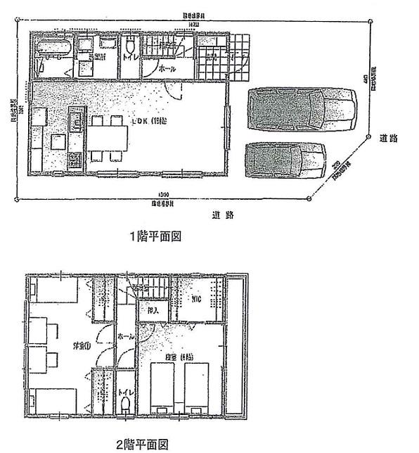
Floor plan間取り図  26,900,000 yen, 3LDK, Land area 99.48 sq m , It is a building area of 89.43 sq m spacious frontage property of garage space with 2 car.
2690万円、3LDK、土地面積99.48m2、建物面積89.43m2 車庫スペース2台分付の広々間口物件です。
 Local appearance photo
現地外観写真
 Local photos, including front road
前面道路含む現地写真
Otherその他  Nankai Koya Line "Higashi" station walk 19 minutes
南海高野線「堺東」駅徒歩19分
 Local appearance photo
現地外観写真
 Local photos, including front road
前面道路含む現地写真
 Other
その他
Location
|