|
|
Sakai, Osaka Sakai-ku,
大阪府堺市堺区
|
|
Nankai Koya Line "Higashi" walk 15 minutes
南海高野線「堺東」歩15分
|
|
Zentominami direction! Within walking distance of the Nankai Koya Line "Higashi" station! Seismic grade 3 of the peace of mind (the highest grade) Acquisition!
全棟南向き!南海高野線「堺東」駅まで徒歩圏内!安心の耐震等級3(最高等級)取得!
|
|
※ Yasui Elementary School, Ryonishi junior high school ※ Konomiya Higashi 6-minute walk to the store
※安井小学校、陵西中学校※コノミヤ堺東店まで徒歩6分
|
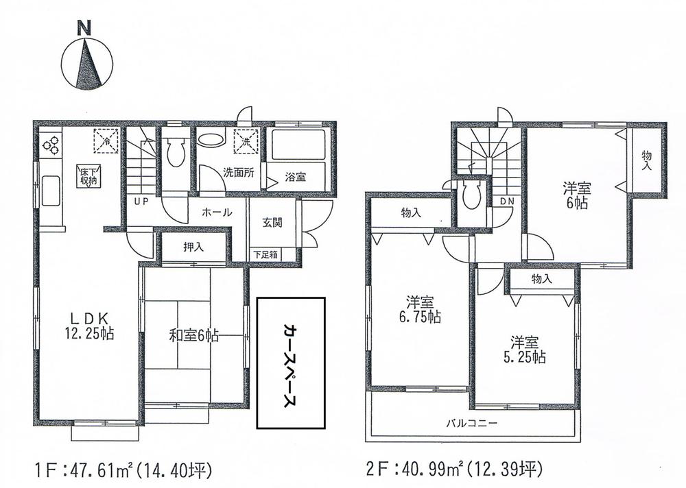
Features pickup 特徴ピックアップ | | Construction housing performance with evaluation / Immediate Available / 2 along the line more accessible / Facing south / System kitchen / 2-story / Double-glazing / Underfloor Storage / The window in the bathroom 建設住宅性能評価付 /即入居可 /2沿線以上利用可 /南向き /システムキッチン /2階建 /複層ガラス /床下収納 /浴室に窓 |
Event information イベント情報 | | Open House (Please be sure to ask in advance) time / 10:00 ~ 17:00 When you visit hope, Please contact until the sorry to trouble you, but responsible. Contact: to brass! 090-6060-7243 オープンハウス(事前に必ずお問い合わせください)時間/10:00 ~ 17:00ご見学希望の際は、お手数ですが担当までご連絡下さいませ。担当:コウドウまで!090-6060-7243 |
Price 価格 | | 22,800,000 yen 2280万円 |
Floor plan 間取り | | 3LDK 3LDK |
Units sold 販売戸数 | | 1 units 1戸 |
Total units 総戸数 | | 4 units 4戸 |
Land area 土地面積 | | 82.91 sq m (25.08 tsubo) (Registration) 82.91m2(25.08坪)(登記) |
Building area 建物面積 | | 90.25 sq m (27.30 tsubo) (measured) 90.25m2(27.30坪)(実測) |
Driveway burden-road 私道負担・道路 | | Driveway ・ Public road width 4.0m 私道・公道幅員4.0m |
Completion date 完成時期(築年月) | | 2013 mid-October 2013年10月中旬 |
Address 住所 | | Sakai, Osaka Sakai-ku, Nigiwaimachi 2 大阪府堺市堺区賑町2 |
Traffic 交通 | | Nankai Koya Line "Higashi" walk 15 minutes Hankai Line "Terachi town" walk 13 minutes Hankai Line "Shukuin" walk 16 minutes 南海高野線「堺東」歩15分 阪堺電気軌道阪堺線「寺地町」歩13分 阪堺電気軌道阪堺線「宿院」歩16分
|
Related links 関連リンク | | [Related Sites of this company] 【この会社の関連サイト】 |
Person in charge 担当者より | | The person in charge Kondo 担当者コンドウ |
Contact お問い合せ先 | | TEL: 072-258-0888 Please inquire as "saw SUUMO (Sumo)" TEL:072-258-0888「SUUMO(スーモ)を見た」と問い合わせください |
Sale schedule 販売スケジュール | | October scheduled to be completed. At any time, Sale. 10月完成予定。随時、販売中。 |
Most price range 最多価格帯 | | 22 million yen 2200万円台 |
Building coverage, floor area ratio 建ぺい率・容積率 | | 80%, 300% 80%、300% |
Time residents 入居時期 | | Immediate available 即入居可 |
Land of the right form 土地の権利形態 | | Ownership 所有権 |
Structure and method of construction 構造・工法 | | 2-story wooden 木造2階建て |
Use district 用途地域 | | Residential 近隣商業 |
Land category 地目 | | Residential land 宅地 |
Overview and notices その他概要・特記事項 | | Contact: Kondo 担当者:コンドウ |
Company profile 会社概要 | | <Mediation> governor of Osaka Prefecture (1) No. 056958 (Ltd.) Life City Yubinbango591-8032 Sakai-shi, Osaka, Kita-ku, Mozuume cho 1-2-6 <仲介>大阪府知事(1)第056958号(株)ライフシティ〒591-8032 大阪府堺市北区百舌鳥梅町1-2-6 |