New Homes » Kansai » Osaka prefecture » Shijōnawate
 
| | Osaka shijonawate 大阪府四條畷市 |
| JR katamachi line "Shinobukeoka" walk 5 minutes JR片町線「忍ケ丘」歩5分 |
| ◇ day widely life convenient ◇ frontage at the station near good ◇ is a quiet residential area ◇駅近で生活至便◇間口広くて日当り良好です◇静かな住宅地です |
| ◇ is a house of new construction 2-story ◇ Station is convenient life in the near ◇ is in sunny widely frontage ◇ There is plenty of storage space ◇ LDK is spacious with 15 quires contact us feel free to ☆ → 0800-808-7253 ◇新築2階建のお家です◇駅近で生活至便です◇間口が広くて日当り良好です◇収納スペースたっぷりあります◇LDKは15帖で広々ですお問い合わせはお気軽に☆→0800-808-7253 |
Features pickup 特徴ピックアップ | | System kitchen / All room storage / A quiet residential area / LDK15 tatami mats or more / Japanese-style room / Toilet 2 places / 2-story / Dish washing dryer / City gas システムキッチン /全居室収納 /閑静な住宅地 /LDK15畳以上 /和室 /トイレ2ヶ所 /2階建 /食器洗乾燥機 /都市ガス | Price 価格 | | 29,800,000 yen 2980万円 | Floor plan 間取り | | 4LDK 4LDK | Units sold 販売戸数 | | 1 units 1戸 | Land area 土地面積 | | 96.71 sq m (29.25 tsubo) (Registration) 96.71m2(29.25坪)(登記) | Building area 建物面積 | | 93.65 sq m (28.32 tsubo) (Registration) 93.65m2(28.32坪)(登記) | Driveway burden-road 私道負担・道路 | | Nothing 無 | Completion date 完成時期(築年月) | | May 2013 2013年5月 | Address 住所 | | Osaka shijonawate Okayama 4 大阪府四條畷市岡山4 | Traffic 交通 | | JR katamachi line "Shinobukeoka" walk 5 minutes JR katamachi line "Higashineyagawa" walk 18 minutes JR katamachi line "Shijonawate" walk 30 minutes JR片町線「忍ケ丘」歩5分 JR片町線「東寝屋川」歩18分 JR片町線「四条畷」歩30分
| Person in charge 担当者より | | Rep Chuwaki Takahiro Age: 20 Daigyokai Experience: My name is 8 years buying and selling in charge to have Chuwaki! I have my own marriage! (wife ・ Two children you have) firmly stand on your position, We will provide the best you live in the area that has been sought from the family structure and budget 担当者中脇 崇宏年齢:20代業界経験:8年売買担当している中脇と申します!私自身結婚しております!(妻・子供二人います)しっかりお客様の立場に立ち、家族構成や予算から探されているエリアでの最適なお住まいを提供させていただきます | Contact お問い合せ先 | | TEL: 0800-808-7253 [Toll free] mobile phone ・ Also available from PHS Caller ID is not notified Please contact the "saw SUUMO (Sumo)" If it does not lead, If the real estate company TEL:0800-808-7253【通話料無料】携帯電話・PHSからもご利用いただけます 発信者番号は通知されません 「SUUMO(スーモ)を見た」と問い合わせください つながらない方、不動産会社の方は
| Building coverage, floor area ratio 建ぺい率・容積率 | | 60% ・ 200% 60%・200% | Time residents 入居時期 | | Immediate available 即入居可 | Land of the right form 土地の権利形態 | | Ownership 所有権 | Structure and method of construction 構造・工法 | | Wooden 2-story 木造2階建 | Use district 用途地域 | | One dwelling 1種住居 | Overview and notices その他概要・特記事項 | | The person in charge: Medium aside Takahiro, Facilities: Public Water Supply, This sewage, City gas, Parking: No 担当者:中脇 崇宏、設備:公営水道、本下水、都市ガス、駐車場:無 | Company profile 会社概要 | | <Mediation> governor of Osaka Prefecture (1) No. 056319 (Ltd.) rack housing Yubinbango574-0033 Osaka Prefecture Daito Ogimachi 6-17 <仲介>大阪府知事(1)第056319号(株)ラックハウジング〒574-0033 大阪府大東市扇町6-17 |
Local appearance photo現地外観写真  JR katamachi line is a 5-minute walk from the "Shinobukeoka Station" is a quiet residential area
JR片町線『忍ヶ丘駅』から徒歩5分です静かな住宅街です
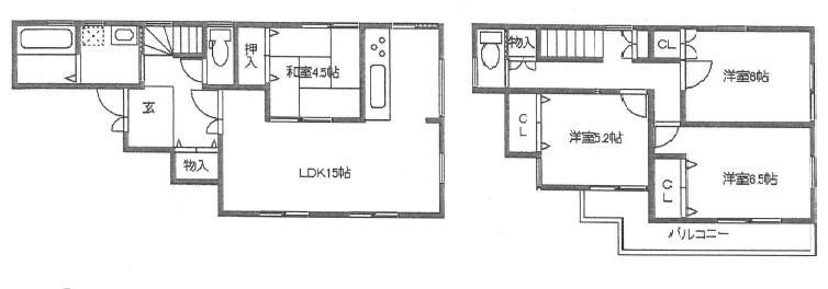
Floor plan間取り図  29,800,000 yen, 4LDK, Land area 96.71 sq m , Building area 93.65 sq m 4LDK + is a floor plan of the garage
2980万円、4LDK、土地面積96.71m2、建物面積93.65m2 4LDK+車庫の間取りです
Local appearance photo現地外観写真  It is a house of new construction 2-story
新築2階建のお家です
Livingリビング  LDK is a spacious 15 Pledge
LDKは15帖で広々です
Bathroom浴室  This bath was loose
ゆったりしたお風呂です
Kitchenキッチン  Large system Kitchen
広いシステムキッチンです
Non-living roomリビング以外の居室  There are Western-style 3 room on the second floor
2階に洋室3部屋あります
Entrance玄関  It is the entrance door
玄関ドアです
Wash basin, toilet洗面台・洗面所  It is the washstand
洗面台です
Receipt収納  Western-style closet
洋室のクローゼットです
Toiletトイレ  High-function toilet There toilet two places
高機能トイレですトイレ2箇所あります
Otherその他  Daylighting ・ Ventilation is good
採光・通風良好です
Kitchenキッチン  Is the work Ease wide sink
広いシンクで作業ラクラクです
Non-living roomリビング以外の居室  Living room is next to the Japanese-style room
リビング横の和室です
Entrance玄関  Spacious entrance
広い玄関です
Receipt収納  Is a Japanese-style room of the housing there all rooms housed
和室の収納です全室収納あります
Kitchenキッチン  Kitchen is also abundant storage
キッチンも収納豊富です
Entrance玄関  There are shoes BOX
シューズBOXあります
Kitchenキッチン  It comes with a dishwasher
食洗機ついてます
Location
|