New Homes » Kansai » Osaka prefecture » Takatsuki
 
| | Osaka Takatsuki 大阪府高槻市 |
| Hankyu Kyoto Line "Takatsuki" walk 24 minutes 阪急京都線「高槻市」歩24分 |
| ◆ North-South double-sided balcony total of four locations! ◆ You can park your car 2 car! ◆ Plan view per, You can your change to the floor plan of your choice ◎ ◆南北両面バルコニー計4ヵ所!◆車は2台分駐車可能です!◆プラン図につき、お好みの間取りにご変更可能ですよ◎ |
| ◆ □ ◆ □ ◆ □ ◆ □ ◆ □ ◆ □ ◆ □ ◆ □ ◆ □ ◆ □ ◆ Now is the chance of the previous economic recovery if you buy a house! ◆ □ ◆ □ ◆ □ ◆ □ ◆ □ ◆ □ ◆ □ ◆ □ ◆ □ ◆ □ ◆ Recovery of the economy is coming around the corner! Real estate shall retain the long-term. If Do not Relocation wise? ↓ ↓ ↓ there is no down payment ・ It was refused by other companies ・ Not sell the house ・ Undeclared ・ But she was a woman ... and so on to what your worries also you consider the consultation please ◎ purchase everyone at the individual purchase consultation, We will teach the secret of real estate purchase (when you coming to the store, annual income ・ Please prepare what you can see of your borrowing situation) ◆□◆□◆□◆□◆□◆□◆□◆□◆□◆□◆ 家を買うなら景気回復前の今がチャンス! ◆□◆□◆□◆□◆□◆□◆□◆□◆□◆□◆ 景気の回復はもうすぐそこまで来ています! 不動産は長期に保有するもの。ならば賢く住み替えませんか? ↓ ↓ ↓頭金が無い・他社で断られた・家が売れない・申告していない・女性だけど...等々個別購入相談会にてどんなお悩みもご相談下さい◎ご購入をご検討の皆様に、不動産購入の極意を伝授致します(ご来店の際は、年収・お借入れ状況の分かるものをご用意下さい) |
Features pickup 特徴ピックアップ | | Parking two Allowed / 2 along the line more accessible / Fiscal year Available / Super close / It is close to the city / Yang per good / All room storage / Flat to the station / A quiet residential area / Around traffic fewer / Starting station / Shaping land / 3 face lighting / Toilet 2 places / 2 or more sides balcony / South balcony / The window in the bathroom / Urban neighborhood / Ventilation good / All living room flooring / Good view / Living stairs / City gas / All rooms are two-sided lighting / A large gap between the neighboring house / Maintained sidewalk / Flat terrain 駐車2台可 /2沿線以上利用可 /年度内入居可 /スーパーが近い /市街地が近い /陽当り良好 /全居室収納 /駅まで平坦 /閑静な住宅地 /周辺交通量少なめ /始発駅 /整形地 /3面採光 /トイレ2ヶ所 /2面以上バルコニー /南面バルコニー /浴室に窓 /都市近郊 /通風良好 /全居室フローリング /眺望良好 /リビング階段 /都市ガス /全室2面採光 /隣家との間隔が大きい /整備された歩道 /平坦地 | Price 価格 | | 23.8 million yen 2380万円 | Floor plan 間取り | | 3LDK 3LDK | Units sold 販売戸数 | | 1 units 1戸 | Land area 土地面積 | | 87.47 sq m (registration) 87.47m2(登記) | Building area 建物面積 | | 86.52 sq m (registration) 86.52m2(登記) | Driveway burden-road 私道負担・道路 | | Nothing, North 4.2m width 無、北4.2m幅 | Completion date 完成時期(築年月) | | Three months after the contract 契約後3ヶ月 | Address 住所 | | Osaka Takatsuki Noda 3 大阪府高槻市野田3 | Traffic 交通 | | Hankyu Kyoto Line "Takatsuki" walk 24 minutes JR Tokaido Line "Takatsuki" 12 minutes Hokkaido University crown school walk 3 minutes by bus 阪急京都線「高槻市」歩24分 JR東海道本線「高槻」バス12分北大冠校歩3分
| Related links 関連リンク | | [Related Sites of this company] 【この会社の関連サイト】 | Contact お問い合せ先 | | TEL: 0800-602-6604 [Toll free] mobile phone ・ Also available from PHS Caller ID is not notified Please contact the "saw SUUMO (Sumo)" If it does not lead, If the real estate company TEL:0800-602-6604【通話料無料】携帯電話・PHSからもご利用いただけます 発信者番号は通知されません 「SUUMO(スーモ)を見た」と問い合わせください つながらない方、不動産会社の方は
| Building coverage, floor area ratio 建ぺい率・容積率 | | 60% ・ 200% 60%・200% | Time residents 入居時期 | | Consultation 相談 | Land of the right form 土地の権利形態 | | Ownership 所有権 | Structure and method of construction 構造・工法 | | Wooden three-story 木造3階建 | Use district 用途地域 | | One middle and high 1種中高 | Other limitations その他制限事項 | | ※ Building construction cost 600,000 yen ・ Exterior construction costs 1,000,000 yen ・ Water City receipt of payment 200,000 yen separately required ※建築確認費60万円・外構工事費100万円・水道市納金20万円別途要 | Overview and notices その他概要・特記事項 | | Facilities: Public Water Supply, This sewage, City gas, Building confirmation number: 000, Parking: car space 設備:公営水道、本下水、都市ガス、建築確認番号:000、駐車場:カースペース | Company profile 会社概要 | | <Mediation> governor of Osaka (2) No. 051345 (Ltd.) World ・ One Takatsuki store Yubinbango569-0064 Osaka Takatsuki Shosho-cho 2-13 <仲介>大阪府知事(2)第051345号(株)ワールド・ワン高槻店〒569-0064 大阪府高槻市庄所町2-13 |
Same specifications photo (kitchen)同仕様写真(キッチン)  North-South double-sided balcony total of four locations! We offer a storage capacity sufficient 3LDK plan! So also there is a balcony in the kitchen, It is convenient to use a variety or a dried fish or place luggage ◎
南北両面バルコニー計4ヵ所!収納力充分な3LDKプランをご用意しております!キッチンにもバルコニーがございますので、荷物を置いたり干物をしたり色々使えて便利です◎
Otherその他  Please leave our if it is a thing of Takatsuki of property!
高槻市の物件の事なら当社にお任せ下さい!
Rendering (appearance)完成予想図(外観)  North-South double-sided balcony total of four locations! We offer a storage capacity sufficient 3LDK plan!
南北両面バルコニー計4ヵ所!収納力充分な3LDKプランをご用意しております!
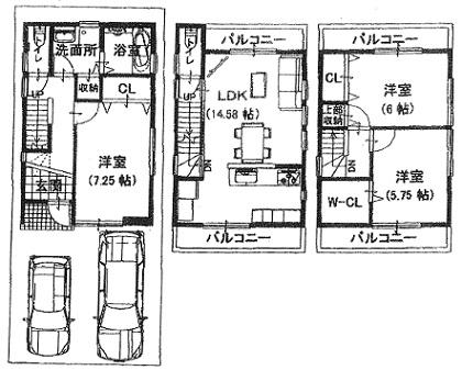
Floor plan間取り図  23.8 million yen, 3LDK, Land area 87.47 sq m , Building area 86.52 sq m toilet is available in two places!
2380万円、3LDK、土地面積87.47m2、建物面積86.52m2 トイレは2ヶ所にご用意!
Same specifications photo (bathroom)同仕様写真(浴室)  There bathroom window! It is with storage also in dressing room!
浴室窓あり!脱衣所にも収納付きです!
Same specifications photos (living)同仕様写真(リビング)  All room with storage! There is also a walk-in closet, It is a house with a storage capacity!
全居室収納付き!ウォークインクローゼットもあり、収納力のあるお家です!
Primary school小学校  543m to Takatsuki Municipal Hokkaido crown elementary school
高槻市立北大冠小学校まで543m
Junior high school中学校  613m to Takatsuki Municipal sixth junior high school
高槻市立第六中学校まで613m
Local photos, including front road前面道路含む現地写真  Facing the north side road, Width is about 4.7m
北側道路に面しており、幅は約4.7mです
 Plan can be changed
プラン変更可能です
Shopping centreショッピングセンター  1564m until the ion Takatsuki store
イオン高槻店まで1564m
Otherその他  Lawson Tenno shop
ローソン天王店
Supermarketスーパー  Maxvalu 1443m to Takatsuki south shop
マックスバリュ高槻南店まで1443m
Otherその他  EDION Takatsuki shop
エディオン高槻店
Supermarketスーパー  1362m to business super Takatsuki store
業務スーパー高槻店まで1362m
Otherその他  Noda post office
野田郵便局
Convenience storeコンビニ  Seven-Eleven 223m to Takatsuki Noda 2-chome
セブンイレブン高槻野田2丁目店まで223m
Otherその他  Towa meeting hospital
東和会病院
Drug storeドラッグストア  Kirindo 718m to Takatsuki Noda shop
キリン堂高槻野田店まで718m
Otherその他  Please use the bus from Hankyu Takatsuki-shi Station
阪急高槻市駅からバスをご利用ください
 Between JR Takatsuki from Hankyu is approximately a 5-minute walk. JR also Please use
阪急からJR高槻間は徒歩約5分程です。JRもご利用くださいませ
Presentプレゼント ![Present. [Limited time offer] When your conclusion of a contract to Customers who have received contact us by phone, Authentic Motchiri bread of the topic and easy to enjoy at home, "a Panasonic: Gopan" I will present the! ! First arrival 50 people limited! !](/images/osaka/takatsuki/a13dea0001.jpg) [Limited time offer] When your conclusion of a contract to Customers who have received contact us by phone, Authentic Motchiri bread of the topic and easy to enjoy at home, "a Panasonic: Gopan" I will present the! ! First arrival 50 people limited! !
【期間限定】お電話にてお問い合わせ頂きましたお客様にご成約時、本格もっちりパンがご自宅で手軽に楽しめると話題の『Panasonic製:ゴパン』をプレゼントさせていただきます!!先着50名様限定です!!
Location
|