New Homes » Kansai » Osaka prefecture » Takatsuki
 
| | Osaka Takatsuki 大阪府高槻市 |
| Hankyu Kyoto Line "Takatsuki" walk 20 minutes 阪急京都線「高槻市」歩20分 |
| ◆ Heisei finally we have completed 25 years in October! ◆ In a blow-by living and then insert the warm light of the sun ◎ ◆ Abundant storage capacity! Walk-in closet 2 months ownership ◆ Veranda a total of four locations! ◆平成25年10月ついに完成いたしました!◆吹抜けのあるリビングには太陽の暖かな光が差し込みます◎◆豊富な収納力!ウォークインクローゼット2ヵ所有◆ベランダ計4ヵ所! |
| ◆ □ ◆ □ ◆ □ ◆ □ ◆ □ ◆ □ ◆ □ ◆ □ ◆ □ ◆ □ ◆ Now is the chance of the previous economic recovery if you buy a house! ◆ □ ◆ □ ◆ □ ◆ □ ◆ □ ◆ □ ◆ □ ◆ □ ◆ □ ◆ □ ◆ Recovery of the economy is coming around the corner! Real estate shall retain the long-term. If Do not Relocation wise? ↓ ↓ ↓ there is no down payment ・ It was refused by other companies ・ Not sell the house ・ Undeclared ・ But she was a woman ... and so on to what your worries also you consider the consultation please ◎ purchase everyone at the individual purchase consultation, We will teach the secret of real estate purchase (when you coming to the store, annual income ・ Please prepare what you can see of your borrowing situation) ◆□◆□◆□◆□◆□◆□◆□◆□◆□◆□◆ 家を買うなら景気回復前の今がチャンス! ◆□◆□◆□◆□◆□◆□◆□◆□◆□◆□◆ 景気の回復はもうすぐそこまで来ています! 不動産は長期に保有するもの。ならば賢く住み替えませんか? ↓ ↓ ↓頭金が無い・他社で断られた・家が売れない・申告していない・女性だけど...等々個別購入相談会にてどんなお悩みもご相談下さい◎ご購入をご検討の皆様に、不動産購入の極意を伝授致します(ご来店の際は、年収・お借入れ状況の分かるものをご用意下さい) |
Features pickup 特徴ピックアップ | | Pre-ground survey / Immediate Available / 2 along the line more accessible / Fiscal year Available / Super close / It is close to the city / System kitchen / Bathroom Dryer / Yang per good / Flat to the station / Around traffic fewer / Or more before road 6m / Japanese-style room / Starting station / Shaping land / 3 face lighting / Toilet 2 places / Bathroom 1 tsubo or more / 2 or more sides balcony / South balcony / The window in the bathroom / Atrium / Ventilation good / IH cooking heater / Built garage / Dish washing dryer / Walk-in closet / Three-story or more / Living stairs / City gas / All rooms are two-sided lighting / Flat terrain / Movable partition 地盤調査済 /即入居可 /2沿線以上利用可 /年度内入居可 /スーパーが近い /市街地が近い /システムキッチン /浴室乾燥機 /陽当り良好 /駅まで平坦 /周辺交通量少なめ /前道6m以上 /和室 /始発駅 /整形地 /3面採光 /トイレ2ヶ所 /浴室1坪以上 /2面以上バルコニー /南面バルコニー /浴室に窓 /吹抜け /通風良好 /IHクッキングヒーター /ビルトガレージ /食器洗乾燥機 /ウォークインクロゼット /3階建以上 /リビング階段 /都市ガス /全室2面採光 /平坦地 /可動間仕切り | Price 価格 | | 28,400,000 yen 2840万円 | Floor plan 間取り | | 4LDK 4LDK | Units sold 販売戸数 | | 1 units 1戸 | Land area 土地面積 | | 68.8 sq m (registration) 68.8m2(登記) | Building area 建物面積 | | 103.86 sq m (registration) 103.86m2(登記) | Driveway burden-road 私道負担・道路 | | Nothing, West 6.2m width (contact the road width 5.7m) 無、西6.2m幅(接道幅5.7m) | Completion date 完成時期(築年月) | | October 2013 2013年10月 | Address 住所 | | Osaka Takatsuki Jonan-machi 4 大阪府高槻市城南町4 | Traffic 交通 | | Hankyu Kyoto Line "Takatsuki" walk 20 minutes JR Tokaido Line "Takatsuki" walk 29 minutes 阪急京都線「高槻市」歩20分 JR東海道本線「高槻」歩29分
| Related links 関連リンク | | [Related Sites of this company] 【この会社の関連サイト】 | Contact お問い合せ先 | | TEL: 0800-602-6604 [Toll free] mobile phone ・ Also available from PHS Caller ID is not notified Please contact the "saw SUUMO (Sumo)" If it does not lead, If the real estate company TEL:0800-602-6604【通話料無料】携帯電話・PHSからもご利用いただけます 発信者番号は通知されません 「SUUMO(スーモ)を見た」と問い合わせください つながらない方、不動産会社の方は
| Building coverage, floor area ratio 建ぺい率・容積率 | | 60% ・ 200% 60%・200% | Time residents 入居時期 | | Immediate available 即入居可 | Land of the right form 土地の権利形態 | | Ownership 所有権 | Structure and method of construction 構造・工法 | | Wooden three-story 木造3階建 | Use district 用途地域 | | Two mid-high 2種中高 | Other limitations その他制限事項 | | ※ Walk-in closet 2 places ※ウォークインクローゼット2ヵ所 | Overview and notices その他概要・特記事項 | | Facilities: Public Water Supply, This sewage, City gas, Building confirmation number: 000 設備:公営水道、本下水、都市ガス、建築確認番号:000 | Company profile 会社概要 | | <Mediation> governor of Osaka (2) No. 051345 (Ltd.) World ・ One Takatsuki store Yubinbango569-0064 Osaka Takatsuki Shosho-cho 2-13 <仲介>大阪府知事(2)第051345号(株)ワールド・ワン高槻店〒569-0064 大阪府高槻市庄所町2-13 |
Same specifications photo (kitchen)同仕様写真(キッチン)  "Hankyu Takatsuki-shi Station" than about 20 minutes and access convenient walk ◎ is 2WAY available! Balcony we ensure the lighting for a total of four locations! W closet There are two places, Storage capacity is a rich property!
『阪急高槻市駅』より徒歩約20分とアクセス便利◎2WAY利用可能です!バルコニーは計4ヵ所で採光を確保いたしました!Wクローゼットが2ヵ所有り、収納力が豊富な物件です!
Otherその他  Please leave our if it is a thing of Takatsuki of property!
高槻市の物件の事なら当社にお任せ下さい!
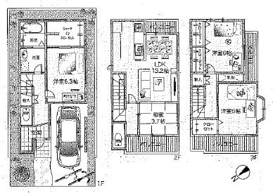
Floor plan間取り図  28,400,000 yen, 4LDK, Land area 68.8 sq m , Building area 103.86 sq m walk-in closet is abundant storage and 2 places! Toilet was installed on the first floor and the second floor!
2840万円、4LDK、土地面積68.8m2、建物面積103.86m2 ウォークインクローゼットは2ヵ所と収納豊富です!トイレは1階と2階に設置しました!
Rendering (appearance)完成予想図(外観)  (Image) current situation is unfinished. Please not hesitate to contact us!
(イメージ図)現状未完成です。お気軽にお問い合わせ下さいませ!
Livingリビング  (Image photo) LDK is located about 13.2 Pledge. Since the kitchen and the living room is close, Is a space that is felt the ties of family ◎
(イメージ写真)LDKは約13.2帖ございます。キッチンとリビングが近いので、家族の繋がりを感じれる空間です◎
Same specifications photo (bathroom)同仕様写真(浴室)  (Image photo) bathroom window ・ There is a washing machine inside the room.
(イメージ写真)浴室窓・室内洗濯機置場がございます。
Local photos, including front road前面道路含む現地写真  The front of the road width is also useful and out of your car because there about 6.2m ◎
前面の道路幅は約6.2mございますのでお車の出し入れも便利です◎
Primary school小学校  352m to Takatsuki Tatsunishi Daikan Elementary School
高槻市立西大冠小学校まで352m
Junior high school中学校  510m to Takatsuki Jonan Junior High School
高槻市立城南中学校まで510m
Otherその他  It is flat land of about a 20-minute walk from Hankyu Takatsuki-shi Station. Also available JR Takatsuki Station.
阪急高槻市駅より徒歩約20分の平坦地です。JR高槻駅もご利用いただけます。
 Koyo Hankyu Takatsuki store
コーヨー阪急高槻店
 Daikoku drag Hankyu Takatsuki store
ダイコクドラッグ阪急高槻店
Supermarketスーパー  Until the food hall APRO Takatsuki Seongnam shop 447m
食品館アプロ高槻城南店まで447m
 730m to the Kansai Super Nishikanmuri shop
関西スーパー西冠店まで730m
 Konomiya 984m to Takatsuki Nishikanmuri shop
コノミヤ高槻西冠店まで984m
Home centerホームセンター  1410m to the home center Konan Takatsuki Josai shop
ホームセンターコーナン高槻城西店まで1410m
Otherその他  Neighborhood environment: Sandy Takanishi shop
近隣環境:サンディ高西店
 Neighborhood environment: Super Satake
近隣環境:スーパーサタケ
Convenience storeコンビニ  259m to FamilyMart Fujiwara Kasuga-cho shop
ファミリーマート藤原春日町店まで259m
Drug storeドラッグストア  411m until cedar pharmacy Takatsuki Nishikanmuri shop
スギ薬局高槻西冠店まで411m
 Local appearance photo
現地外観写真
Presentプレゼント  When your conclusion of a contract to Customers who have received contact us by phone, Authentic Motchiri bread of the topic and easy to enjoy at home, "a Panasonic: Gopan" I will present the! ! First arrival 50 people limited! ! (The photograph is an image. Please note that there is a case that is different from the real ones)
お電話にてお問い合わせ頂きましたお客様にご成約時、本格もっちりパンがご自宅で手軽に楽しめると話題の『Panasonic製:ゴパン』をプレゼントさせていただきます!!先着50名様限定です!!(写真はイメージです。実際の物とは異なる場合がございますので予めご了承下さい)
Location
|